SI-F209_Manual(J)JPG_rev1.pdf - 第223页
X 軸サーボドライバー周辺回路図 CDF-20504-01 X 軸サー ボドライバー周辺回路 図 SHEET 1/1 CP5 MC1 PS1 L N FG + - 3 4 6 7 8 9 2 3 24 1 2 3 4 5 6 7 8 ALM + ALM - +2 4V IN P- OT N - OT / DE C /SO 2 + /SO 2 - L1C L2C L1 L2 L3 B1 B2 B3 +1 +2 SV-XP 500 501 …

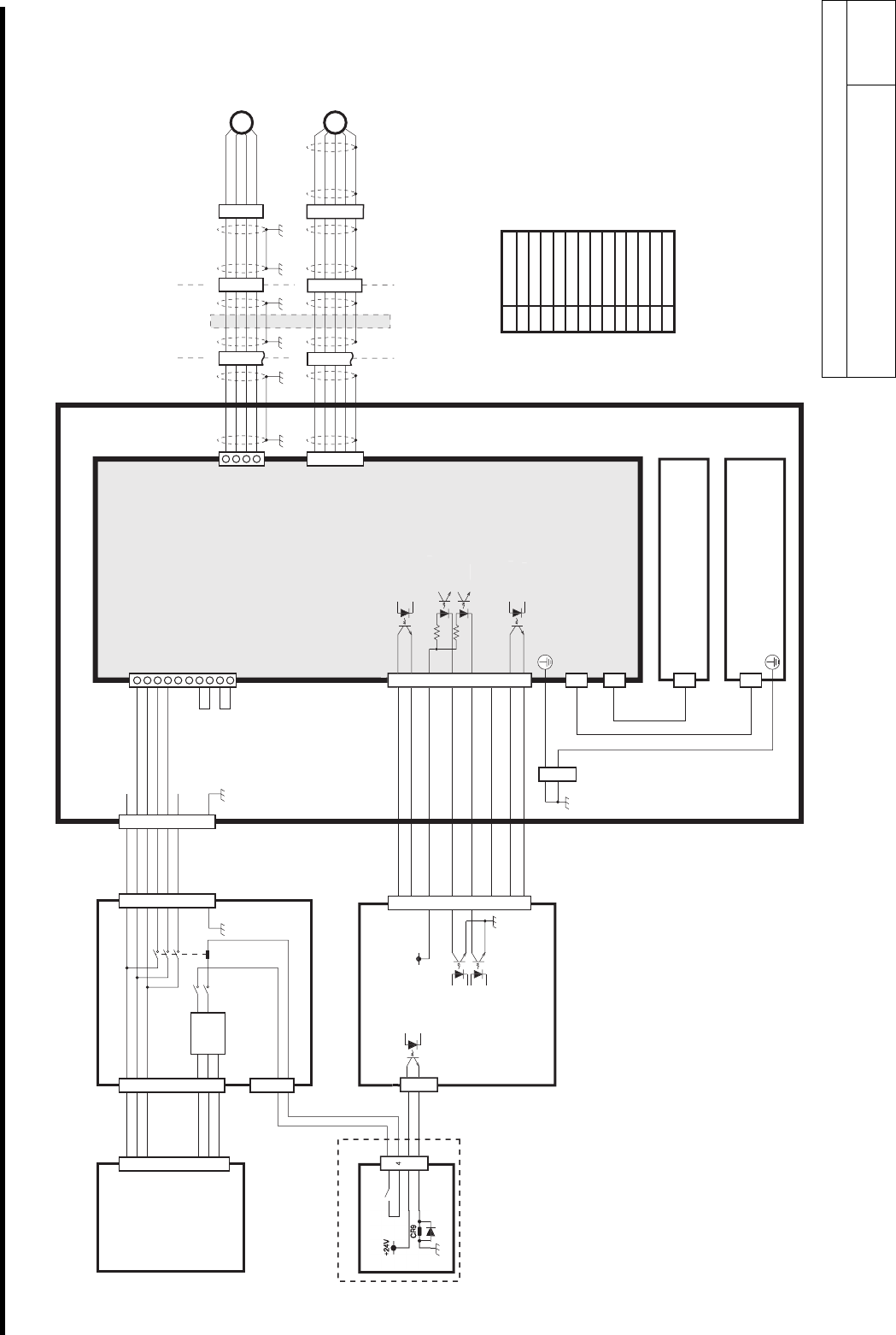
16 Input LS 基板 周辺回路図
CDF-20503-01
16 Input LS 基板 周辺回路図
SHEET
1/1
16 INPUT LS BOARD
CN1 IB-1
1
2
3
+OT3
+24V
OUT
GND
H CCW
CN2 IB-2
1
2
3
-OT3
+24V
OUT
GND
H CW
CN3 IB-3
1
2
3
ORG3
+24V
OUT
GND
H ORG
CN4 IB-4
1
2
3
+OT5
+24V
OUT
GND
NS CCW
CN5 IB-5
1
2
3
-OT5
+24V
OUT
GND
NS CW
CN9 IB-9
1
2
3
-OT7
+24V
OUT
GND
M CW
CN8 IB-8
1
2
3
+OT7
+24V
OUT
GND
M CCW
CN6 IB-6
1
2
3
ORG5
+24V
OUT
GND
NS ORG
CN7 IB-7
1
2
3
ORG6
+24V
OUT
GND
R ORG
CN13 IB-13
1
2
3
NZ RE SEN
+24V
OUT
GND
NOZZLE RELEASE
DETECT
CN12 IB-12
1
2
3
NZ POS1
+24V
OUT
GND
NOZZLE POSITION
DETECT
CN11 IB-11
1
2
3
NZ CT SEN
+24V
OUT
GND
NOZZLE CARTRIDGE
DETECT
CN10 IB-10
1
2
3
ORG7
+24V
OUT
GND
M ORG
CN14
1
2
3
CN15
1
2
3
CN16
1
2
3
SERVO I/F UNIT
IF2 LS BOARD
(Refer:CDF-20502)
SY-EX BOARD
(Refer:CDF-20501)
1st
CONNECTION
PANEL
3rd
CONNECTION
PANEL
X FLAT
RBT CABLE
Y CABLE
CONDUIT
HLS-4 HLS-5 HLS-6 IB-17
1
2
3
4
5
6
7
8
9
10
11
12
CN9 LB-9
CN10 EX-10
1
14
15
3
2
1
2
3
4
5
1
2
3
4
5
1
2
3
4
5
NZS NZS-1 NZS-2
20
18
11
12
13
1
2
3
4
5
6
7
8
9
10
11
12
1
2
3
4
5
6
7
8
9
10
11
12
1
2
3
4
5
6
7
8
9
10
11
12
1
2
3
4
5
6
7
8
9
10
17
19
+OT3 (H CCW)
-OT3 (H CW)
ORG3 (H ORG)
+OT5 (NS CCW)
-OT5 (NS CW)
ORG5 (NS ORG)
ORG6 (R ORG)
+OT7 (M CCW)
-OT7 (M CW)
ORG7 (M ORG)
+24V
G24V
R0V
R24V
NZ CT SEN
NZ POSI
NZ RE SEN
ABCD
EBCD
A
B
C
D
E
1-829-633
1-829-600
1-829-601
1-792-308
1-792-299
REF
CABLE PARTS NO.

X 軸サーボドライバー周辺回路図
CDF-20504-01
X 軸サーボドライバー周辺回路図
SHEET
1/1
CP5
MC1
PS1
L
N
FG
+
-
3
4
6
7
8
9
2
3
24
1
2
3
4
5
6
7
8
ALM +
ALM -
+2
4V IN
P-
OT
N
-
OT
/
DE
C
/SO
2
+
/SO
2
-
L1C
L2C
L1
L2
L3
B1
B2
B3
+1
+2
SV-XP
500
501
503
504
505
510
DRV-X
SGDS-15A12A
DRV-Y (Refer:CDF-20505)
1
2
5
6
FG
CN2 SV-X2
XE
X ENCODER
1
2
3
4
5
PG5V
PG0V
PS
*PS
1
2
3
4
XM
U
V
W
SV-XM
SERVO UNIT
(Refer:CDF-20203)
DRIVER UNIT
(Refer:CDF-20204)
DV-ACOUT1
1
2
3
4
5
6
7
8
9
POWER UNIT
(Refer:CDF-20301)
PW-2
1
2
3
4
5
6
DV-ACIN
1
2
3
4
5
6
DV-EMG1
1
2
3
4
1
2
3
4
5
6
7
8
9
SV-ACIN1
500
501
502
503
504
505
SERVO I/F UNIT
IF2 LS BOARD
(
Refer:CDF-20502
)
SY-IF2 BOARD (Refer:CDF-20502)
1
2
3
S
ERV
O
ALARM
C
N1
0
LB-10
X MOTOR
S
V-X1
C
N1
SV-X6A CN6A
SV-X6B CN6B
SV-Y6A CN6A
CN7 SI-7
K
LJ
H
E
M
A 1-791-233
REF CABLE PARTS NO.
B 1-829-460
C 1-829-455
D 1-829-664
E
F
1- -
G
1- -
H
1-829-456
J
1-829-457
K
1-824-764-11
L
1-824-761-11
1-829-597
A B
D
E
F
SV-XR
X-R
X-R
G
JEPMC-W6002-04 (YASKAWA)
JEPMC-W6002-A5
(YASKAWA)
I/O UNIT
EM
G
I
/
L B
O
AR
D
(
Refer:CDF-20401
)
C
N
9
+
24V
C
R
38
3
4
1
2
C
SV-E1
1
2
3
XB1
XB2
B1
B2

Y 軸サーボドライバー周辺回路図
CDF-20505-01
Y 軸サーボドライバー周辺回路図
SHEET
1/1
CP5
MC1
PS1
L
N
FG
+
-
3
4
6
7
8
9
2
3
24
1
2
3
4
5
6
7
8
ALM +
ALM -
+
24V IN
P-
OT
N-
OT
/
DE
C
/SO2
+
/SO
2
-
L1C
L2C
L1
L2
L3
B1
B2
B3
+1
+2
SV-YP
501
502
503
504
511
512
DRV-Y
SGDS-08A12A
DRV-H (Refer:CDF-20506)
1
2
5
6
FG
CN2 SV-Y2
PG5V
PG0V
PS
*PS
U
V
W
SV-YM
SERVO UNIT
(Refer:CDF-20203)
DRIVER UNIT
(Refer:CDF-20204)
DV-ACOUT1
1
2
3
4
5
6
7
8
9
POWER UNIT
(Refer:CDF-20301)
PW-2
1
2
3
4
5
6
DV-ACIN
1
2
3
4
5
6
DV-EMG1
1
2
3
4
1
2
3
4
5
6
7
8
9
SV-ACIN1
500
501
502
503
504
505
IF2 LS BOARD
(Refer:CDF-20502)
SI-2 CN2
1
2
3
S
ERV
O
ALARM
C
N1
1
LB-11
S
V-Y1
C
N1
SV-Y6A CN6A
SV-Y6B CN6B
SV-H6A CN6A
DRV-X (Refer:CDF-20504)
SV-X6B CN6B
K
G
H
H
L
J
Y ENCODER
1
2
3
4
5
Y MOTOR
M
N
E
M
A 1-791-233
REF CABLE PARTS NO.
B 1-824-460
C 1-829-455
D 1-829-658
E
F
1- -
G
1- -
H
1-829-600
J
1-792-262
K
1-829-655
L
1-792-268
1-829-652
M
1-824-763-11
N
1-824-761-11
A B
D
E
F
M1 YM2 YM
E1 YE2 YE
X FLAT
RBT CABLE
1st CONNECTION
PANEL
2nd CONNECTION
PANEL
1
2
3
4
1
2
3
4
1
2
3
4
1
2
3
4
5
1
2
3
4
JEPMC-W6002-A5 (YASKAWA)
JEPMC-W6002-A5
(YASKAWA)
I/O UNIT
EMG I/L BOARD
(Refer:CDF-20401)
C
N
9
D
9
CR3
8
3
1
2
C
SV-E1
2
1
3