OM-1754-001w_GS-F600.pdf - 第37页
OM-1754 1-1 1303-001 1. Outline 1.1 What is Multi-Layer T ray Feeder? This unit consists of the traverse cart and cutter unit and elevator unit and is used to supply the tray components to be setup on the elevator unit t…

OM-1754
1303-001 1-B

OM-1754
1-11303-001
1. Outline
1.1 What is Multi-Layer Tray Feeder?
This unit consists of the traverse cart and cutter unit and elevator unit and is used
to supply the tray components to be setup on the elevator unit to the "chip mounter
SIGMA-G5S"
1.2 Specications
noitpircseD metI
1. Model Name Multi-Layer Tray Feeder
2. Construction of
Device
• Traverse Cart
• Cutter Unit
• Elevator Unit
• Magazine (GS-MG100) : 2 pieces / Elevator Unit
For 15 Steps pf Pallet (Total Component Thickness 8 mm or less)
• Pallet (GS-MP100) : 15 Pieces / Magazine
• Tray Fixing Magnet (GS-MF100) : 30 Pieces / Magazine
Notes: (a) The magazine (GS-MG100) is dedicated to the multi-layer
tray feeder for SIGMA-G5S.
The use of the magazine (MG-G110/115) for GXH-1/3 is not
available.
(b) The pallet (GS-MP100) is dedicated to the multi-layer
tray feeder for SIGMA-G5S.
The use of the pallet (MP-G100) for GXH-1/3 is not available.
TA1
1. Outline

OM-1754
1-2
noitpircseD metI
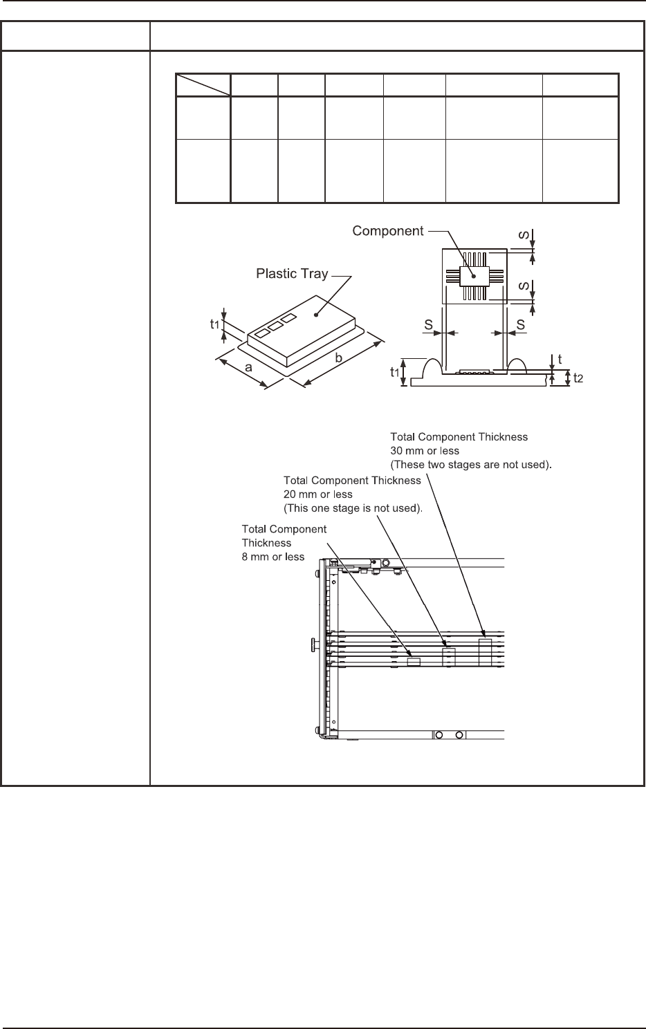
3. Applicable Tray
a b T1 t2 S (Leeway) Mass
Min. 100 100 3 3
Note f
- -
Max. 230 330 30
Note a
Note e
30
Note a
Note e
-
Note b
2 kg
Note c
Unit : mm
Unit : mm
TA2
1303-001
1.2 Specications