IPC-TM-650 EN 2022 试验方法1.pdf - 第760页
Sinusoidal Random Page 1 of 6

Table 1 Thermal Shock Test Conditions (One Cycle)
Step Temperature, °C Time
Page 1 of 2

Sinusoidal
Random
Page 1 of 6

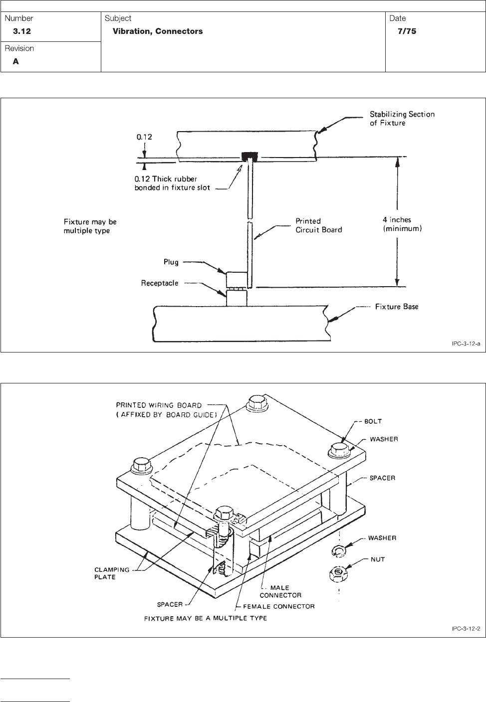
Figure 1 Right Angle Connector Fixture (Suggested)
Figure 2 Parallel Connector Fixture (Suggested)
IPC-TM-650
Page 2 of 6