TCM-X110_X210_X300(D) 2_Operation(Supervisor).pdf - 第24页
吸 嘴 吸 嘴 吸 嘴 吸 嘴 吸 嘴 Not e a N ote a Not e a N ote a N ote a N o t e b N o t e b N o t e b N o t e b N o t e b 型 号 型 号 型 号 型 号 型 号 形 形 形 形 形 状 状 状 状 状 芯 片 元 件 的 大 小 芯 片 元 件 的 大 小 芯 片 元 件 的 大 小 芯 片 元 件 的 大 小 芯 片 元 件 的 大 小 …

0308-001 1-6
5. 贴 装前的线 路
板 条 件
单位: mm
注注
注注
注
::
::
: (a) 尺寸显示为设计基准尺寸。请在设定时留有余地 。
(b) 孔基准的情况,线路板下面的安装范围缩小定位针近旁的
固定范围。
(c) T C M- X 30 0 的情况,线路板长度为 46 0 ~51 0 m m 的外形基准
时,线路板下面的安装范围也是缩小定位针近旁的固定范
围 。
2 .2 .
2 .2 .
2 .
装 置装 置
装 置装 置
装 置
规 格规 格
规 格规 格
规 格
线 路 板线 路 板
线 路 板线 路 板
线 路 板
元 件元 件
元 件元 件
元 件
已 贴 装 元 件 不 可 贴 装 范 围已 贴 装 元 件 不 可 贴 装 范 围
已 贴 装 元 件 不 可 贴 装 范 围已 贴 装 元 件 不 可 贴 装 范 围
已 贴 装 元 件 不 可 贴 装 范 围
线 路 板 支 撑 针线 路 板 支 撑 针
线 路 板 支 撑 针线 路 板 支 撑 针
线 路 板 支 撑 针
((
((
(
表 示 线 路 板 搬 送 时表 示 线 路 板 搬 送 时
表 示 线 路 板 搬 送 时表 示 线 路 板 搬 送 时
表 示 线 路 板 搬 送 时
))
))
)
线 路 板 支 撑 针线 路 板 支 撑 针
线 路 板 支 撑 针线 路 板 支 撑 针
线 路 板 支 撑 针
((
((
(
多 处多 处
多 处多 处
多 处
))
))
)
注注
注注
注 : (a) 位置可在 “
2 0 m m2 0 m m
2 0 m m2 0 m m
2 0 m m ” 间距内移动。
( 部分可在 “ 1 0 m m ” 间距内移动)
(b) 设定 在 触 及 不 到 已贴 装 元件 的 位 置 。
(c) 上图 显 示 为 线 路 板被 支 撑住 时 的 状 态 。

吸嘴吸嘴
吸嘴吸嘴
吸嘴
Note a Note a
Note a Note a
Note a
Note bNote b
Note bNote b
Note b
型 号型 号
型 号型 号
型 号
形形
形形
形
状状
状状
状
芯 片 元 件 的 大 小芯 片 元 件 的 大 小
芯 片 元 件 的 大 小芯 片 元 件 的 大 小
芯 片 元 件 的 大 小
适 用 参 考 元 件适 用 参 考 元 件
适 用 参 考 元 件适 用 参 考 元 件
适 用 参 考 元 件
备备
备备
备
注注
注注
注
元 件 编 号元 件 编 号
元 件 编 号元 件 编 号
元 件 编 号
N o .N o .
N o .N o .
N o .
(mm) (mm)
(mm) (mm)
(mm)
元 件 名元 件 名
元 件 名元 件 名
元 件 名
Z062
V 沟槽装备
3.5 1.2 ~
6.0 2.8
Z071 2.0 1.25
厚度
0.45 ~ 1.25
Z081 1.0 0.5
厚度
0.3 ~ 0.6
Z094 1.0 0.5 ~
2.0 1.25
厚度
0.3 ~ 0.8
4 .4 .
4 .4 .
4 .
吸 取 吸 嘴 的 型 号吸 取 吸 嘴 的 型 号
吸 取 吸 嘴 的 型 号吸 取 吸 嘴 的 型 号
吸 取 吸 嘴 的 型 号
圆筒型 号的
电阻及二极管
2012 型号的
电容器及电阻、
超微型 晶体管
100 5 型号的
电容器及电阻
1005~2125(狭邻接对应)
型 号 的
电容器及电阻
630 068 3103
NOZZLE (Z62)
630 052 9579
NOZZLE (Z71)
630 052 9586
NOZZLE (Z81)
反射识别用
吸嘴
630 078 2295
NOZZLE (Z94)
( )
0308-001 1-29
φ 4.5
φ 4.5
φ 4.5
φ 4.5
6.3
10.112.3
12.0
内径
φ 0.4
先端
1.25 0.75
内径
φ 0.4
外径
φ 0.6
内径
φ 0.9
外径
φ 1.3
内径
φ 1.2
外径
φ 2.5

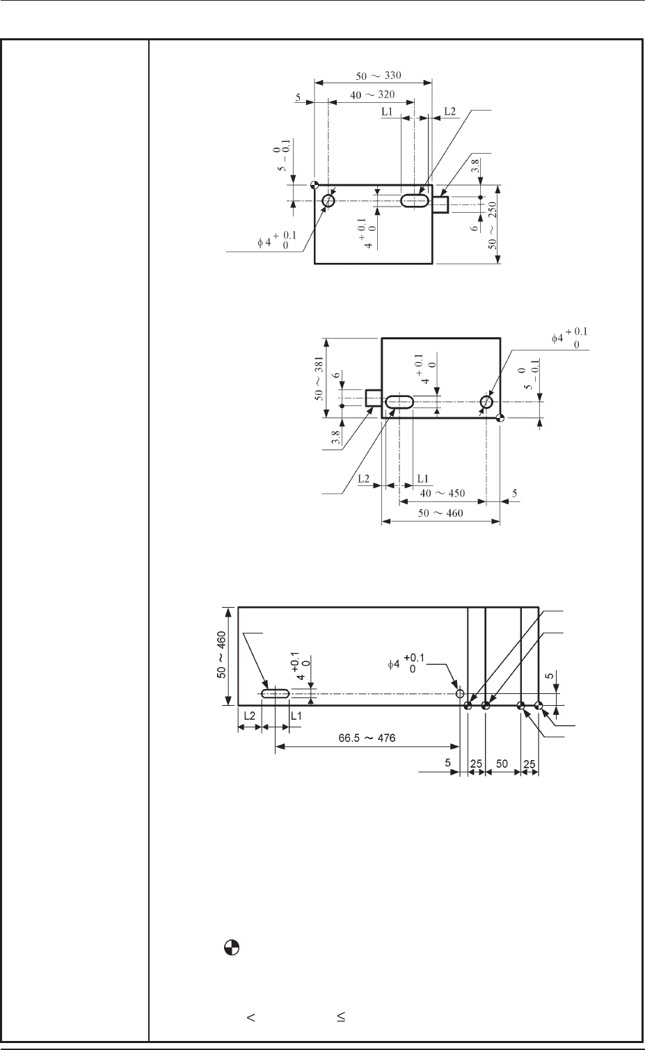
孔 基 准孔 基 准
孔 基 准孔 基 准
孔 基 准
T CM - X 1 1 0TC M - X 1 1 0
T CM - X 1 1 0TC M - X 1 1 0
T C M- X 1 1 0
((
((
(
装置前侧装置前侧
装置前侧装置前侧
装置前侧
))
))
) 单位 : mm
T CM - X 2 1 0TC M - X 2 1 0
T CM - X 2 1 0TC M - X 2 1 0
T C M- X 2 1 0
((
((
(
装置前侧装置前侧
装置前侧装置前侧
装置前侧
))
))
) 单位 : mm
T CM - X 3 0 0TC M - X 3 0 0
T CM - X 3 0 0TC M - X 3 0 0
T C M- X 3 0 0
((
((
(
装置前侧装置前侧
装置前侧装置前侧
装置前侧
))
))
) 单位 : mm
注注
注注
注 :(a) 线路板外形上有刻痕等的情况, 需要进行测试。
(b) 定为 “L1=Min .5 mm”,考虑到孔位置公差,设置长边方向时
要留有余地。
并且,基准孔间 距尽可能 设定大值。
(c) 请考虑线路板强度来决定 “ L 2 ” 。
(d) 记号中心为基准点。
(e) TC M- X3 00 的情况,表示线路板长度( 流动方向)为 46 0mm 以
下 。
460 线路板长度 51 0mm 时,成为 30mm。
2 .2 .
2 .2 .
2 .
装 置装 置
装 置装 置
装 置
规 格规 格
规 格规 格
规 格
0308-001 1-8
基 准 孔基 准 孔
基 准 孔基 准 孔
基 准 孔
线 路 板 定 位 杆线 路 板 定 位 杆
线 路 板 定 位 杆线 路 板 定 位 杆
线 路 板 定 位 杆
基 准 孔基 准 孔
基 准 孔基 准 孔
基 准 孔
基 准 孔基 准 孔
基 准 孔基 准 孔
基 准 孔
线 路 板 定 位 杆线 路 板 定 位 杆
线 路 板 定 位 杆线 路 板 定 位 杆
线 路 板 定 位 杆
基 准 孔基 准 孔
基 准 孔基 准 孔
基 准 孔
基 准 点基 准 点
基 准 点基 准 点
基 准 点
11
11
1
基 准 点基 准 点
基 准 点基 准 点
基 准 点
22
22
2
基 准 点基 准 点
基 准 点基 准 点
基 准 点
33
33
3
基 准 点基 准 点
基 准 点基 准 点
基 准 点
44
44
4
定 位 针定 位 针
定 位 针定 位 针
定 位 针
基 准 孔基 准 孔
基 准 孔基 准 孔
基 准 孔
((
((
(
注注
注注
注
e )e )
e )e )
e )