npm-gpl.pdf - 第111页
NPM-GP/L 202 2.0 928 - 105 - ■ 基板 吸着 箱设计例 ② (只使 用真 空泵 吸引 ) ( 单位 : mm) (组装 图) (上板 图) 基本规格尺寸 ( 真空泵 吸引 规格 ) 上板设计例 ( 真空泵 吸引 规格 ) ( 单位 :mm) ( 单位 :m m ) 箱长 安装间距 (100 前后 ) 安装间距 (100 前后 ) 吸着箱宽 ( 基板宽 -10) 基板宽度 传送基准 上板 箱体 传送基准 埋头孔…

NPM-GP/L 2022.0928
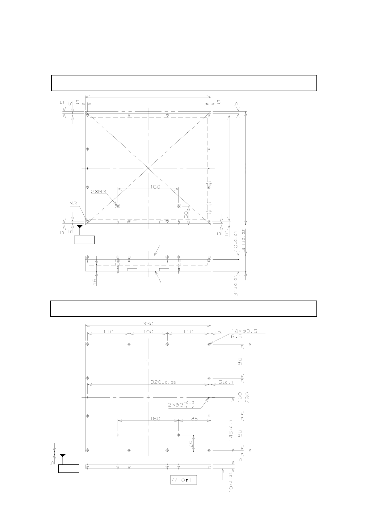
- 104 -
(下箱图)
基本规格尺寸 (鼓风机吸引规格)
(单位:mm)
270 (基板宽
-30)
290 (基板宽
-10)
材质:铝合金板 (A2017)
处理:不要
■设计条件
基板尺寸 (L) 350mm×
(W) 300mm
避开用
箱体定位用
(仅鼓风机吸引时,不要
已经打开的情况下请塞住使用)

NPM-GP/L 2022.0928
- 105 -
■基板吸着箱设计例②(只使用真空泵吸引)
(
单位
: mm)
(组装图)
(上板图)
基本规格尺寸 (真空泵吸引规格)
上板设计例 (真空泵吸引规格)
(单位:mm)
(单位:mm)
箱长
安装间距(100 前后)
安装间距
(100 前后)
吸着箱宽
(基板宽-10)
基板宽度
传送基准
上板
箱体
传送基准
埋头孔 深 6
材质:铝合金板 (A2017)
处理:不要
●使用基板的宽度需符合图中的
「基板宽度」。
●箱长须在 350mm 以下。
●与
SP28P-D
以前的机型一起使用
时,基板吸着箱上需要留出避开传感
器的部位,请另行商谈。
■设计条件
基板尺寸 (L) 350mm×
(W) 300mm
●与 SP28P-D 以前的机型一起使
用时,基板吸着箱上需要留出避
开传感器的部位,请另行商谈。

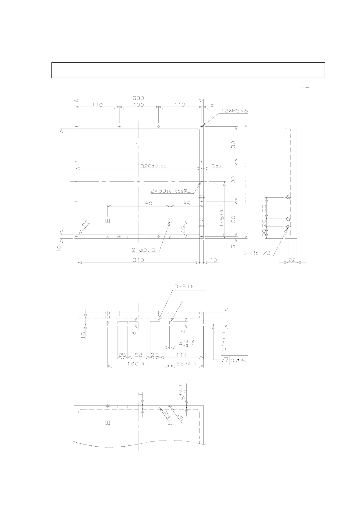
NPM-GP/L 2022.0928
- 106 -
(下箱图)
(
单位
: mm)
(单位:mm)
基本规格尺寸 (真空泵吸引规格)
270 (基板宽
-30)
290 (基板宽
-10)
材质:铝合金板 (A2017)
处理:不要
避开用
箱体定位用
■设计条件
基板尺寸 (L) 350mm×
(W) 300mm
●与 SP28P-D 以前的机型一起使用
时,基板吸着箱上需要留出避开传
感器的部位,请另行商谈。