npm-gpl.pdf - 第68页
NPM-GP/L 202 2.0 928 - 62 - B-4 选择基板支撑有关单元 。 On -site 支撑销自动交换单元 对象基板尺寸 : 510 × 460 mm ※对应的基板尺寸将受 到限制。 ・ 使用此功能时 Max 510 X 46 0 mm ・ 设定为不使用此功能 时 Max 510 X 510 m m ・ 已设置在基板定位台上 的销将会自 动配置到指定位 置。 ・ 附带 30 个销。 ・ 最多可配置 30 个。 ・ 销…

NPM-GP/L 2022.0928
- 61 -
B-4
选择基板支撑有关单元。
Customer
基板支撑销单元
(M)
对象基板尺寸
: 350 × 300 mm
基板支撑销单元
(L)
对象基板尺寸
: 510 ×510 mm
・
销直径是
4 mm
、销间距是
10 mm
。
・
M
尺寸用
:
附带
35
mm
宽(小)
× 1
个、
35
mm
宽(大)
× 1
个、
40
mm
宽
× 4
个、
销
×100
个。
・
L
尺寸用
:
附属
35
mm
宽
× 1
个、
40
mm
宽
×
10
个、
销
×
200
个。
Customer
通用基板支撑销
・由于能够微细调整销的位置,
在以前较难的位置也可支撑。
・将基板支撑销单元、和整体交换用基板支撑销单元
组合进行使用。
・
10
个/套。
・希望有吸着规格要求时,请与本公司联络
Customer
整体交换用基板支撑销单元
(M)
对象基板尺寸
: 350 × 300 mm
整体交换用基板支撑销单元
(L)
对象基板尺寸
: 510 ×510 mm
※不能用于搭载了自动式顶部/侧面夹具的设备。
・
销直径是
4 mm
、销间距是
5 mm
。
・
M
尺寸用
:
附属
20 mm
宽
×
2
个、
30 mm
宽
×
4
个、
40 mm
宽
(
小
)
×
2
个、
40 mm
宽
(
大
)
×
4
个、
销
×
100
个、
连接轴
×
4
个。
・
L
尺寸用
:
附属
20 mm
宽
×
2
个、
30 mm
宽
×
3
个、
35 mm
宽
(
小
)
×
2
个、
40 mm
宽
×
10
个、
销
×
200
个、
连接轴
×
4
个。
Customer
整体交换用基板支撑销安装治具
(M)
对象基板尺寸
: 350 × 300 mm
整体交换用基板支撑销安装治具
(L)
对象基板尺寸
: 510 ×510 mm
・
支撑销的安装在准备作业进行时需要。
・
支撑销的交换能够在短时间内进行。
・
销间距请参照下图。除此之外的销间距时,请联络。
(
销直径是
φ
4 mm
。
)
・在离线作业准备下一机种设置支撑销,希望缩短切换时
间时,另外需要选购件的「基板支撑销安装治具」
・
支撑销与以往的
SP
系列有互换性。
(
和
SP10P-M/L/LA
的一部分会没有安装互换性的情况,请与本公司联络。
)
基板支撑销
[整体交换用基板支撑销]
10 mm
10 mm
[基板支撑销]
10 mm
10 mm
5 mm
※
5 mm
10 mm

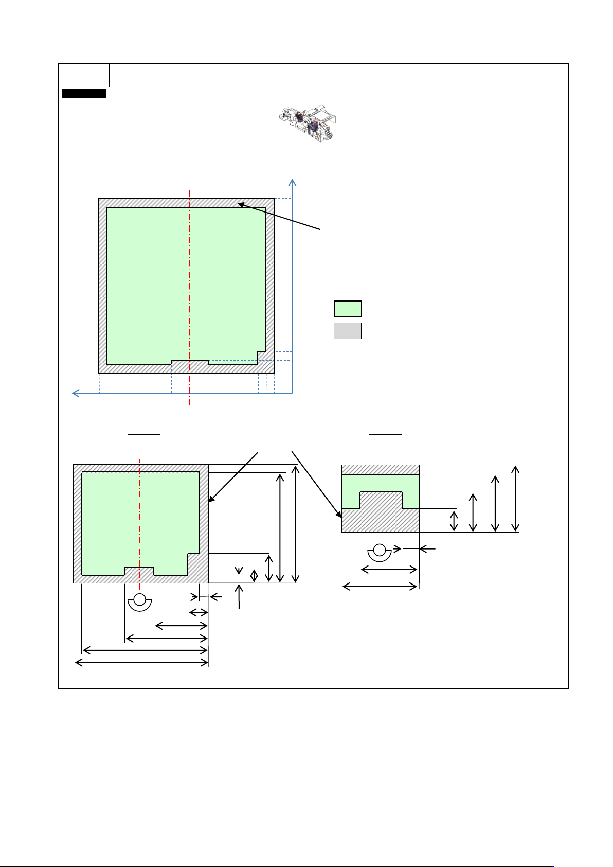
NPM-GP/L 2022.0928
- 62 -
B-4
选择基板支撑有关单元。
On-site
支撑销自动交换单元
对象基板尺寸:
510 × 460 mm
※对应的基板尺寸将受到限制。
・使用此功能时
Max 510 X 460 mm
・设定为不使用此功能时
Max 510 X 510 mm
・
已设置在基板定位台上的销将会自动配置到指定位置。
・附带
30
个销。
・最多可配置
30
个。
・销,不能与实装机共用。
・不可与基板端面的支撑板(固定式)一起使用。
・
销配置区域
※销(中心)可以配置区域,包括图形的轮廓。
460
450
510
500
270
240
30
10
0
0
50
35
23.5
基板中心线
:销(中心)可以配置的区域
:销(中心)不可配置的区域
距里侧夹具端
10mm
处为不可配置区域。
基板尺寸
510 mm×460 mm
的时候
×
mm
基板尺寸
50 mm×50 mm
的时候
×
mm
510
500
270
240
30
10
50
40
10
基板外形
50
40
35
23.5
460
450
50
35
23.5

NPM-GP/L 2022.0928
- 63 -
B-4
选择基板支撑有关单元。
・
销配置条件
支撑销,
请配置在可以确保左侧所示尺寸的地方。
另外,请避开基板的间隙,
请配置支撑销。