SPF.pdf - 第85页
SPF 服务手册 4.7 清洁器·网板 D54SCC-W 1-K00-A0 4.7-2 = 备忘录 =

SPF
服务手册
4.7 清洁器·网板
4.7-1 D54SCC-W1-K00-A0
4.7 清洁器·网板
清洁器·网板清洁器·网板
清洁器·网板
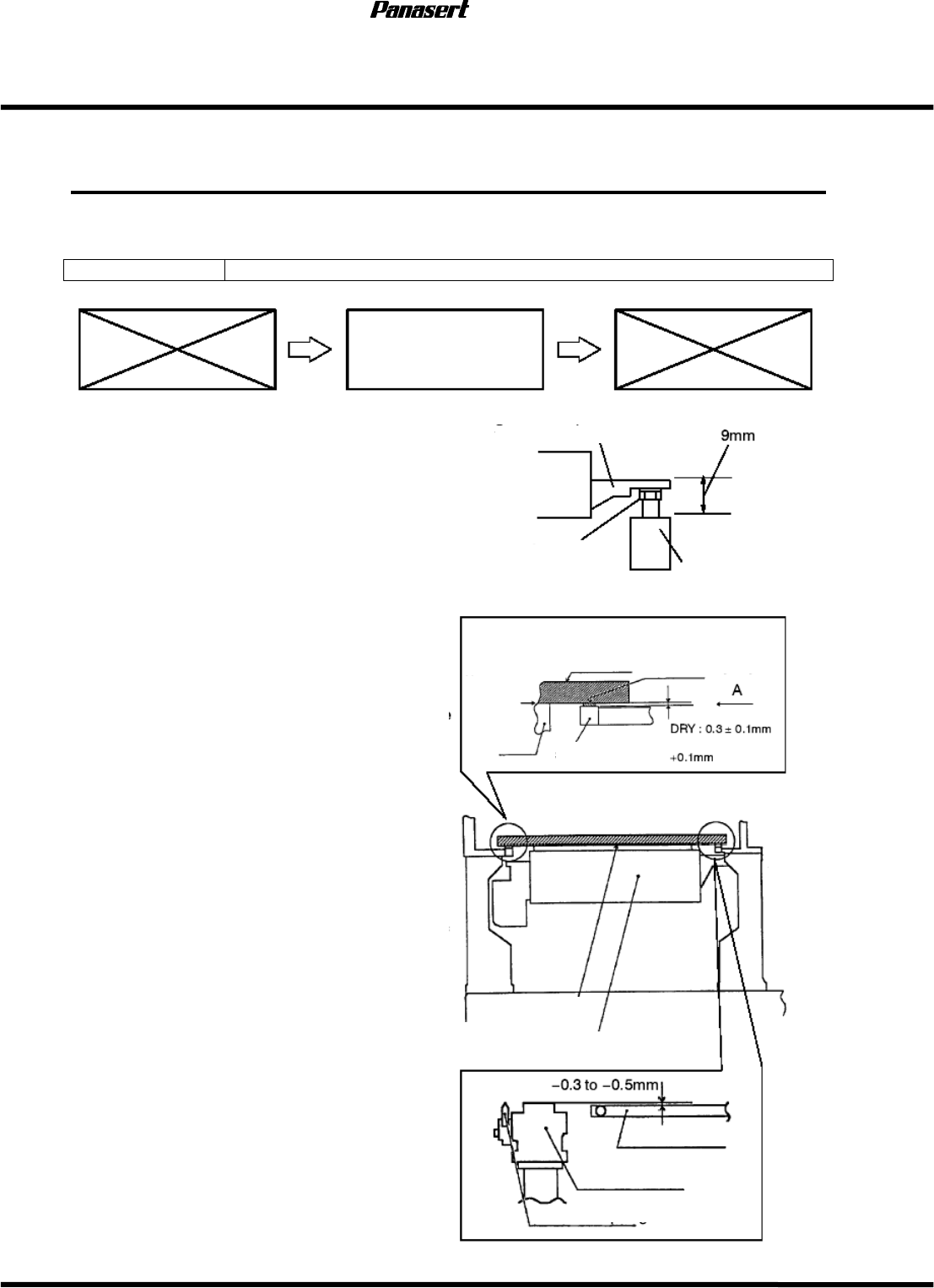
4.7 调整清洁器头高度
调整清洁器头高度调整清洁器头高度
调整清洁器头高度
Unit No.
调整清洁器头高度
=准备
准备准备
准备=
1. 调整清洁器头高度治具
2. 塞尺
►调整清洁器头高度
调整清洁器头高度调整清洁器头高度
调整清洁器头高度
1. 打开电源,使其返回原点。
2. 将调整清洁器头高度治具安装到网板
支持架上。
3. 将副操作盘上的“CLEANER UP”
(清洁器上升)置于 ON。
4. 用目视确认调整清洁器头高度治具与
清洁器橡皮滚之间无间隙。
5. 用塞尺确认网板支持架和调整清洁
器头高度治具之间的间隙。
=规格值
规格值规格值
规格值=
高度(间隙)
DRY 清洁器 :0.3±0.1mm
WET/真空 :0~+0.1 mm
6. 如是 WET/真空,确认真空吸嘴和清洁
器支持架的间隙。
=规格值
规格值规格值
规格值=
高度(间隙)
WET/真空:-0.3~-0.5 mm
7. 规格值以外时,拧松非固定汽缸的止动
器并调整。
8. 再次确认间隙。
Sentence No. D54SCC-W1-K00-A0
橡皮滚板
止动器
非固定汽缸
调整清洁器头
高度治具
塞尺
WET/
真空:
无间隙
清洁器橡
皮滚
网板支持架
橡皮滚高度
(
DRY
,
WET
)
/
真空
调整清洁器头高度治具
清洁器头
网板支持架
真空吸嘴
清洁器橡皮滚
A
向
向向
向视图
视图视图
视图
真空吸嘴高度
真空吸嘴高度真空吸嘴高度
真空吸嘴高度

SPF
服务手册
4.7 清洁器·网板
D54SCC-W1-K00-A0 4.7-2
= 备忘录 =

SPF
服务手册
5.0-1