SLM110S_TRM(Ver7.1_CS16.26).pdf - 第175页
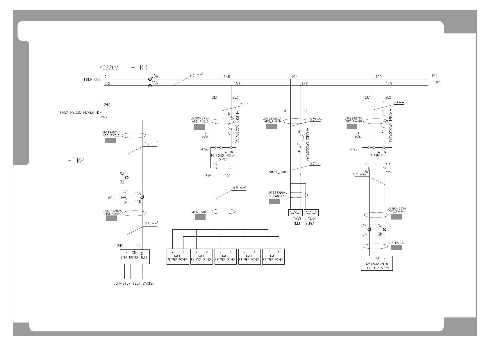
Page HANWHA TECHWIN 163 SLM110S Electric Circuit Diagram (4/5) NO. Lev . P A RT NO. P ART NAME Q'TY Old No. Supply Supply L T Reference 1 J90834274 A PS1_SC_CN1 _POWER_CABL E_ASSY AP5_PW01 3 1 2 J90834282A MC1_TB 1_…

Page
HANWHA TECHWIN
162
SLM110S
Electric Circuit Diagram (4/5)
^4`
^5`
^:`
^9`
^8`
^7`
^6`
^;`
^<`
AM03-001288A
AM03-004806A

Page
HANWHA TECHWIN
163
SLM110S
Electric Circuit Diagram (4/5)
NO. Lev. PART NO. PART NAME Q'TY Old No. Supply Supply LT Reference
1 J90834274A PS1_SC_CN1_POWER_CABLE_ASSY AP5_PW013 1
2 J90834282A MC1_TB1_POWER_CABLE_ASSY AP5_PW021 1
3 J90834278A PS2_TB1_POWER_CABLE_ASSY AP5_PW017 1
4 AM03-001288A CABLE ASSY-PS1_R_DRV_BD_PWR_CABLE_1G_AS 1
5 J90834280A LEFT_FAN_POWER_CABLE_ASSY AP5_PW019 1
6 J90833316A FAN_CABLE_ASSY SM-FAN00 1
7 J90834279A PS3_TB1_POWER_CABLE_ASSY AP5_PW018 1
8 J90834305A SDP_1_5V_PWR_CABLE_ASSY AP5_PW044 1
9 AM03-004806A CABLE ASSY-Z_P_DRV_INPUT_POWER_1_CABLE_ 1

Page
HANWHA TECHWIN
164
SLM110S
Electric Circuit Diagram (5/5)
^4`
^5`
^:`
^9`
^8`
^7`
^6`
^;`
^<`
^43`
AM03-005683A
J90834290A
J90611878A
J90611879A
AM03-004806A