YG300_Ope_C.pdf - 第41页
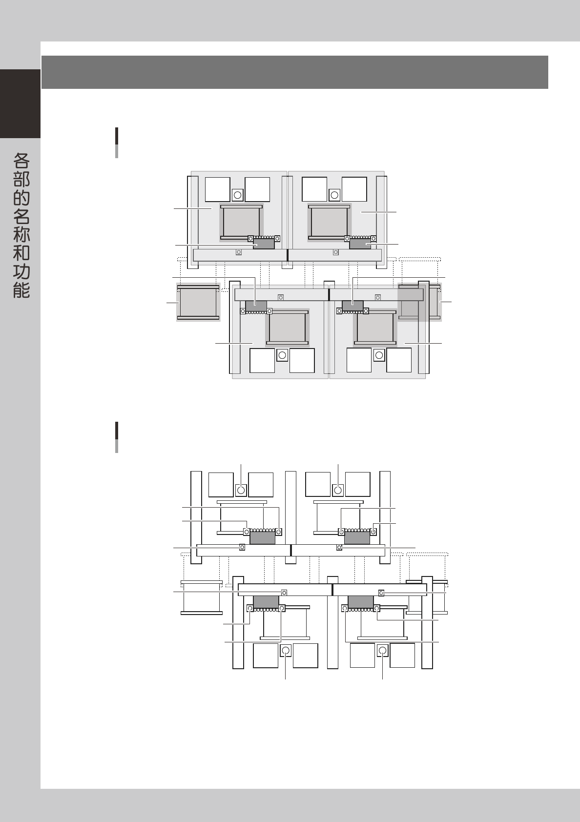
1-13 1 5 . 传 送 装 置 以 下 具 体 说 明 用 于 固 定 基 板 的 传 送 装 置 。 3 1 传送装置 2 4 5 25 1 1 3- M 3 -0 0 1 . 顶板 在 顶 板 上 设 置 顶 针 , 从 下 向 上 支 撑 基 板 。 2 . 顶针 设 置 在 顶 板 上 , 从 下 向 上 固 定 基 板 。 3 . 夹钳 式 基 板 固 定 装 置 从 下 抬 起 基 板 的 边 缘 …

1-12
1
■贴片机
机器侧开关·传感器
3
1
2
4
25112-M3-00
1. 夹固装置 ON/OFF 开关
将一次性换料车推进贴片机后将开关向左转,送料器架部会上升,一次性换料车自动被夹固。解除夹固装置时则向右转。
2. 前进端传感器
当一次性换料车被推进贴片机时,传感器的 LED 呈绿色亮灯状态。
3. 不停机区域传感器 ( 选件 )
不停机规格的机器为了安全,安装有区域传感器。一次性换料车被推进贴片机时,换料车入口传感器受到感应,区域传感器
功能呈 OFF 状态。
4. 不停机换料车入口传感器 ( 选件 )
不停机规格的机器安装有换料车入口传感器。当一次性换料车装入贴片机时,传感器受到感应,区域传感器功能呈 OFF 状态。

1-13
1
5.传送装置
以下具体说明用于固定基板的传送装置。
3
1
传送装置
2
4
5
25113-M3-00
1. 顶板
在顶板上设置顶针,从下向上支撑基板。
2. 顶针
设置在顶板上,从下向上固定基板。
3. 夹钳式基板固定装置
从下抬起基板的边缘夹入压板之间来固定基板。
4. 基板压板
从上压住基板的边缘来固定基板。设置时可以前后移动。
5. 固定杆
用于固定/解除基板压板。

1-14
1
6.本机的构成
本机构成如下图所示。
机器构成
基板 右→左、左→右 相同
贴装工作台 D
贴装工作台 B
贴装头装置 B
贴装头装置 D
贴装头装置 C
贴装头装置 A
贴装工作台 C 贴装工作台 A
贴装基板台 B
右传送基板台
贴装基板台 A
贴装基板台 C
贴装基板台 D
左传送基板台
25114-M3-00
相机构成
基板 右→左、左→右 相同
侧面视觉相机 B侧面视觉相机 D
侧面视觉相机 C
侧面视觉相机 A
多视觉相机 D
多视觉相机 C 多视觉相机 A
AC
BD
多视觉相机 B
基准标记识别相机
(识别标记) B1
基准标记识别相机
(识别标记) B2
基准标记识别相机
(识别标记) D1
基准标记识别相机
(识别标记) D2
基准标记识别相机
(识别标记) C1
基准标记识别相机
(识别标记) C2
基准标记识别相机
(识别标记) A1
基准标记识别相机
(识别标记) A2
25115-M3-00