JM-50_维修保养手册.pdf - 第135页
维修调整要领书 1 1- 1 11 11-1 1. 信号塔 2.LCD 监视器 3. 操 作开关 4.Head 单元〔 Head 主基板组 ,Z/Z A/T 轴 伺服放大器 〕 5.OCC 摄像机 , 垂直照明 基板组 , 角度照 明基板 6. 电 源开关 7. 控制单元〔 CP U 板 、 IO CONTROL PCB 、 RS232 BOARD 、 POSITI ON BOARD 、 C P C I B A C K B O A R …

维修调整要领书
取出 M5×10 带垫片螺丝 CAP(6 个)左右,取下安全盖。
辅助铰链,两个在安全罩
的内侧的左右,以放置。
① M5×10带垫片螺丝
CAP(6个)
10-8

维修调整要领书
11-1
11
11-1
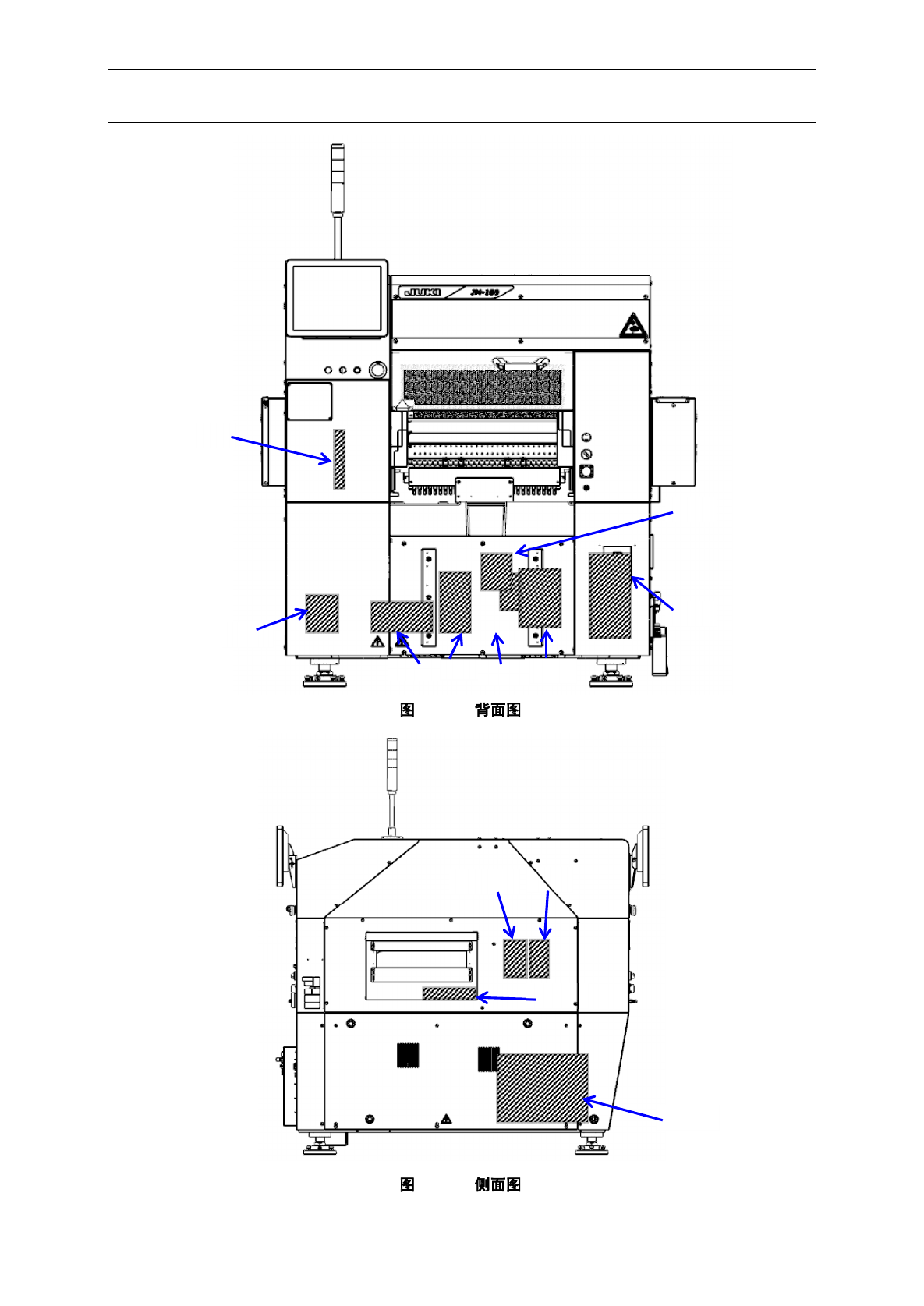
1.信号塔 2.LCD 监视器 3.操作开关
4.Head 单元〔Head 主基板组,Z/ZA/T 轴伺服放大器〕
5.OCC 摄像机,垂直照明基板组,角度照明基板 6.电源开关
7.控制单元〔CPU 板、IO CONTROL PCB、RS232 BOARD、POSITION BOARD、CPCI BACK
BOARD〕 8.X 轴 AC 伺服放大器 9.Y 轴 AC 伺服放大器 10.真空发生器
11.5 相步进马达驱动器〔传送马达 L/C/R〕 12.5 相步进马达驱动器〔AWC 马达用〕
13.后备马达用驱动器 14.电气装置单元 A 15.电气装置单元 B 16.ATX 电源(带 UPS 功能)
17.电源变压器 18.制动器 19.SAFETY PCB 20.CONVEYOR PCB 21.MI BANK RELAY PCB
22.SUPERIMPOSE BOARD 23. BATTERY 24.CPU BOARD BOX(选项)
25.3DS 电源 BOX(选项) 26.3D 传感器(选项) 27.电气装置单元 C(选项)
28.CX/CY/CC/CT/CZ 轴 AC 伺服放大器(选项)
11-1-1
4
1
2
3
5
6
7
9
8
1
5
2
1
19
2
2
24
25
26

维修调整要领书
11-2
11-1-2
11-1-3
1
8
2
1
10
1
4
23
16
28
27
1
7
20
11,12
13