80S-20电路图.pdf - 第44页
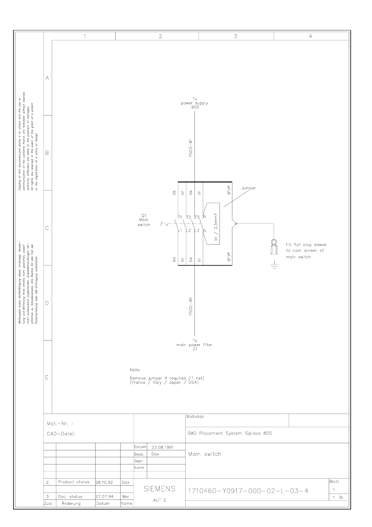
3.3 - 18 Main swit ch SIPLACE 80S-20 Main switch Y0917L0 3.dwg 171046 0-Y0 917-000- 02-L- 03-4 Main switc h

SIPLACE 80S-20 Cable Power supply - terminal strip 3.3 - 17
Cable Power supply - terminal strip
C0506L12.dwg
00324356-010201LD4 Cable Power supply - terminal strip

3.3 - 18 Main switch SIPLACE 80S-20
Main switch
Y0917L03.dwg
1710460-Y0917-000-02-L-03-4 Main switch

SIPLACE 80S-20 Cast screen for main switch 3.3 - 19
Cast screen for main switch
Y0917m01.dwg
1710460-Y0917-000-02-M-01-4 Cast screen for main switch