80S-20电路图.pdf - 第466页
SIPLACE 80 S-20 Optic al de coupling unit A6 3.19 - 1 5 Optical decoupling unit A6 003272 84-01 0101M D4.vsd 32 7284M 1.eps 00327284 -0101 01MD4 Optical decoup ling uni t A6 1. 1. 1. 11.06.96 11.06.96 11.06.96 Tu. Tu. Tu…

3.19 - 14 Optical decoupling unitA4 SIPLACE 80S-20
Optical decoupling unitA4
00327283-010101MD4.vsd 327283M1.eps
00327283-010101MD4 Optical decoupling unit A4
1.
1.
1.
11.06.96
11.06.96
11.06.96 Tu.
Tu.
Tu.
11.06.1996
11.06.1996
00327283-010101MD4
SIEMENS
Aktiengesellschaft
AUT 5 BPB BS1
Datum
Bearb.
Gepr.
Norm
Name
Dateiname:
Zust.
Mitteilung Datum
Name
(Materialnummer)
Format A4
Mat.-Nr.: FS ES US S/F
Blatt
Maßstab
Weitergabe sowie Vervielfältigung dieser Unterlage, Verwertung und Mitteilung
ihres Inhaltes nicht gestattet, soweit nicht ausdrücklich zugestanden.
Zuwiderhandlungen verpflichten zu Schadenersatz. Alle Rechte für den Fall
der Patenterteilung oder GM-Eintragung vorbehalten.
Copying of this document, and giving it to others and the use or communication
of the contents thereof, are forbidden without express authority. Offenders are
liable to the payment of damages. All rights are reserved in the event of the
grant of a patent or the registration of the utility model or design.
(a1_1zu1.vsd)
00327283.11M
A
X3kg
B
X1kg
1/1
X1kg
A4
X5kg
Siemens AUT5
00327283-01
AA-BBBB-CCCC
15
10
X2kg
X6kg
X2kgX7kg
A4
P P G U U M M 65 7 8 + 65 7 8---
1 2 43 5 6
R3
U1
R2 R4
R6
R5
R9
R10
V2
V1
V6
R8
R7
R11
R12
V4
V3
V7
V8
R1
U2
U3
U4
C1 C3
C2 C4
MP1
MP2
MP3
MP4
MP5
MP6
MP7
MP8
V5
JP1 JP2
1 2 3 1 2 3
MP9
K1
P P G U U M M 5 6 7 8
- - - - 5 6 7 8
- - - - 5 6 7 8
1 2 3 4 5 6
X4kg
X6kg
X5kg
X4kgX3kg
X7kg
Function status
Document status
Product status
SMD Placement System Siplace
Optical decoupling unit A4
The following labels have to be stuck on:
1 : Assembly designation
Attach the terminal designation to the
terminals.
2 : Plug designation
A : Identification label
B : Inspection label
Assembly inscription acc. to recommendation VA-F-510-001
font size 1.5 mm, mat. Scotchcal 3698-E ( color A1 Ral 9006 )
AA = manufacturer/location acc. to SN 37040
BBBB = date (year/month/day) acc. to SN 01007
CCCC = numeral
Product inspection certification acc. to recommendation VA Q 509-001
3 : Terminal designation
Assembly inscription acc. to recommendation
VA-F-510-001
Labels: size approx. ca. 5X12mm, font size 3mm

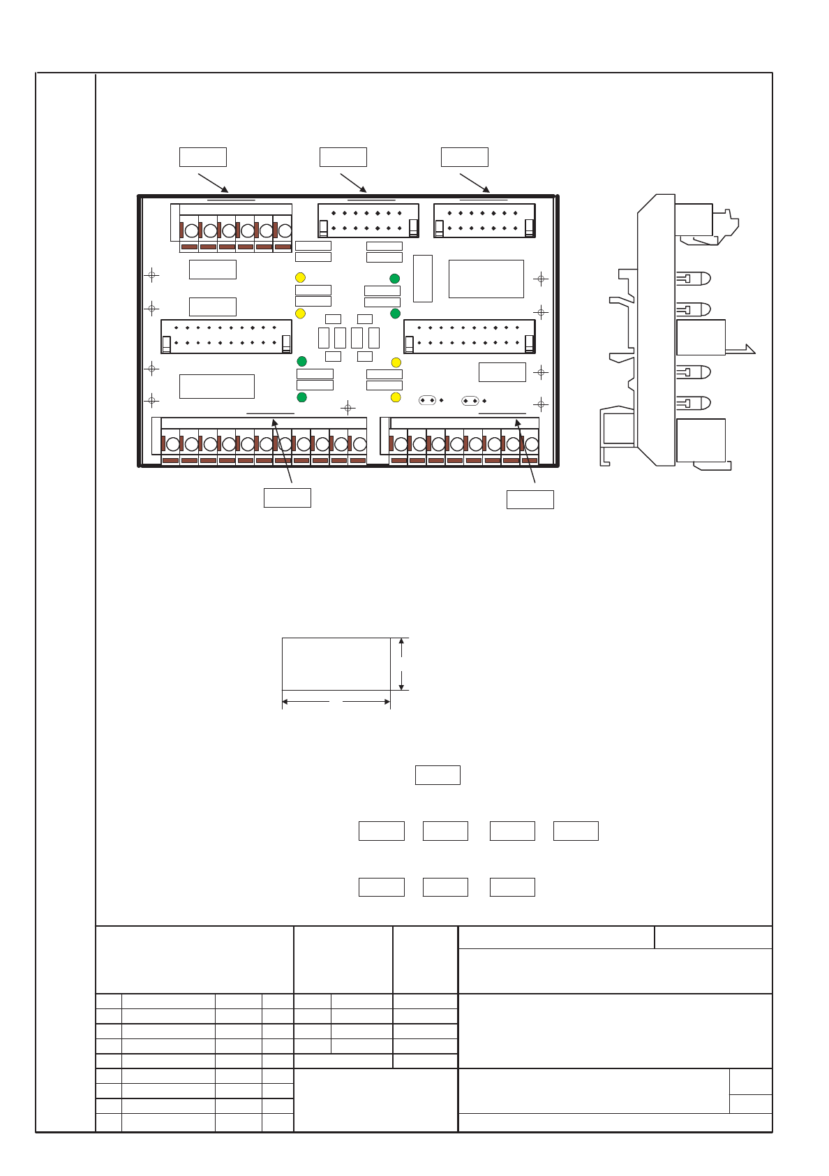
SIPLACE 80S-20 Optical decoupling unit A6 3.19 - 15
Optical decoupling unit A6
00327284-010101MD4.vsd 327284M1.eps
00327284-010101MD4 Optical decoupling unit A6
1.
1.
1.
11.06.96
11.06.96
11.06.96 Tu.
Tu.
Tu.
11.06.1996
11.06.1996
00327284-010101MD4
SIEMENS
Aktiengesellschaft
AUT 5 BPB BS1
Datum
Bearb.
Gepr.
Norm
Name
Dateiname:
Zust.
Mitteilung Datum
Name
(Materialnummer)
Format A4
Mat.-Nr.: FS ES US S/F
Blatt
Maßstab
Weitergabe sowie Vervielfältigung dieser Unterlage, Verwertung und Mitteilung
ihres Inhaltes nicht gestattet, soweit nicht ausdrücklich zugestanden.
Zuwiderhandlungen verpflichten zu Schadenersatz. Alle Rechte für den Fall
der Patenterteilung oder GM-Eintragung vorbehalten.
Copying of this document, and giving it to others and the use or communication
of the contents thereof, are forbidden without express authority. Offenders are
liable to the payment of damages. All rights are reserved in the event of the
grant of a patent or the registration of the utility model or design.
(a1_1zu1.vsd)
00327284.11M
A
X3ki
B
X1ki
1/1
X1ki
A6
X5ki
Siemens AUT5
00327284-01
AA-BBBB-CCCC
15
10
X2ki
X6ki
X2kiX7ki
A6
P P G U U M M 65 7 8 + 65 7 8---
1 2 43 5 6
R3
U1
R2 R4
R6
R5
R9
R10
V2
V1
V6
R8
R7
R11
R12
V4
V3
V7
V8
R1
U2
U3
U4
C1 C3
C2 C4
MP1
MP2
MP3
MP4
MP5
MP6
MP7
MP8
V5
JP1 JP2
1 2 3 1 2 3
MP9
K1
P P G U U M M 5 6 7 8
- - - - 5 6 7 8
- - - - 5 6 7 8
1 2 3 4 5 6
X4ki
X6ki
X5ki
X4kiX3ki
X7ki
Function status
Document status
Product status
SMD Placement System Siplace
Optical decoupling unit A6
The following labels have to be stuck on:
1 : Assembly designation
Attach the terminal designation to the
terminals.
2 : Plug designation
A : Identification label
B : Inspection label
Assembly inscription acc. to recommendation VA-F-510-001
font size 1.5 mm, mat. Scotchcal 3698-E ( color A1 Ral 9006 )
AA = manufacturer/location acc. to SN 37040
BBBB = date (year/month/day) acc. to SN 01007
CCCC = numeral
Product inspection certification acc. to recommendation VA Q 509-001
3 : Terminal designation
Assembly inscription acc. to recommendation
VA-F-510-001
Labels: size approx. 5X12mm, font size 3mm

3.19 - 16 Ground lug (base - door/angle/mounting plate) SIPLACE 80S-20
Ground lug (base - door/angle/mounting plate)
Y0633L04.dwg
1710470-Y0633-000-03-L-04-4 Ground lug (base - door/angle/mounting plate)