KE2050、2060 Parts List.pdf.pdf - 第9页
- 4 - N OT E ( 注記 ) # 0 1 ....F O R EN (20 50 , 2 050R,2055R, EN(2050,2050 R,2055 R, 20 60,2060 R ) 2060,2060 R)用 REF .NO N O T E PART NO D E S C R I P T I O N 品 名 Q ty 1 400-01559 M ANIHO LD ASSY マニホールド組 1 2 40 0-00 546…

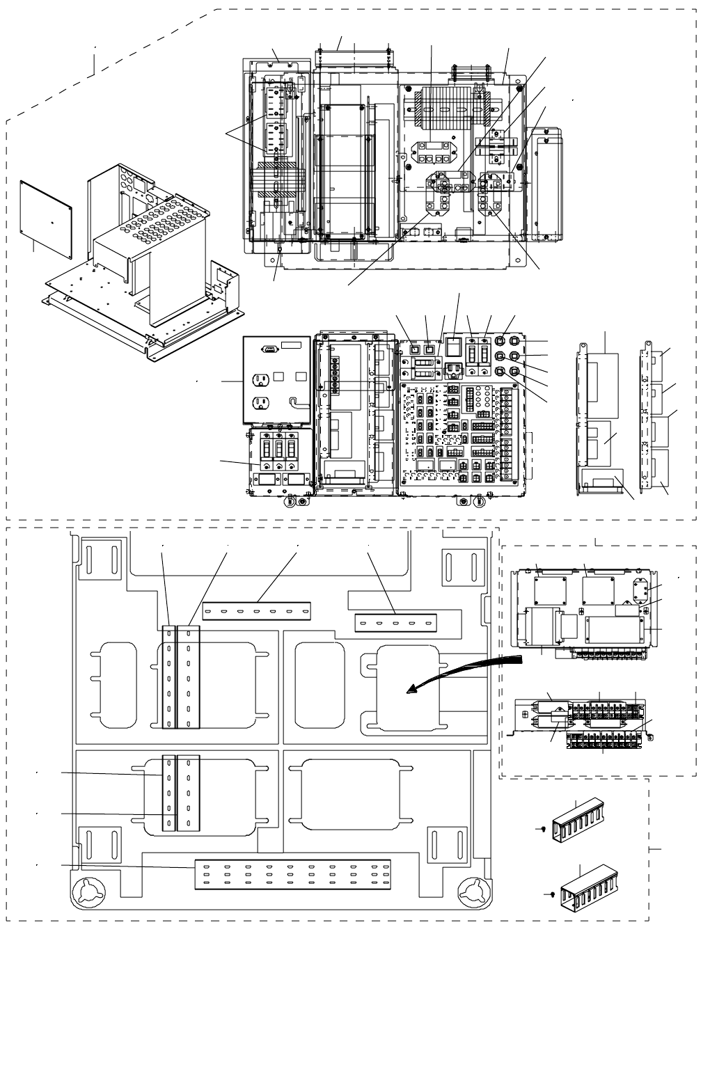
- 3 -
2. BASE FRAME ELECTRIC APPARATUS COMPONENTS (1)
ベースフレーム電装関係(1)
4
3
8
9
7
6
5
10
2
11
12
17
18
18
14
14
19
20
20
19
27
25
22
26
23
17
1
15
38
40
30
39
31
32
37
33
36
35
34
42
44
45
41
43
46
46
28
29
13
47
21
16
24
24

- 4 -
NOTE( 注記 ) #01....FOR EN(2050,2050R,2055R, EN(2050,2050 R,2055 R,
2060,2060R) 2060,2060 R)用
REF.NO NOTE PART NO D E S C R I P T I O N
品 名
Qty
1 400-01559 MANIHOLD ASSY
マニホールド組
1
2 400-00546 AIR MANIFOLD UNIT
エアマニホールド
(1)
3 PJ-3091200-03 MANIFOLD
マニホールド
(1)
4 400-00549 AIR MANIFOLD BRACKET
エアマニホールドブラケット
(1)
5 SL-6043092-TN BOLT
座金付き六角穴ボルト
(2)
6 PJ-0200000-03 PLUG ROUND 12
プラグ φ 12
(1)
7 PX-9500070-00 PLUG
プラグ
(2)
8 PX-9500010-00 PLUG
止栓
(2)
9 PJ-3040600-01 ELBOW
レデューサエルボ
(3)
10 PJ-3010600-03 REDUCER
レデューサ
(2)
11 SL-6052092-TN SCREW
座金付き六角穴ボルト
(2)
12 400-02333 AIR PRESSURE METER ASM.
エアプレッシャーメータ組
1
13 400-01561 TRANSFORMAR ASSY
トランス組
1
14 SL-6103542-TN SCREW M10 L=35
座金付き六角穴ボルト M 10 L =35
(4)
15 400-40378 TRANSFORMER(PSU)
トランス DC
(1)
16 400-40379 TRANSFORMER(SERVO)
トランス AC
(1)
17 400-00450 TRANS SCREW
トランス段ねじ
(4)
18 NM-6120001-SC NUT M12
六角ナット
(4)
19 WS-1220002-KN SPRING WASHER
ばね座金
(4)
20 WP-1252210-SC WASHER 12.5X25.6X2.2
平座金 12.5 X 25.6 X 2.2
(4)
21 400-01562 AC BR ASSY
AC ブラケット組
1
22 SL-6051292-TN BOLT
座金付き六角穴ボルト
(2)
23 SL-6061292-TN SCREW
座金付き六角穴ボルト
(2)
24 E1038-871-000 PLATEN LOCK CAM SCREW
プラテン ロックカム スクリュウ
(2)
25 SL-4040891-SC SCREW M4 L=8
座金付きなべ小ねじ M 4 L =8
(2)
26 400-00487 AC POWER BAR
AC POWER バー
(2)
27 400-00483 AC POWER BRACKET
AC POWER ブラケット
(1)
28 400-01558 MTC IF PANEL L ASSY
MTC インターフェイスパネル L 組
1
29
#01
400-15595 MTC IF PANEL-L ASSY(EN)
MTC インターフェイスパネル L 組(EN)
1
30 SM-4860501-SB SCREW M2.5 L=5
なべねじ M 2.6 L =5
(2)
31 400-02115 HOURMETER ASM.
アワーメータ組
(1)
32 PJ-2300062-00 UNION
隔壁用ユニオン
(1)
33
#01
HK-0429900-7A CAP
キャップ
(1)
34 400-02104 MTC I/F(L) CABLE ASM
MTC I / F(L)ケーブル組
(1)
35
#01
HK-0528905-0B DUST COVER
ダストカバー
(1)
36 400-02062 MTC POWER WIRE L ASM
MTC(L)電源ケーブル組
(1)
37 PX-9500010-00 PLUG
止栓
(1)
38 400-00499 MTS I/F PANEL
MTS I / F パネル
(1)
39 SL-6061292-TN SCREW
座金付き六角穴ボルト
(2)
40 SL-4030881-SC SCREW M3 L=8
座金付きなべ小ねじ M 3 L =8
(4)
41 400-01554 BREAKER ASSY
ブレーカ組
1
42 SL-4040891-SC SCREW M4 L=8
座金付きなべ小ねじ M 4 L =8
(3)
43 HA-0053200-00 CIRCUIT PROTECTOR
ブレーカ
(1)
44 SL-4040891-SC SCREW M4 L=8
座金付きなべ小ねじ M 4 L =8
(2)
45 SL-4040891-SC SCREW M4 L=8
座金付きなべ小ねじ M 4 L =8
(4)
46 HA-0053200-10 CIRCUIT PROTECTOR
サーキットプロテクタ
(1)
47 400-00489 BRAKER BRACKET
ブレーカブラケット
(1)

- 5 -
3. BASE FRAME ELECTRIC APPARATUS COMPONENTS (2)
ベースフレーム電装関係(2)
M4 * 8
60
58
59
61
41
42 43 44
20
56
5754 5552 5351 68
50
64 65
66
67
62 63
13 14
45
46
303940
31
31
22
23
24
21
37
38
36
15
16
17
18
28
19
29
26
27
25
32
33
49
35
34
88
5
3
12
6
7
10
9
2
2
4
11
1
47
48