松下CM识别方式完整版手册_1F88E.pdf - 第48页
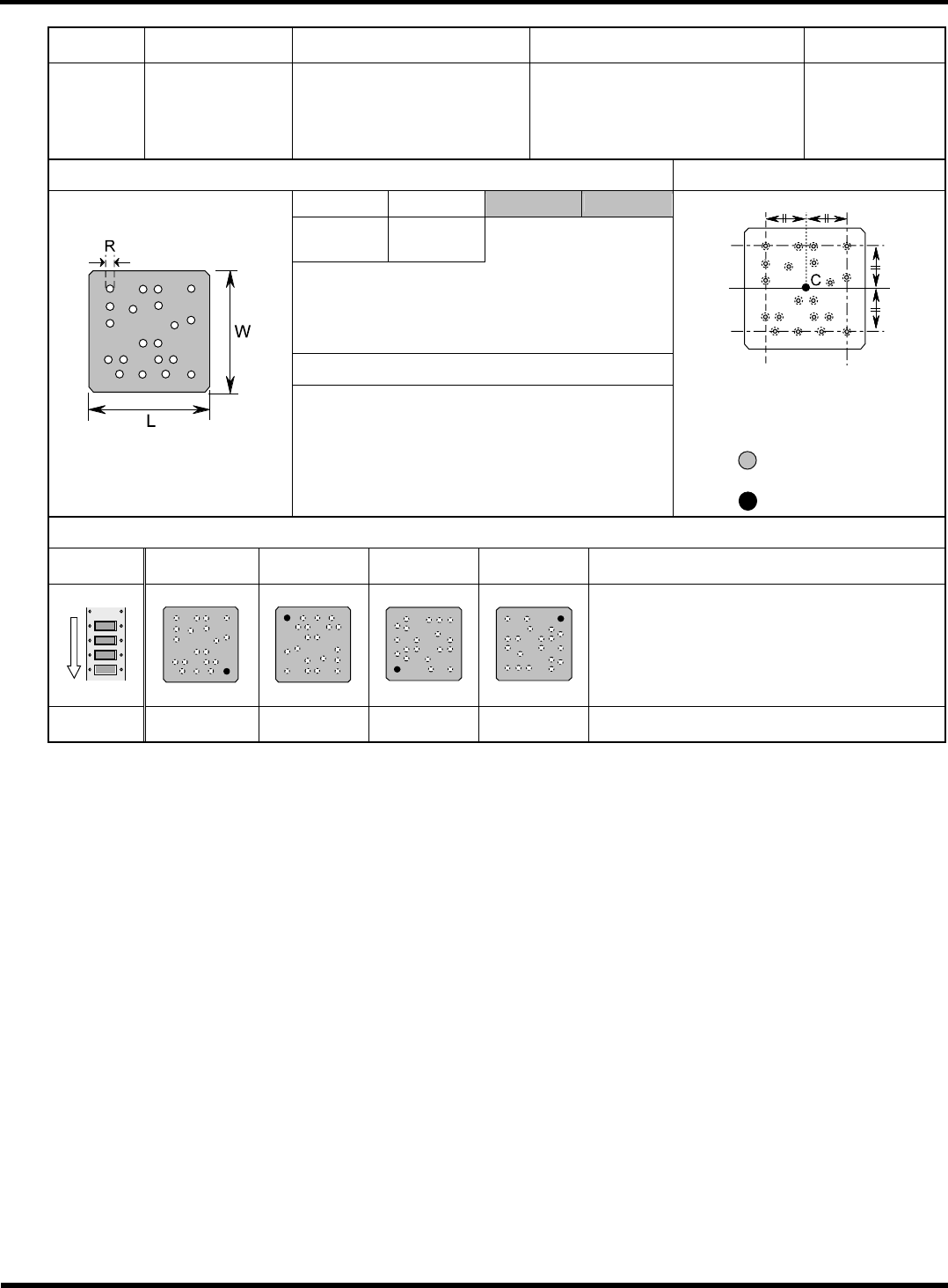
HGR14 附录 1.3 按形状输入数据项目 附录 1-4 8 � 非格子排列 BGA 示教步骤 对未配置于格子状的 BGA/ µ BG A (CSP) 等背面焊锡球部品需要的部品示教步骤进行说明 。 < 准备 > 1. 准备要实装的部品。 2. 通过 PT 登记带有 BGA 扩展数据的部品。 ∗ 在此只记载对识别需要的项目。 输入项目 • R EF : 237 /238 • W idth ( 宽 ) W • L en…

HGR14
附录 1.3 按形状输入数据项目
附录 1-47
形状编号
对象形状
参考编号
对象部品
(
类别
)
对应
Ver.
4j
配置于不定位置的焊
锡球
2
237 ~ 238 FC-BGA
等
V7.02
以上
形状以及输入数据
识别方式以及结果
长度
L
宽度
W
球直径
R
球直径容许
判断标准
1)
长度
: L
±
(20%)
2)
宽度
: W
±
(20%)
3)
球直径
: R
±
(
球直径容许值
)
4)
角度
:
识别角度
±
35[
°
]
等
(Bottom view)
在指定行列的球中心定位
对其他球进行有无检测
:
检测位置
:
检测中心
可识别姿势
(
只可识别以下式样
<
也有一部分例外
> )
式样编号
0 1 2 3
式样
进给方向
式样角度
±
0
°
±
180
°
+
90
°
−
90
°
(备注)
1. 需要通过生产数据示教进行使用部品的示教。
关于示教步骤,请参照下页以后的‘非格子排列 BGA 示教步骤’。
HGR14-C-PMB01-A02-01

HGR14
附录 1.3 按形状输入数据项目
附录 1-48
�
非格子排列
BGA
示教步骤
对未配置于格子状的 BGA/
µ
BGA (CSP) 等背面焊锡球部品需要的部品示教步骤进行说明。
<准备>
1.
准备要实装的部品。
2.
通过 PT 登记带有 BGA 扩展数据的部品。
∗
在此只记载对识别需要的项目。
输入项目
• REF: 237/238
• Width (宽) W
• Length (长) L
• Expansion data type: BGA expansion
(扩展数据种类: BGA 扩展)
BGA expansion (BGA 扩展)
• Ball diameter (球直径)
• Ball diameter limit (球直径容许值)
3.
由 PT 将数据转送到机器。
∗
此后的作业是通过机器的示教作业。
请用供料器或托盘向机器供给对象部品。
HGR14-C-PMB01-A02-01
9Q4C-EPt-Pl-001
9Q4C-EPt-Pl-002

HGR14
附录 1.3 按形状输入数据项目
附录 1-49
<示教>
1.
在主菜单的<数据修正菜单>画面上按[生
产数据示教]。
2.
按[芯片识别]。
3.
通过[芯片选择]选择对象部品后再按
UNLOCK
+ [吸着]。
4.
按操作面板的
UNLOCK
+ [示教开始]。
下一页
HGR14-C-PMB01-A02-01
HGR14-017E
3
2
1