1OM-1321-005_w.pdf - 第61页
1-4 Tg1297-ID-GU 2.2 使用者保護のための機構 2.2 使用者保護のための機構 2.2.1 [ 非常停止 ] スイッチ 非常停止 Fig.1A6 [ 非常停止 ] スイッチは、非常時などで緊急に装置を停止させたい ときに使用します。 [ 非常停止 ] スイッチを押すと、 電源が切れすぐに装置が停止します。 電源が切れると、前面操作パネルの [ 電源 入 ] ボタンが赤色に点 灯します。 • [ 非常停止 ] スイッチの…

1-3
Tg1297-ID-GU
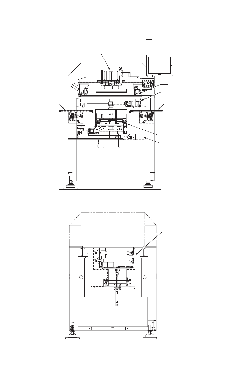
2.1 装置の外観
2.1.2 ユニット配置図
スキージヘッド部
スクリーンホルダ部
基板認識部
搬出コンベア部
(Rコンベア)
基板チャック部
テーブル部
供給コンベア部
(Lコンベア)
Fig.1A4 装置前面
クリーニング部
Fig.1A5 装置後面
0602-001

1-4
Tg1297-ID-GU
2.2 使用者保護のための機構
2.2 使用者保護のための機構
2.2.1 [ 非常停止 ] スイッチ
非常停止
Fig.1A6
[ 非常停止 ] スイッチは、非常時などで緊急に装置を停止させたい
ときに使用します。
[ 非常停止 ] スイッチを押すと、
電源が切れすぐに装置が停止します。
電源が切れると、前面操作パネルの [ 電源 入 ] ボタンが赤色に点
灯します。
•
[ 非常停止
] スイッチのロック
[ 非常停止 ] スイッチを押し、電源が切れて装置が停止すると、
[ 非
常停止 ] スイッチはロックされ、不注意で電源を再投入することが
できないようになります。
•
[ 非常停止
] スイッチのロック解除
電源を再投入する場合には、非常停止の原因を確認および除去し、
各部の再確認を行った後に、 [ 非常停止
] スイッチのロックを解除
する必要があります。
[ 非常停止 ] スイッチを右に回して手前に引くと、ロックが解除さ
れます。
非常停止
Fig.1A7
0602-001

1-5
Tg1297-ID-GU
2.2 使用者保護のための機構
2.2.2 カバー部
開閉扉
開閉扉
開閉扉
安全カバー
Fig. 1A8 装置前面 Fig. 1A9 装置後面
生産運転中の危険を防止するため、装置内部の動く部分に身体の一
部や衣類、物が接触しないように開閉扉が装備されています。
警告
生産運転を行うとき、および生産運転中は、危険を防止す
るために、すべての開閉扉を閉めてください。
注意
開閉扉で手・指をはさみ、けがをするおそれがあります。
•
取っ手をしっかり持ってゆっくり開閉してください。
•
カバーを閉めるときに、装置に手を置かないでください。
0703-002
装置内には、重大な人身事故の原因となる、強力な可動部や
高電圧の危険があります。
•
資格のある保守員以外はカバーを外さないでください。
•
装置のカバーは、取付けた状態で使用してください。
•
カバーが外れている場合は、取付けてください。
•
運転を開始する前に、開閉扉を閉めてください。
•
開閉扉のインターロックを解除しないでください。
危険