5OM-1602-004_w.pdf - 第101页
5OM-1602 0910-001 3-B

5OM-1602
0910-001 3-A
第三章
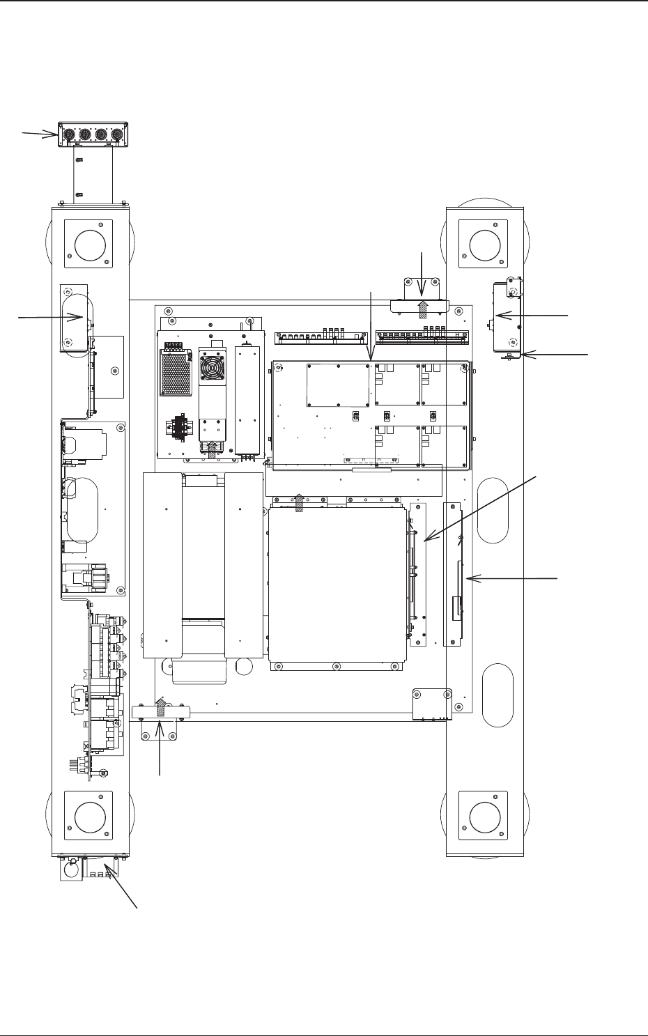
元件配置图
本章节记载了各部的布局等。
因含有一定的难度,参考时请充分注意。

5OM-1602
0910-001 3-B

5OM-1602
3-1
元件配置图
1103-003F(01C00)
架台下布局 ( 整体 )
Front/Rear I/F BOX
Intermediate Conveyor I/F (L)
Side Panel C Side Panel R
Side Panel L
Noise Filter
Air Inlet FAN
DC Power Supply
CPU-1,-2
LAN I/F
LED Lighting Control PCB
OP Panel RB
Intermediate Conveyor I/F (R)
Exhaust FAN
Servo Amplifier, I/O Board
CPU-Mst1
(option)