5OM-1602-004_w.pdf - 第146页
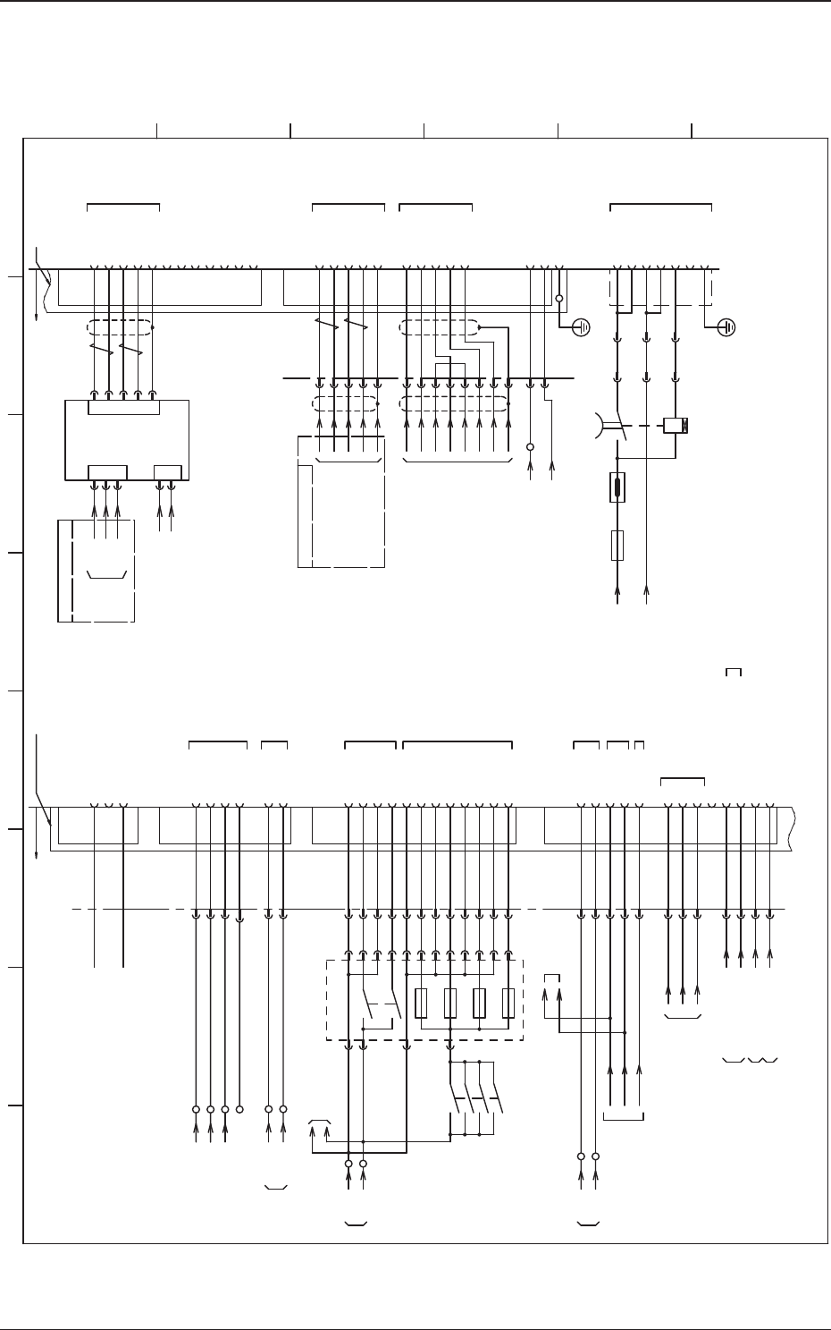
5OM-1602 4-29 外部单元连接批量连接器 ( 前 ) 1 103-003D(M914WD---0022) 1 2 3 4 5 6 7 8 A B C D E F 10G 24G5B 24G6B 24G7B 24G8B :1 :1 :2 F25(5A) F26(5A) F27(5A) F28(5A) 10G 10G 10G :4 :3 :2 X271 13:1 :4 :3 :2 44 43 34 33 24 23 14 13 K…

5OM-1602
4-28
1103-003K(M914WD---0021)
U06 I/O STLT CUT (2)
X0601 X0602
CN1A/1B
CN2A/2B
IN OUT
CN10
1 2
3
CN4CN3
21
24B1
10B
10A
24A3
CN11
CN12
CN13
CN14
CN15
CN16
CN17
CN18
CN19
CN20
CN21
CN22
CN23
CN25
-
OUT
+
+
OUT
-
+
OUT
-
+
OUT
-
1
2
3
3
2
1
3
2
1
3
2
1
3
2
1
3
2
1
1
2
3
1
2
3
1
2
3
1
2
3
1
2
3
3
2
1
3
2
1
3
2
1
3
2
1
3
2
1
2
1
CN45
CN43
CN42
CN41
CN40
CN39
CN38
CN37
CN36
CN35
CN34
CN33
CN32
CN31
CN30
CN24
1
2
1
2
1
2
1
2
1
2
1
2
1
2
1
2
1
2
1
2
1
2
1
2
1
2
1
2
1
2
CN44
4
X0623
X0622
X0621
X0620
X0619
X0618
X0616
X0615
X0614
X0613
X0612
X0611
X0610 X0630
X0631
X0632
X0633
X0935
X0636
X0937
X0638
X0643
-X0603 -X0604
XB0615
XB0614
XB0611
XB0610
:1
:2
:3
:3
:2
:1
:3
:2
:1
:3
:2
:1
Y0632
Y0633
:1
:2
:1
:2
XY0632
XY0633
687
686
685
684
683
682
680
679
678
677
676
675
674
690
692
693
695
696
697
698
703
705
704
:9
:3
:5
:7
:A2
:A1
688
X0642
702
701
X0641
X0640
700
689
X0625
RX
/RX
TX
/TX
7 39 5
5 93 7
/TX
TX
/RX
RX
:7
:5
:3
:9
Y0638
XY0638
:2
:1
[D-/11/6A]
[B-/02/5C]
[B-/02/5B]
I/O P.C.B
U06
X0639
699
Y0639
XY0639
:2
:1
X0634
694
X10701
:1
:2
[D-/02/2E]
X0624
-X1300D3
[D-/22/3F]
X196-1
X196-2
X:1-NST18,20,22
:3
:2
:1
:7
:6
:5
:4
X:1-NST18,20,22
:11
:8
:9
:10
X:1-NST18,20,22
X:1-NST35,36
X:1-NST35,36
:4
:3
:2
:1
X:2-NST18,20,22
X:2-NST18,20,22
X:2-NST18,20,22
X:2-NST35,36
:4
:3
X:2-NST35,36
:2
:1
:3
:2
:1
:7
:6
:5
:4
:11
:8
:9
:10
X196-10
X196-11
X0643A-1
X0643A-2
Y0642
XY0642
:2
:1
X1196
:1
X1196
:2
X1196
:8
X1196
:9
BR
BK
BL
BR
BK
BL
BR
BK
BL
BK
R
BR
BK
BL
X0644
X0645
B0612
XB0612
B0613
XB0613
:3
:2
:1
W
BK
BL
OUT1
-
:4
BR
+
OUT2
W
BK
BL
OUT1
BR
+
OUT2
:3
:2
:1
:4
-
B0614
B0615
B0610
B0611
BK
R
BK
R
BK
R
BK
R
X10624
:1
:2
705
704
[BL/01/2E]
B5014
[BL/01/2E]
B5015
STLT_CUT(2)
D.ON
L.ON
-
+
OUT
-
BL
BK
W
BL
BK
BR
BR
+
+
-
L.ON
D.ON
BL
BK
W
BR
BK
R
BK
R
D.ON
L.ON
-
+
OUT
-
BL
BK
W
BL
BK
BR
BR
+
+
-
L.ON
D.ON
BL
BK
W
BR
BK
R
ch2-1
X0902(CN2)
U09(STLT CUT(1))
U14(STLT CNVR(R))
X1401(CN1)
ch2-1
X0701:3へ
X0701:4へ
U07(STLT_IF)
X : Power Supply for 1-B1611 and 2-B1611
1 2 3 4 5 6 7 8
A
B
C
D
E
F
SL-SRS or DL-SRS
Feeder Base 2 Ascending
Feeder Base 2 Descending
Ascending 2
Ascending 1
Shutter Open/Close 1
Shutter Open/Close 2
OP
OP
High-Speed/Multi-Functional
Head Change Over
F/R Prcs. Communication
Permitted
Nozzle Stocker 2
Nozzle Stocker 2
Nozzle Stocker 2
Nozzle Stocker 2
Module Conveyor
Lane A CV Rotation (R)
Module Conveyor
Lane B CV Rotation (R)
OP
Dust Air Blowing (Rear)
Vacuum/Collective Disposal
Change-Over
PCB Positioning Unit
Drop Prevention Stopper 2
Pick-up Error Detection
Sensor (Rear)
Remote
Pick-up Error Detection
Sensor (Front)
Remote
Y-Direction Positioning Check 1
Y-Direction Positioning Check 2
Cylinder Upper Limit Detection
Cylinder Lower Limit Detection
Unit Lower Limit Detection 1
Unit Lower Limit Detection 2
Shutter Closing Check 1
Shutter Closing Check 2
Clamping Check 1
Clamping Check 2
Feeder Base/Main Body
Connection Check
OP
OP
OP
External Conveyor Unit
Emergency Stop Confirmation (R)
External Conveyor Unit
Safety Cover Check (R)
Nozzle Stocker 2
Nozzle Stocker 2
Nozzle Stocker 2
Nozzle Stocker 2
Nozzle Stocker 2
Nozzle Stocker 2
Feeder Base 2
Positioning Unit Drop
Prevention Lock Check 2 (L)
Positioning Unit Drop
Prevention Lock Check 2 (R)
External Unit Connecting
Bundled Connector (Front)
Connector Case Connector Case
FG
(Connector Case)
FG
(Connector Case)

5OM-1602
4-29
外部单元连接批量连接器 ( 前 )
1103-003D(M914WD---0022)
1 2 3 4 5 6 7 8
A
B
C
D
E
F
10G
24G5B
24G6B
24G7B
24G8B
:1
:1
:2
F25(5A)
F26(5A)
F27(5A)
F28(5A)
10G
10G
10G
:4
:3
:2
X27113:1
:4
:3
:2
4443
3433
2423
1413
K77
:2
X2716
:1
43
56
K72
U27
:4
:3
:2
X27122:1
X2717
:3
:4
L110
L210
E
L310
:B2
:B1
:A6
:A5
:B6
:B5
:B4
:B2
:B1
:2
:1
10B
24B1
10D
48D3K
24A2
10A
U181F
:2
:3
:4
:5
:6
:7
:8
:9
:10
:9
:10
:11
:12
TX
-TX
-RX
RxD
GND
RX
SD
TxD
:5
:6
:7
:8
:9
:10
:11
:12
:1
:2
:1
:2
:3
:4
:5
:6
:3
:4
:5
:1
:2
:3
:4
RTS
CTS
:9
:7
:5
:3
[B-/02/11G]
RS232C
:1
:2
:3
:4
:5
:8
:7
:8
:9
:10
:11
:12
N.C
N.C
N.C
N.C
N.C
N.C
N.C
GND
CAN H
24V
A63B
[B-/02/12E]
SD
CAN L
SG
:A2
:A1
:B1
:B2
[B-/03/6G]
GND
DC24
CAN H
CAN L
SD
Q201-L1
Q201-L2
Q201-L3
[B-/01/4F]
:1
:4
:3
:2
1
5
4
2
3
X1811F
CN1
10D
48D3K
24A2
10A
10G
24G1B
24G2B
10G
[D-/22/5B]
U181F-X1812
:B3
425
X27154
[B-/02/6E]
10B
24B1
10G
24G
421
:A1
:A4
:A3
:A2
:A1
:A2
:B3
:9
:7
:5
:3
X27114:1
:1
:2
:3
U27(RLY)
-X1300B1
-X1300C
-X1300D1
-X1300F1
-X1300D3
-X300B
-X300C
-X300D
-X300F
-X300E-X300A
U69(FB) (2)
X6909
U69(FB) (2)
X6906
24G3B
*
-X1300B2
:3
:6N.C
:11U27-X2723:3
:1
[BL/01/2B]
-X1300F3
500
:12
:2
U06(CT)-X0616:1
U06(CT)-X0616:2
10B
680
U12(PWR)-X1222:2
U12(PWR)-X1223:2
[D-/21/3C]
[BL/03/6D]
[BL/03/6D]
538
539
CPU2(U81)-COM2
U14(STLT_CNVR:R)
X1402
X8109
[F-/11/8C]
[FB/01/1F]
[FB/01/1F]
[FB/01/1C]
1
2
CN2
GND
24V
10A
24A2
X1812
[D-/22/3E]
COM A
A1
B1
A3
CN4
TR+
TR-
GND
COM B
10B
:2
:3
:4
X1814
:5
:3
:8
:7
:2
:2
:3
:5
:7
:8
:6
:4
:4
:6
-X1300F2
X30F
[D-/22/5E]
-X1140
:3
:1
:2
914B
913B911B 912B
14 13
K90B
8 12
R03B
(1sec)
F050B(5A)
:3
-X2140
:1
:2
24G
10G
X140F
:E
:F
:G
:B
:C
:D
:A
[D-/22/1C]
913B
913B
10G
10G
914B
FG
U05-X0523:2
[BL/01/7E]
513
:6
:7
:8
:A2
:A1
-X1300D2
:B1
2CH
AE-LINK
2ch-1
HLS-LINK
1 2 3 4 5 6 7 8
A
B
C
D
E
F
Air Pressure
(Bundled Connector Relay)
TV.EV12 Power Supply (OP)
EMI Case
Multi-Layer Tray (OP)
AC200V Power Line
DC Power Line
for the Feeder Base
DC48V Power Line
SV-NET
A63B
CT-Axis AMP
CT-Axis AMP
DC Power Line for
the Multi-Layer Tray (OP)
Feeder Connection Confirmation
Multi-Layer Tray Connection Confirmation (OP)
Wafer Connection Confirmation (OP)
Multi-Layer Tray (OP)
(Bundled Connector Relay)
EMI Case
Safety Circuit
Multi-Layer Tray (OP)
DC Load Power Line
DC Power Line
for the Feeder Base
Air Pressure
*OPTION
[CU/01/1B]
[FB/01/1G]
[FB/01/1A]
[CU/01/1B]
Main Machine
X30R : External Unit Connecting Bundled Connector
SL-SRS or DL-SRS
SL-SRS or DL-SRS
EMI Case
Connector Case
Main Machine
External Unit Connecting
Bundled Connector
Tape Feeder
Single Connection
Connector
(Drawer Connector)
[FB/01/1F]
ToEthernet Convertor To ID Controller
(2 Pin)
A Module
(6 Pin)
B Module
(12 Pin)
C Module
(5 Pin)
D Module
(12 Pin)
E Module
(12 Pin)
F Module
Multi-Layer Tray <ACV> (OP)
Multi-Layer Tray <ACV> (OP)
Multi-Layer Tray : Emergency Stop
Multi-Layer Tray :
Interlock
Feeder Base

5OM-1602
4-30
1201-004E(M914WF---0001)
CPU1 电路图
1
2 3 4 5 6 7 8 9 10 11 12
A
B
C
D
E
F
G
H
8
14
13
10
7
6
5
2
3
1
FG
R-GND
GND
GREEN
BLUE
RED
G-GND
GND
H-SYNC
V-SYNC
B-GND
(CN1)
(CN3)
CN1
(FRONT)
N74F
X16503
X16501
USB-IN
X7403F VGA
POWER
X7403B
U91
:14
:10
:8
:13
:7
:6
:5
:2
:3
:1
FG
X9104
(CN5)
FG
GND
24V
[R-/01/10C]
1
3
2
POWER
(CN5)
10B
FG
GND
24B3
24V
[B-/02/5C]
1
3
2
(REAR)
N74B
U91
[R-/01/10H]
FG
R-GND
GND
GREEN
BLUE
RED
G-GND
GND
H-SYNC
V-SYNC
B-GND
X7405F
X7405B
10B
24B3
[B-/02/5C]
X7401F
U91
[R-/01/10G]
X19105
X16502
8
14
13
10
7
6
5
2
3
1
FG
R-GND
GND
GREEN
BLUE
RED
G-GND
GND
H-SYNC
V-SYNC
B-GND
CN2
8
14
13
10
7
6
5
2
3
1
FG
R-GND
GND
GREEN
BLUE
RED
G-GND
GND
H-SYNC
V-SYNC
B-GND
CN3
8
14
13
10
7
6
5
2
3
1
FG
R-GND
GND
GREEN
BLUE
RED
G-GND
GND
H-SYNC
V-SYNC
B-GND
8
14
13
10
7
6
5
2
3
1
FG
R-GND
GND
GREEN
BLUE
RED
G-GND
GND
H-SYNC
V-SYNC
B-GND
(CN3)
U165
VGA
(CN1)
USB-IN
X7401B
X19106
+24V
GND
2
24B1
10B
POWER
X7307
[B-/02/5C]
CN4
1
Touch Panel Monitor
Touch Panel Monitor
To CPU1(USB)
To CPU1(USB)
Image Changer
To CPU1(VGA)