5OM-1602-004_w.pdf - 第140页
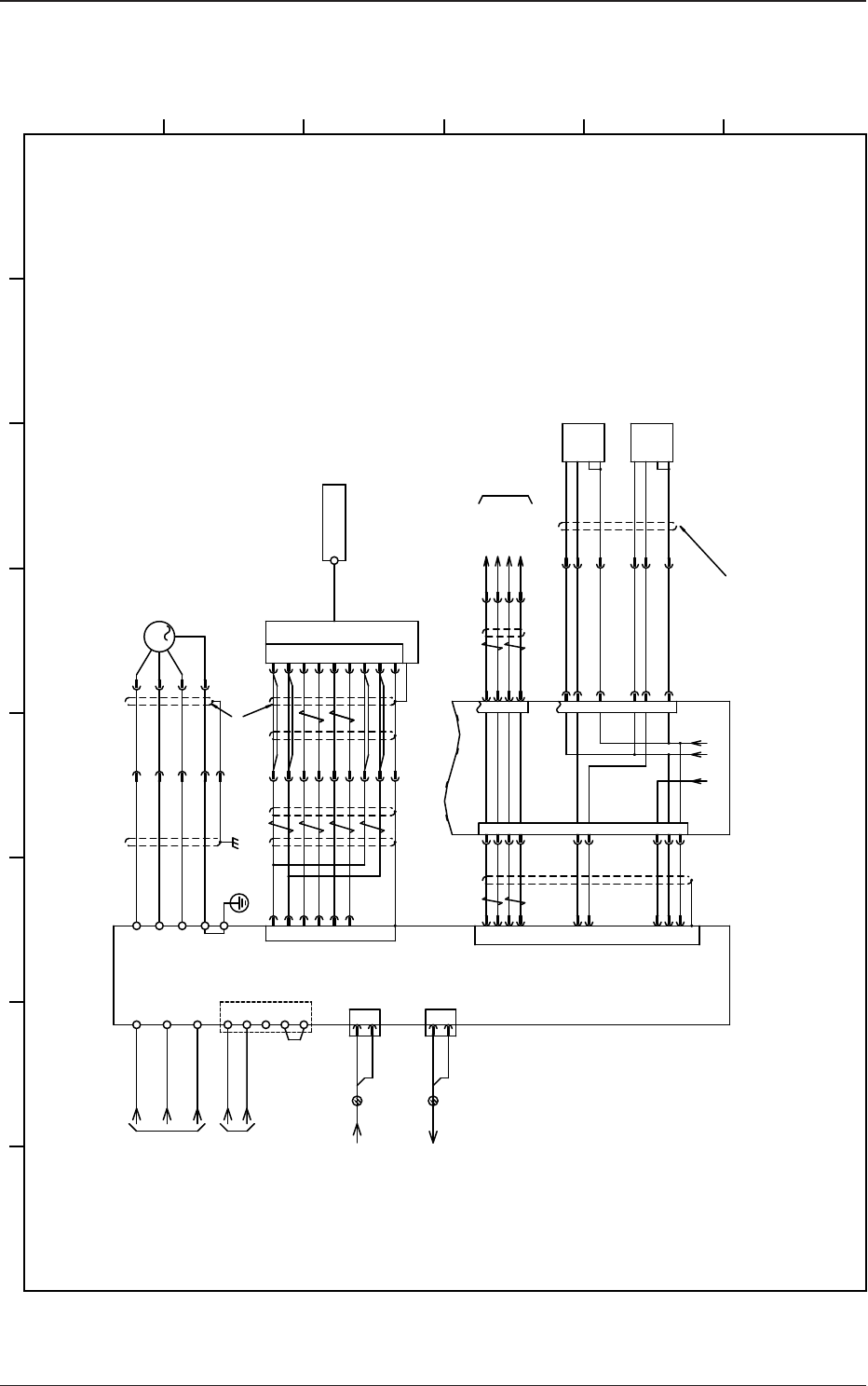
5OM-1602 4-23 0910-001B(M914WC---0012) X 轴 (F) 马达电路图 3 M -X2100 :3 :4 :2 -M21 :1 W V L2 L3 PE PE U L1 3 F AC200V AC200V U24F D C P L21 L1 1 L221 L121 L313 L213 L1 13 OUT - + -B2101 :2 -X12410 :3 :1 :4 :6 :5 -X12102 [B-/…

5OM-1602
4-22
0910-001B(M914WC---0011)
Y 轴 (F) 马达电路图
3
M
3
M
-X12301
-X2300
-M23
:1
:2
:3
:4
-X2200
:1
-M22
:2
:3
-B2203
-X2202L
-X2203
-X2302L
-X2303
10B
24B1
W
V
L2
L3
L11
L21
P
C
D
CN2L
PE
CN3
U
L1
3FAC200V
AC200V
W
V
U
PE
CN3
3FAC200V
AC200V
-X2401-X2402
-X2404-X2403
U24F
CN6 CN5
CN2 CN1
CN7
CN3 CN4
OUT
-
L
+
CN8
CN10
CN9
CN12
-X2407
-X2406
-X2405
-X2408
-X2410
-X2412
-X2409
:4
L221
L121
L114
L214
L314
[B-/01/11F]
[B-/01/11F]
[C-/12/1C]
[B-/01/11G]
[B-/01/11G]
[R-/03/8C]
[B-/02/5C]
-X221A
-X221B
CN1A
CN1B
L1
L2
L3
CN1A
-X231A
CN1B
-X231B
D
C
P
L21
L11
L315
L215
L115
L121
L221
Y1-Axis
-M22
A22F
A23F
Servo Motor AMP
Y1
Servo Motor AMP
Y2
Y2-Axis
-M23
U24R:CN9
-X2409:1
-X2409:4
[C-/01/8F]
CN2
CN13A
-X2413A
CN13B
-X2202
CN2
-X2302
CN2L
[C-/12/4E]
X29401
U24R:CN13B
-X2413B:1
-X2413B:2
[C-/01/8D]
-B2202
OUT
-
L
+
-X12410
:A3
:A2
:A1
:A3
:A2
:A1
:B1
:B2
:B1
:B2
-X12201
-U22
-U22
-U23
-U23
[C-/02/1C]
Y Beam (Front)
To U94 (Counter Board)
From A21F-X211B
Robot Cable
2
4
3
2
1
7
8
7
8
1
3
2
12
5
P5
LG
MRR2
MR2
LG
P5
MD2
MDR2
MD
MDR
SD
DOCOM
LSP
LSN
DICOM
LAR
LA
6
16
LBR
LB
7
17
CN1
19
14
4
16
6
11
1
7
17
9 9
17
7
1
11
6
16
4
14
19
17
7
16
6
5
12
2
3
6
16
7
17
Plate
SD
3
2
12
5
SD
Plate
DICOM
LSN
LSP
DOCOM
5
12
2
3
19
14
4
16
6
11
1
7
17
99
17
7
1
11
6
16
4
14
19
:6
:15
:8
:10
:12
:4
:2
:5
:13
3
2
12
5
1
3
2
10
8
9
4
7
2
1
3
4
7
2
1
:80
:78
:77
:79
X9401
Control Circuit Power Supply
Main Circuit Power Supply
Control Circuit Power Supply
Main Circuit Power Supply
SD
20
EM1
20
1
2
6
1
2
20
EM1
20
2
4
3
2
1
7
8
7
8
1
P5
LG
MRR2
MR2
LG
P5
MD2
MDR2
MD
MDR
SD
SD
CN11:5 10B
:1
:2
:3
:4
SD
24B1
SSCNET3(ch1)
Connector Case
:9
:8
:7
Robot Cable
Y-Axis Limit (-)
Y-Axis Approach Detection
1
2
1
2
1
2
1
2
24B1
24B1
24B1
24B124B1
24B1
10B
10B
10B
10B
10B
10B10B
10B
440
10B
:13
:5
:2
:4
:12
:10
:8
:15
:6
Linear Scale Head
(Converter)
15
8
7
1
3
4
2
5
6
MRR
MR
FG
5V
0V
0V
MDR
MD
5V
Robot Cable
Linear Scale Head
(Converter)
Connector Case
15
8
7
1
3
4
2
5
6
MRR
MR
FG
5V
0V
0V
MDR
MD
5V
Connector Case
to A21R-X211A
SSCNET3(ch1)
1
2 3 4 5 6 7 8 9 10 11 12
A
B
C
D
E
F
G
H
(/Phase A)
(/Phase B)
(Phase B)
(Phase A)

5OM-1602
4-23
0910-001B(M914WC---0012)
X 轴 (F) 马达电路图
3
M
-X2100
:3
:4
:2
-M21
:1
W
V
L2
L3
PE
PE
UL1
3
F
AC200V
AC200V
U24F
D
C
P
L21
L11
L221
L121
L313
L213
L113
OUT
-
+
-B2101
:2
-X12410
:3
:1
:4
:6
:5
-X12102
[B-/01/11E]
[B-/01/11E]
L
OUT
-
+
-B2102
L
X-Axis
-M21
A21F
Servo Motor AMP
X
-X211A
-X211B
CN1A
CN1B
[C-/11/2C]
CN5
-X2405
[R-/03/8D]
X29401-X2411
CN11
CN3
-X2103
CN10
-X2410
10B 24B1
CN13A:2
[C-/11/6F]
-X2102L
CN2L
:A1
:A2
:A3
:B1
:B2
-U21
-U21
[F-/12/5A]
Robot Cable
Robot Cable
X Beam (Front)
Main Circuit Power Supply
Control Circuit Power Supply
:6
:15
:8
:10
:12
:4
:2
:5
:13
2
4
3
7
8
1
SD
to A22F-X221A
18
9
19
8
To U94
(Counter Board)
CN1
:72,64
:70,62
:69,61
:71,63
X9401
:5
:6
:7
:8
17
6
16
LBR
LA
LAR
8
7
10
7
LB
9
SSCNET3(ch1)
6
4
5
3
3
2
12
5
DOCOM
LSP
LSN
DICOM
Plate
SD
2
4
3
1
1
2
20
EM1
5
1
2
1
2
P5
LG
MRR
MR
MD
MDR
15
8
7
1
3
4
2
5
6
MRR
MR
FG
5V
0V
0V
MDR
MD
5V
Connector Case
Linear Scale Head
(Converter)
CPU2
From FB-U82(ID:0)
SSCNET3(ch1)
X8201
Fφ
1 2 3 4 5 6 7 8
A
B
C
D
E
F
X-Axis Limit (+)
X-Axis Limit (-)
(/Phase A)
(/Phase B)
(Phase B)
(Phase A)

5OM-1602
4-24
0910-001B(M914WD---0001)
主机冷却扇电路图
1 2 3 4
A
B
C
D
E
F
DC Power Supply G4
Cooling Fan (Upper)
Housing Section
Cooling Fan (Front)
M
M105
M
M106
M173
R BK
10A24A2
Ceiling (Left)
Cooling Fan
M
M101
GA
Ceiling (Right)
Cooling Fan
M
M102
GA
R BK
R BK
DC Power Supply G4
Cooling Fan (Rear)
M
M174
R BK
Housing Section
Cooling Fan (Rear)
BB
BB
BZ
BZ
[B-/02/6A] [B-/02/6B]
R BK
R BK
X:FAN101-2 X:FAN101-1
X:FAN102-2 X:FAN102-1
X:FAN105-2 X:FAN105-1
X:FAN106-2 X:FAN106-1
X:FAN174-2 X:FAN174-1
X:FAN173-2 X:FAN173-1
:2 :1
:2 :1
M
XM171
:A3
XM171
:B3
XM171
:A4
XM171
:B4
XM171
:A2
XM171
:B2
XM171
:A1
XM171
:B1
1 2 3 4
A
B
C
D
E
F