TR8S_维修调整.pdf - 第68页
Rev 1.0 维修调整要领书 7- 4. 闸门减速电路的更换 闸门减速电路③是用 4 个螺丝安装在 Z 装置之 ST_BASE_8S_L (A) 的底面。 请把③附带的托架 (B) 从 (A) 拆下,然后,从( B )取下 2 个螺丝,再更换闸门减速电路③。 品名 货号 ➂ SLOW MODE ( SHT) CABLE 3 ASM 40049706 ➂ B A 7-4

Rev1.0
维修调整要领书
7-3.
闸门电磁阀的更换
请利用调试模式的“Z JOG”移动 Z 轴,将电磁阀移到容易更换的位置。请更换闸门电磁阀②。
②是用二个螺丝安装在 Z 装置之 ST_BASE_8S_L (A)的底面。
品名
货号
②
闸门电磁阀组件
40049718
②
A
7-3

Rev1.0
维修调整要领书
7-4.
闸门减速电路的更换
闸门减速电路③是用 4 个螺丝安装在 Z 装置之 ST_BASE_8S_L (A)的底面。
请把③附带的托架(B)从(A)拆下,然后,从(B)取下 2 个螺丝,再更换闸门减速电路③。
品名
货号
➂
SLOW MODE (SHT) CABLE 3 ASM
40049706
➂
B
A
7-4

Rev1.0
维修调整要领书
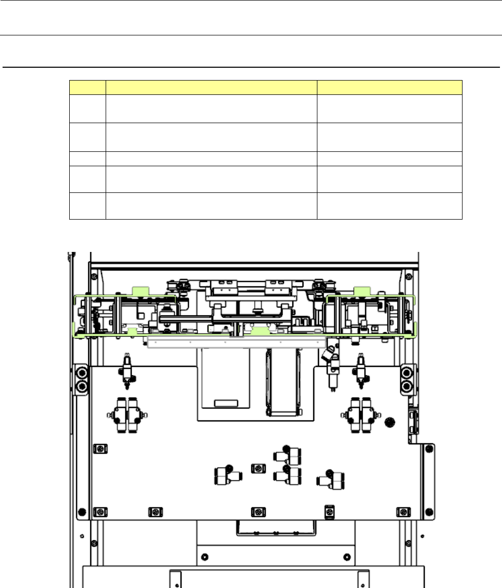
7-5. Y
装置部的气动部件配置图
品名
货号
①
卡盘开闭气缸
气缸φ
10
气缸座
L
侧
PA1001524A0
②
卡盘开闭气缸
气缸
φ10
气缸座
R
侧
PA1001524A0
➂
卡盘开闭阀
40049595
④
Y
夹持器减速用电磁阀
SOLENOID_VALVE
PV1303060A0
⑤
Y
夹持器减速用电磁阀
SOLENOID_VALVE
PV1303060A0
Y 装置正面图
7-5