444CEOM1-CM202.pdf - 第78页
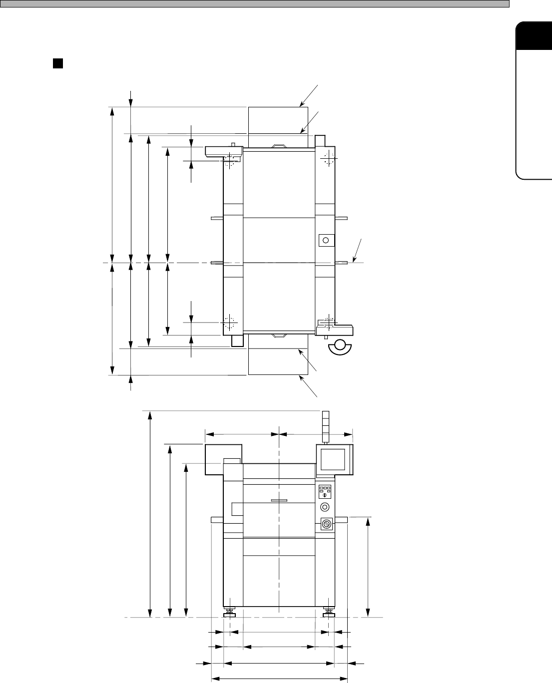
Page 1-16 Equipment Specification CM202-D/DU 1400 1565 2000 660 2070 55 55 980 195 980 660 195 360 65 65 2200 1055 695 785 1013.5 125 125 1145 791.5 1151.5 1373.5 222 222 T ape large reel T ape small reel Reference Opera…

Page 1-15
GENERAL DESCRIPTION
1
1055
695
795
1013.5
125
125
1155
791.5
1151.5
1373.5
222
222
1430
1595
2000
700
195
1090
55 55
980
195
1390
150
150
700
700
444C-E-OMA01-A01-03
Equipment Specification
CM201-DH/DS
Tape large reel
Tape small reel
Reference
Operator
Tape large reel
Tape small reel
Board transport height 900
(Unit: mm)
444C-130E

Page 1-16
Equipment Specification
CM202-D/DU
1400
1565
2000
660
2070
55
55
980
195
980
660195 360
65
65
2200
1055
695
785
1013.5
125
125
1145
791.5
1151.5
1373.5
222
222
Tape large reel
Tape small reel
Reference
Operator
Tape large reel
Tape small reel
Board transport height 900
(Unit: mm)
444C-112E
444C-E-OMA01-A01-02
(DU: 950)

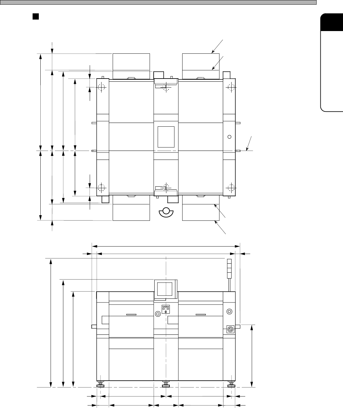
Page 1-17
GENERAL DESCRIPTION
1
Equipment Specification
CM202-DH/DHU/DK/DS
1430
1595
2000
700
2150
55
55
1020
195
1020
700195 360
100
100
2350
1055
695
795
1013.5
125
125
1155
791.5
1151.5
1373.5
222
222
Tape large reel
Tape small reel
Reference
Operator
Tape large reel
Tape small reel
Board transport height 900
(Unit: mm)
4U4C-112E
444C-E-OMA01-A01-04
(DHU: 950)