TR6SNR_维修调整.pdf - 第103页
维修调整要领书 7- 15 7- 14 - 1. BGA 气缸速度控制器的调整 请将速度控制器的旋钮从全闭状态开始旋转 1.5 圈予以固定。 梭动器 LBGA 速度控制器 梭动器 RBGA 速度控制器 梭动器 LBGA 夹持器 梭动器 R BGA 夹持器 梭动器 R 吸盘 速度控制器

维修调整要领书
7-14
7-14. BGA 气缸的更换
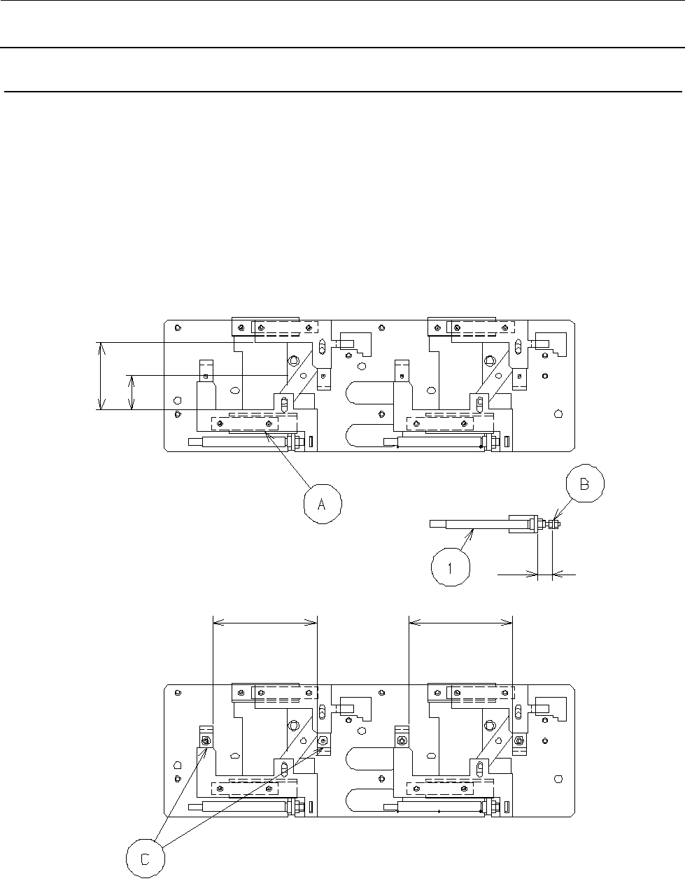
请拆下 S 盘,卸下夹持器臂 B(A),更换气缸。
SBGA 气缸板(B)要组装成图 1 的尺寸。(螺丝锁定:ThreeBond 公司制 1401C)
组装夹持器臂 B 时,(A)BGA 夹持器(C)要平行。
①SBGA 气缸板(货号:PA0402001A0)
要平行
要平行
图
1
图
2
7.5

维修调整要领书
7-15
7-14-1. BGA 气缸速度控制器的调整
请将速度控制器的旋钮从全闭状态开始旋转 1.5 圈予以固定。
梭动器
LBGA
速度控制器
梭动器
RBGA
速度控制器
梭动器
LBGA
夹持器
梭动器
RBGA
夹持器
梭动器
R
吸盘
速度控制器

维修调整要领书
7-16
7-14-2. BGA 气缸速度控制器的调整(排出空气调整)
请将速度控制器①的旋钮从全闭状态转动到向打开方向转 3 圈的状态。
接着,请以调试模式的 BGA 在 L、R 侧分别执行連续动作。
请对速度控制器①的旋钮进行微调,要达到进行 30 次开闭动作的时间在 36~39 秒的范围内。
1
管子
φ
4-50mm×2
根
梭动器装置的超小型气缸侧
Y
装置的电磁阀侧
与
Y
装置的电磁阀
相连
与梭动器装置超小型气缸
相连。
连接时要使速度控制器上
刻印的标记朝这一方向。