D系列电路图00194841-02_DC_SIPLACED12_DE+EN.pdf - 第146页
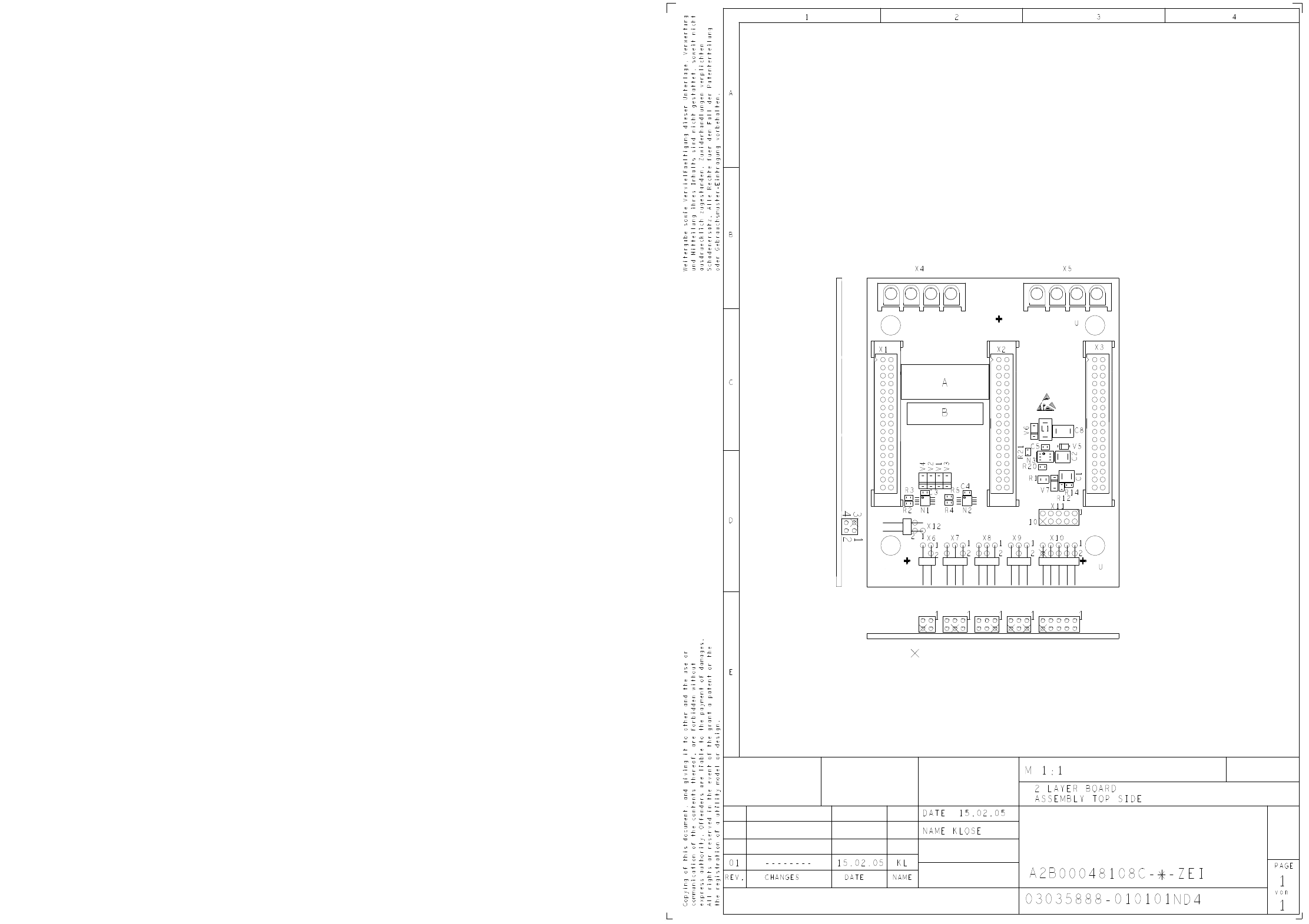
5 - 25 0303588 8-010 101ND4 Leiter platte Por talverteil er PCB, ga ntry distri butor / Inspection l abel A = Iden tifika tionsschild B = Prüfschild / Identification lab el Socket Buc hse / Stifte / Plug Rem ove p in s/k…

5 - 24
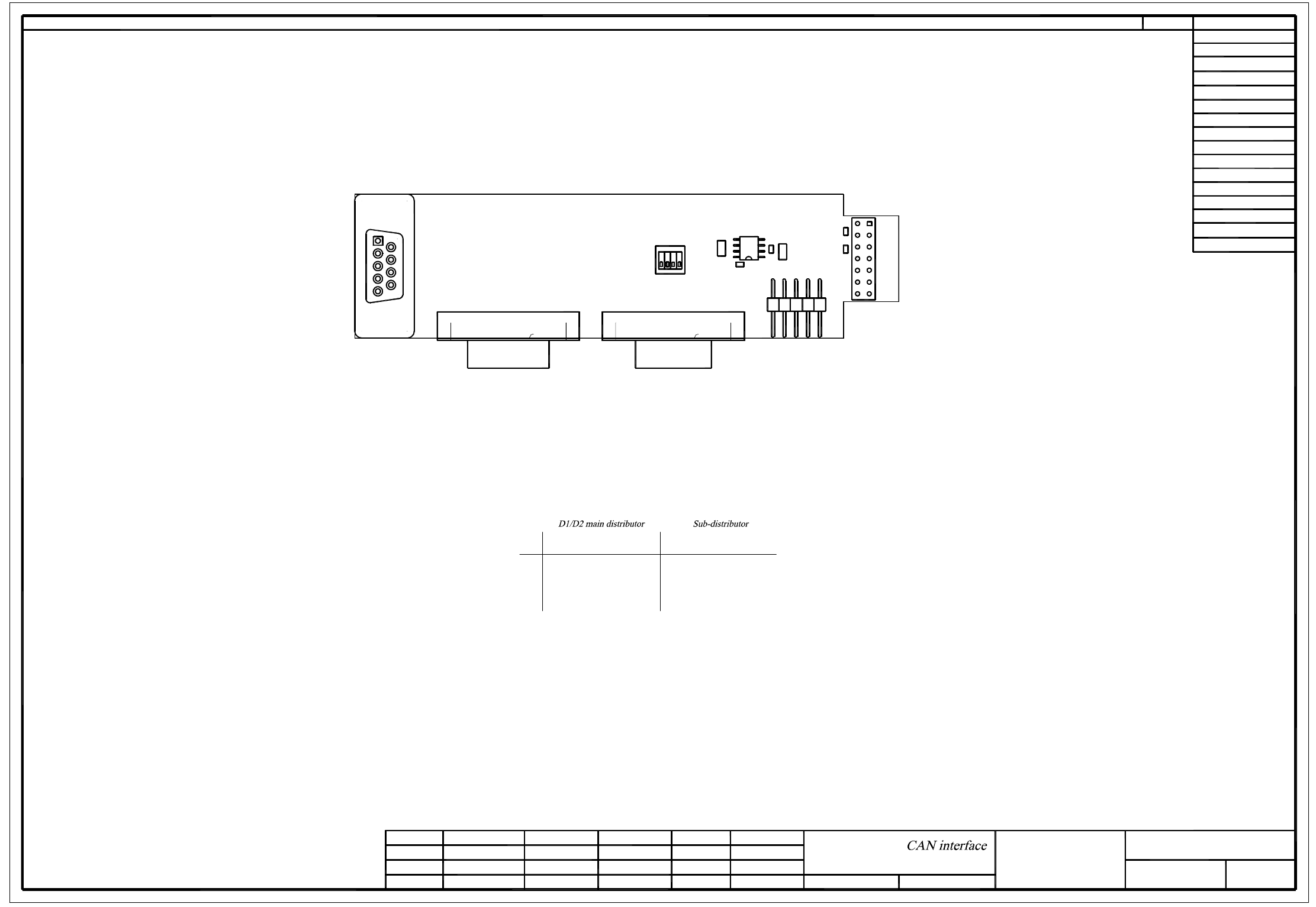
03032346-020201ND4 CAN Interface (Bl. 2 v. 2)
CAN interface (sh. 2 of 2)
Layer(s):
Legend
BMK-PCB-No.
BMK-Project-No.
ent179.00-y1
15-1790-1
Assembly Top
03032346-020201ND4
Sheet 2 of 2
X2
S1
ON
R2
4
3
1
2
PCB-Edge!
X3
X5
PCB-Edge!
C2
U1
R1
C1
R4
R3
9.
10
1
2
X1
X4
ON
OFF
ON
1
2
3
4
S1
OFF
ON
OFF
OFF
ON
03050178
D2: 03050177
D1: 03048966
Hauptverteiler D1/D2 Unterverteiler
SIPLACE D1/D2
CAN-Interface /
DT EA
Copyright reserved
SIEMENS AG
Rev.: 2.0Date: 11.05.2005
C. Ostermöller
S.Schmieder
11.05.2005
Modification
11.05.2005R3, R4, X1, X5
Standard
Checked
Drawn
Name
Weigl
Vers.
FS02
Date
Date

5 - 25
03035888-010101ND4 Leiterplatte Portalverteiler
PCB, gantry distributor
/ Inspection label
A = Identifikationsschild
B = Prüfschild
/ Identification label
Socket
Buchse / Stifte /
Plug
Remove pins/keypinsStifte/Kodierstifte entfernen /
Copyright reserved
SIEMENS AG
DT EA
Board, gantry distributor, 1148
Leiterplatte Portalverteiler, 1148
SIPLACE D1/D2

5 - 26
03036027-050101ND3 Achse KSP-A364, Grundkarte (Bl. 1 v. 2)
Axis KSP-A364, basic card (sh. 1 of 2)