KE-2050_KE-2050R_KE-2055R_KE-2060_KE-2060R-Rev14-.pdf - 第68页
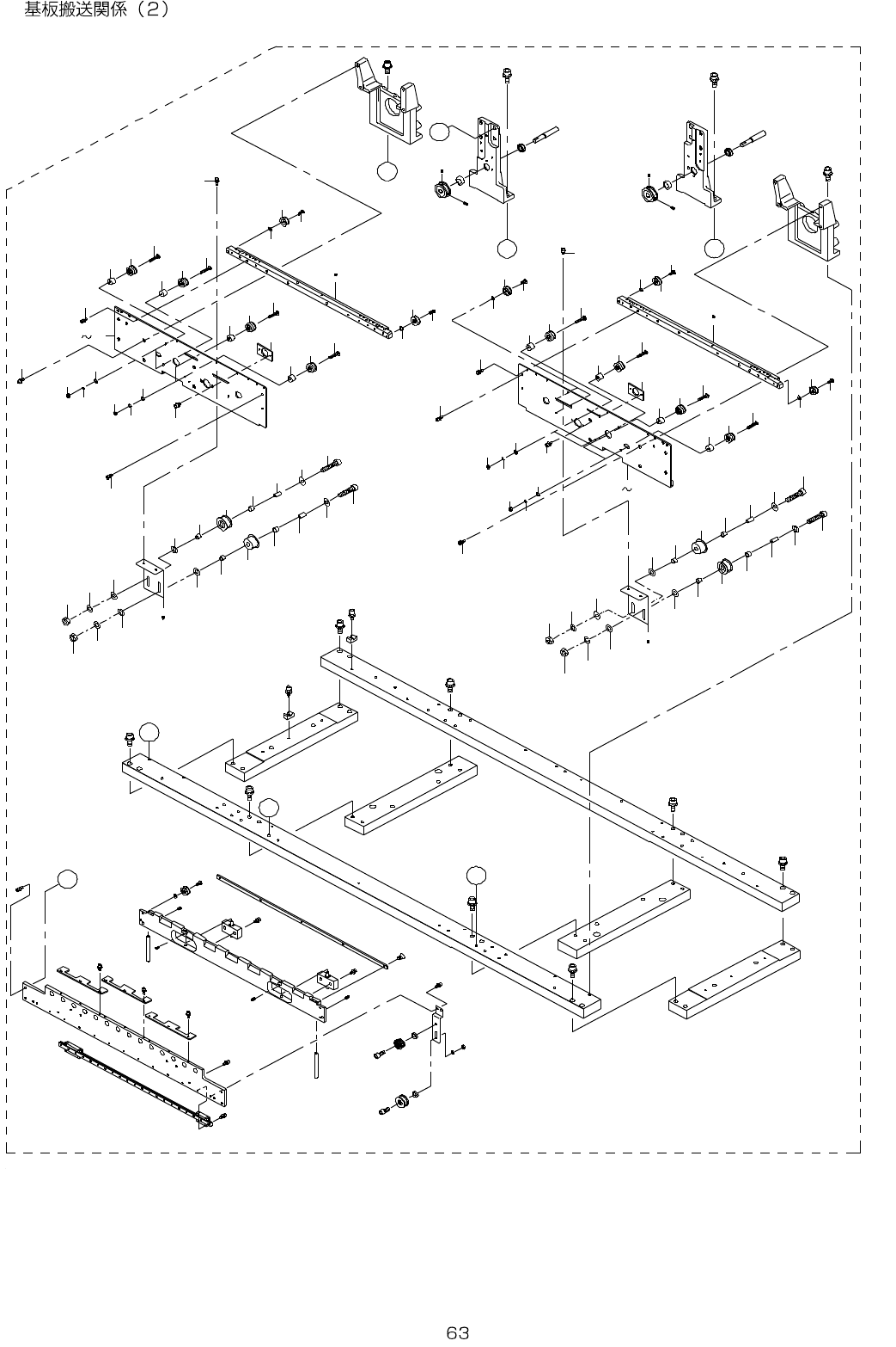
- - 32.P WB C O N VEYO R COMPONEN T S ( 2) 3 5 1 8 1 9 6 7 8 1 2 1 4 1 3 1 5 1 6 1 7 1 2 1 4 1 3 3 1 3 3 3 2 1 7 1 6 1 5 6 0 6 1 2 2 2 4 3 7 3 8 2 9 2 8 3 0 2 6 2 7 1 2 1 4 1 3 3 6 3 5 3 4 6 2 1 2 5 3 1 3 3 3 2 3 1 3 3…

- -
REF.NO NOTE PART NO D E S C R I P T I O N Qty
1 400-00795 CONVEYOR_RAIL_F_ASM. 1
2 #01 400-00993 CONVEYOR RAIL F ASM.(L) 1
3
#02
400-01830 CONVEYOR RAIL F ASM(E) 1
4 400-00797 BASE BAR R (1)
5
#01
400-01038 BASE BAR R(L) (1)
6
#02
400-01832 BASE BAR R(E) (1)
7 400-00798 BASE BAR F (1)
8
#01
400-01039 BASE BAR F(L) (1)
9
#02
400-01833 BASE BAR F(E) (1)
10 400-39616 BASE BAR S (2)
11
#01
400-70087 BASE BAR S(L) (2)
12 #02 400-70088 BASE BAR S(E) (1)
13 400-00800 BASE BAR SS (2)
14
#01
400-00996 BASE BAR SS(L) (2)
15
#02
400-01835 BASE BAR SS(E) (1)
16 SL-6084092-TN BOLT (8)
17 SL-6063592-TN SCREW M6 L=35 (8)
18 HX-0029400-00 FIXED BASE (15)
19 SM-4040801-SC SCREW M4X0.7 L=8 (15)
20 400-00802 RAIL STAND CL (1)
21 400-00803 ADJUST PULLEY SHAFT (1)
22 E4547-729-000 MOTOR PULLEY (30) (1)
23 SM-8040602-TP SCREW M4X0.7 L=6 (2)
24 SB-1080007-00 BEARING (2)
25 E2414-700-000 PULLEY COLLAR (1)
26 SL-6052092-TN SCREW (2)
27 400-00805 RAIL STAND CR (1)
28 400-00803 ADJUST PULLEY SHAFT (1)
29 E4547-729-000 MOTOR PULLEY (30) (1)
30 SM-8040602-TP SCREW M4X0.7 L=6 (2)
31 SB-1080007-00 BEARING (2)
32 E2414-700-000 PULLEY COLLAR (1)
33
#03
400-01043 RAIL GUID F(L) (1)
34 E4105-729-0A0 SHAFT SUPPORT B ASM. (2)
35 SM-8030302-TP SCREW M3X0.5 L=3 (2)
36 400-00811 CONVEYOR RAIL FC (1)
37
#03
400-01044 CONVEYOR RAIL FC(L) (1)
38 SL-6041092-TN SCREW (4)
39 E2123-721-000 PWB GUIDE PLATE F (3)
40 SL-6030892-TN SCREW (9)
41 400-00812 RAIL GUIDE SHAFT (2)
42 SM-8040602-TP SCREW M4X0.7 L=6 (2)
43 400-00813 LINEAR WAY (1)
44
#03
400-00998 LINEAR WAY(L) (1)
45 SM-6030802-TN BOLT (11)
46
#03
SM-6030802-TN BOLT (14)
47 SL-6030692-TN SCREW M3 L=6 (1)
48 E2111-715-0A0 CONVEYOR PULLEY ASM. (4)
49 WP-0430800-SC WASHER M4 (4)
50 SM-4040855-SC SCREW (4)
51 400-00821 IDLER PLATE (1)
52
#03
400-01046 IDLER PLATE(L) (1)
53 400-14928 PULLEY SPACER (1)
54 SM-6041602-TN SCREW M4 X 16 (1)
55 400-00824 IDLER ASM. (1)
56 SM-6041602-TN SCREW M4 X 16 (1)
57 400-14928 PULLEY SPACER (1)
58 NM-6040001-SC NUT M4 (1)
59 WP-0430801-SC WASHER 4.3X9X0.8 (1)
60 400-00822 GUIDE PULLEY ASM (1)
61 400-00807 RAIL GUIDE F (1)
62 E4265-729-000 CONVEYOR BELT GUIDE (L) (1)
63 #03 E4365-729-000 CONVEYOR BELT GUIDE (E) (1)
64 SM-1030601-SC SCREW M3 L=6 (5)
65 SL-6041092-TN SCREW (4)
66 SL-6052092-TN SCREW (2)
67 E4196-729-000 RAIL STAND F (2)
68 #01 400-01040 RAIL STAND F(L) (2)
69 SL-6052092-TN SCREW (4)
70 SL-6041292-TN SCREW (4)
71 WP-0501046-SC WASHER 5 X 14 X 1 (2)
72 WP-0501046-SC WASHER 5 X 14 X 1 (2)

- -
32.PWB CONVEYOR COMPONENTS (2)
3 5
1 8 1 9
6
7
8
1 2
1 4
1 3
1 5
1 6
1 7
1 2
1 4
1 3
3 1
3 3
3 2
1 7
1 6
1 5
6 0
6 1
2 2 2 4
3 7 3 8
2 9
2 8
3 0
2 6
2 7
1 2
1 4
1 3
3 6
3 5
3 4
6 2
1
2 5
3 1
3 3
3 2
3 1
3 3
3 2
3 1
3 3
3 2
3 6
3 5
3 4
4 5
4 4
4 7
4 4
4 2
4 2
4 6
4 5
4 8 4 9
4 4
4 0
4 4
4 2
5 4
5 5
5 6
5 4
5 5
5 6
4 3
5 7
5 7
5 8 5 9
5 4
4 2
4 6
4 4
4 4
5 4
5 4
5 2
5 3
5 2
5 0
5 1
5 2
4 1
5 3
5 2
5 4
4 7
2 0
2 0
A
B
C
1 2
1 4
1 3
D
B
C
D
A
2 9
2 8
3 0
3 9
2
1 0
9
1 1
4 3
1 0
1 1
9
2 1

- -
REF.NO NOTE PART NO D E S C R I P T I O N Qty
1 SL-6041492-TN SCREW 2
2 SM-4040855-SC SCREW 2
3 400-00827 RAIL PLATE FL 1
4
#01
400-01048 RAIL PLATE FL(L) 1
5
#02
400-01838 RAIL PLATE FL(E) 1
6 SL-6031492-TN SCREW 4
7 E2012-721-000 ADJUST PLATE 1
8 SL-6030692-TN SCREW M3 L=6 2
9 E2111-715-0A0 CONVEYOR PULLEY ASM. 2
10 WP-0430800-SC WASHER M4 2
11 SM-4040855-SC SCREW 2
12 E2089-721-0A0 CONVEYOR PULLEY B ASM. 4
13 E2055-721-000 PULLEY SPACER 4
14 SM-4042501-SC SCREW M4X0.7 L=25 4
15 WP-0430801-SC WASHER 4.3X9X0.8 4
16 WS-0410002-KN SPRING WASHER 4
17 NM-6040001-SC NUT M4 4
18 400-00828 CONVEYOR RAIL 1
19
#02
400-01839 CONVEYOR RAIL(E) 1
20 SL-6041092-TN SCREW 4
21 E2111-715-0A0 CONVEYOR PULLEY ASM. 2
22 400-00830 RAIL PLATE FR 1
23
#01
400-01051 RAIL PLATE FR(L) 1
24
#02
400-01841 RAIL PLATE FR(E) 1
25 SL-6031492-TN SCREW 4
26 E2012-721-000 ADJUST PLATE 1
27 SL-6030692-TN SCREW M3 L=6 2
28 E2111-715-0A0 CONVEYOR PULLEY ASM. 2
29 WP-0430800-SC WASHER M4 2
30 SM-4040855-SC SCREW 2
31 E2089-721-0A0 CONVEYOR PULLEY B ASM. 6
32 E2055-721-000 PULLEY SPACER 6
33 SM-4042501-SC SCREW M4X0.7 L=25 6
34 WP-0430801-SC WASHER 4.3X9X0.8 6
35 WS-0410002-KN SPRING WASHER 6
36 NM-6040001-SC NUT M4 6
37 400-00828 CONVEYOR RAIL 1
38
#02
400-01839 CONVEYOR RAIL(E) 1
39 WP-0430800-SC WASHER M4 2
40 E2157-721-000 PULLEY B 1
41 E2016-715-000 IDLER PULLEY 1
42 E2017-715-000 M LINER BUSH 4
43 E2018-715-000 PULLEY SLEEVE 2
44 WP-0531001-SC WASHER 6
45 WS-0510002-KN SPRING WASHER 2
46 NM-6050001-SC NUT M5 2
47 SM-6052502-TN HEXAGONAL-HOLE BOLT 2
48 400-00976 PULLEY BRAKET 1
49
#02
E4086-725-000 PULLEY BRACKET(E) 1
50 E2157-721-000 PULLEY B 1
51 E2016-715-000 IDLER PULLEY 1
52 E2017-715-000 M LINER BUSH 4
53 E2018-715-000 PULLEY SLEEVE 2
54 WP-0531001-SC WASHER 6
55 WS-0510002-KN SPRING WASHER 2
56 NM-6050001-SC NUT M5 2
57 SM-6052502-TN HEXAGONAL-HOLE BOLT 2
58 400-00976 PULLEY BRAKET 1
59
#02
E4086-725-000 PULLEY BRACKET(E) 1
60 SL-6051092-TN BOLT 4
61 SL-6041492-TN SCREW 2
62 SL-6051092-TN BOLT 4