KE-2050_KE-2050R_KE-2055R_KE-2060_KE-2060R-Rev14-.pdf - 第70页
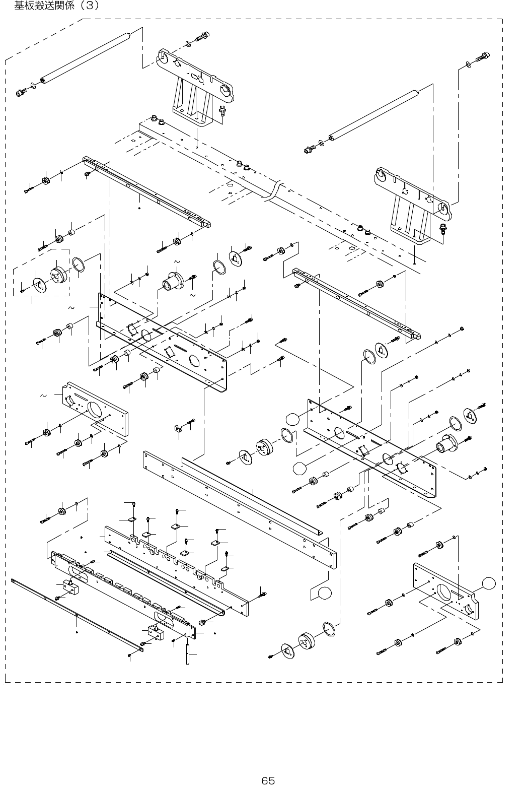
- - 33.P WB C O N VEYO R COMPONEN T S ( 3) 2 4 2 5 1 1 7 8 9 1 0 1 1 7 8 1 3 1 2 1 6 1 4 1 5 2 8 1 7 1 9 1 8 1 9 2 1 2 0 2 2 4 1 4 2 4 3 1 8 1 9 1 7 1 9 1 7 1 9 4 9 5 1 5 2 5 3 5 4 3 1 3 0 3 2 3 2 3 5 3 3 3 4 3 6 3 7 3…

- -
REF.NO NOTE PART NO D E S C R I P T I O N Qty
1 SL-6041492-TN SCREW 2
2 SM-4040855-SC SCREW 2
3 400-00827 RAIL PLATE FL 1
4
#01
400-01048 RAIL PLATE FL(L) 1
5
#02
400-01838 RAIL PLATE FL(E) 1
6 SL-6031492-TN SCREW 4
7 E2012-721-000 ADJUST PLATE 1
8 SL-6030692-TN SCREW M3 L=6 2
9 E2111-715-0A0 CONVEYOR PULLEY ASM. 2
10 WP-0430800-SC WASHER M4 2
11 SM-4040855-SC SCREW 2
12 E2089-721-0A0 CONVEYOR PULLEY B ASM. 4
13 E2055-721-000 PULLEY SPACER 4
14 SM-4042501-SC SCREW M4X0.7 L=25 4
15 WP-0430801-SC WASHER 4.3X9X0.8 4
16 WS-0410002-KN SPRING WASHER 4
17 NM-6040001-SC NUT M4 4
18 400-00828 CONVEYOR RAIL 1
19
#02
400-01839 CONVEYOR RAIL(E) 1
20 SL-6041092-TN SCREW 4
21 E2111-715-0A0 CONVEYOR PULLEY ASM. 2
22 400-00830 RAIL PLATE FR 1
23
#01
400-01051 RAIL PLATE FR(L) 1
24
#02
400-01841 RAIL PLATE FR(E) 1
25 SL-6031492-TN SCREW 4
26 E2012-721-000 ADJUST PLATE 1
27 SL-6030692-TN SCREW M3 L=6 2
28 E2111-715-0A0 CONVEYOR PULLEY ASM. 2
29 WP-0430800-SC WASHER M4 2
30 SM-4040855-SC SCREW 2
31 E2089-721-0A0 CONVEYOR PULLEY B ASM. 6
32 E2055-721-000 PULLEY SPACER 6
33 SM-4042501-SC SCREW M4X0.7 L=25 6
34 WP-0430801-SC WASHER 4.3X9X0.8 6
35 WS-0410002-KN SPRING WASHER 6
36 NM-6040001-SC NUT M4 6
37 400-00828 CONVEYOR RAIL 1
38
#02
400-01839 CONVEYOR RAIL(E) 1
39 WP-0430800-SC WASHER M4 2
40 E2157-721-000 PULLEY B 1
41 E2016-715-000 IDLER PULLEY 1
42 E2017-715-000 M LINER BUSH 4
43 E2018-715-000 PULLEY SLEEVE 2
44 WP-0531001-SC WASHER 6
45 WS-0510002-KN SPRING WASHER 2
46 NM-6050001-SC NUT M5 2
47 SM-6052502-TN HEXAGONAL-HOLE BOLT 2
48 400-00976 PULLEY BRAKET 1
49
#02
E4086-725-000 PULLEY BRACKET(E) 1
50 E2157-721-000 PULLEY B 1
51 E2016-715-000 IDLER PULLEY 1
52 E2017-715-000 M LINER BUSH 4
53 E2018-715-000 PULLEY SLEEVE 2
54 WP-0531001-SC WASHER 6
55 WS-0510002-KN SPRING WASHER 2
56 NM-6050001-SC NUT M5 2
57 SM-6052502-TN HEXAGONAL-HOLE BOLT 2
58 400-00976 PULLEY BRAKET 1
59
#02
E4086-725-000 PULLEY BRACKET(E) 1
60 SL-6051092-TN BOLT 4
61 SL-6041492-TN SCREW 2
62 SL-6051092-TN BOLT 4

- -
33.PWB CONVEYOR COMPONENTS (3)
2 4 2 5
1 1
7
8
9 1 0
1 1
7
8
1 3
1 2
1 6
1 4 1 5
2 8
1 7
1 9
1 8
1 9
2 1
2 0
2 2
4 1
4 2
4 3
1 8
1 9
1 7
1 9
1 7
1 9
4 9 5 1
5 2 5 3
5 4
3 1
3 0
3 2
3 23 5
3 3
3 4
3 6
3 7
3 8
3 9
4 0
3 5
3 4
3 3
3 3
3 4
3 5
3 5
3 4
3 3
3 8
3 7
3 6
3 8
3 7
3 6
3 8
3 7
3 6
4 4
4 5
4 3
5 5 5 7
1 3
5
5 9
6 0
6 1
A
A
B
B
5
6
5
4
2 6 2 7
2 3
2 9
4 6 4 8
5 8
3 1
3 0
1 7
1 9
6
4
6
4

- -
REF.NO NOTE PART NO D E S C R I P T I O N Qty
1
#01
400-01064 SUPPORT PLATE RL(L) 1
2 400-00841 SUPPORT PLATE S 1
3
#02
E4076-725-000 SUPPORT PLATE RL(E) 1
4 E2111-715-0A0 CONVEYOR PULLEY ASM. 3
5 WP-0430800-SC WASHER M4 3
6 SM-4040855-SC SCREW 3
7 E4105-729-0A0 SHAFT SUPPORT B ASM. 2
8 SM-8030302-TP SCREW M3X0.5 L=3 2
9 400-00836 CONVEYOR RAIL RC 1
10
#03
400-01057 CONVEYOR RAIL RC(L) 1
11 SL-6041092-TN SCREW 4
12 400-00812 RAIL GUIDE SHAFT 2
13 SM-8040602-TP SCREW M4X0.7 L=6 2
14 E2275-725-000 SAFETY BAR 1
15
#03
E4075-725-000 SAFETY BAR(E) 1
16 SL-4040841-SE SCREW M4 L=8 4
17 E2124-721-000 PWB GUIDE PLATE RA 4
18 E2125-721-000 PWB GUIDE PLATE RB 2
19 SL-6030892-TN SCREW 6
20 E2111-715-0A0 CONVEYOR PULLEY ASM. 4
21 WP-0430800-SC WASHER M4 4
22 SM-4040855-SC SCREW 4
23 SM-1030601-SC SCREW M3 L=6 5
24 400-00835 RAIL GUIDE R 1
25
#03
400-01056 RAIL GUIDE R(L) 1
26 E4265-729-000 CON VEYOR BELT GUIDE (L) 1
27
#03
E4365-729-000 CONVEYOR BELT GUIDE (E) 1
28 SL-6041692-TN SCREW M4 L=16 8
29 400-13196 Y PUSHER GUARD 1
30 E2111-715-0A0 CONVEYOR PULLEY ASM. 2
31 WP-0430800-SC WASHER M4 2
32 SM-4040855-SC SCREW 2
33 E2089-721-0A0 CONVEYOR PULLEY B ASM. 4
34 E2055-721-000 PULLEY SPACER 4
35 SM-4042501-SC SCREW M4X0.7 L=25 4
36 WP-0430801-SC WASHER 4.3X9X0.8 4
37 WS-0410002-KN SPRING WASHER 4
38 NM-6040001-SC NUT M4 4
39 400-00839 DRIVE PULLEY R ASM. 1
40 400-00840 DRIVE PULLEY R (1)
41 E2160-721-000 PULLEY FLANGE (1)
42 SL-6030892-TN SCREW (3)
43 E3931-750-000 PULLEY WASHER 2
44 E2160-721-000 PULLEY FLANGE 1
45 SL-6030892-TN SCREW 3
46 SB-8160001-00 BEARING 1
47
#01
SB-8160001-00 BEARING 2
48
#02
SB-8200001-00 BEARING 2
49 400-00838 RAIL PLATE RL 1
50
#01
400-01063 RAIL PLATE RL(L) 1
51
#02
E4070-725-000 RAIL PLATE RL(E) 1
52 400-00828 CONVEYOR RAIL 1
53
#02
400-01839 CONVEYOR RAIL(E) 1
54 SL-6031492-TN SCREW 4
55 SM-6040802-TN SCREW 4
56 #01 SM-6040802-TN SCREW 8
57
#02
SM-6051002-TN BOLT 8
58 SL-6041092-TN SCREW 2
59 SL-6042092-TN SCREW M4 L=20 3
60 HX-0029400-00 FIXED BASE 1
61 SM-6042002-TN BOLT 1