TR5S维修调整.pdf - 第11页
维修调整要领书 1-7 进行水平调整后,请将脚轮调节器①( 2 个部位)倒转 1 圈使装置成前部较低的状态。 安装升降机护罩,拆掉贴片机机械操纵阀的束线箍,把装在贴片机上的贴片机选择开关②置于 ON , 锁紧。 请重复几次锁紧和脱开,确认能够可靠地锁紧。 (不能锁紧时,可能是机械操纵阀未完全关闭,故要调整升降机护罩的位置) 在锁紧的状态下再次进行水平调整(微调)。 调整后,请将调节器③降到触及地面,最后再固定锁定螺母④。 电缆、空气管子…

维修调整要领书
1-6
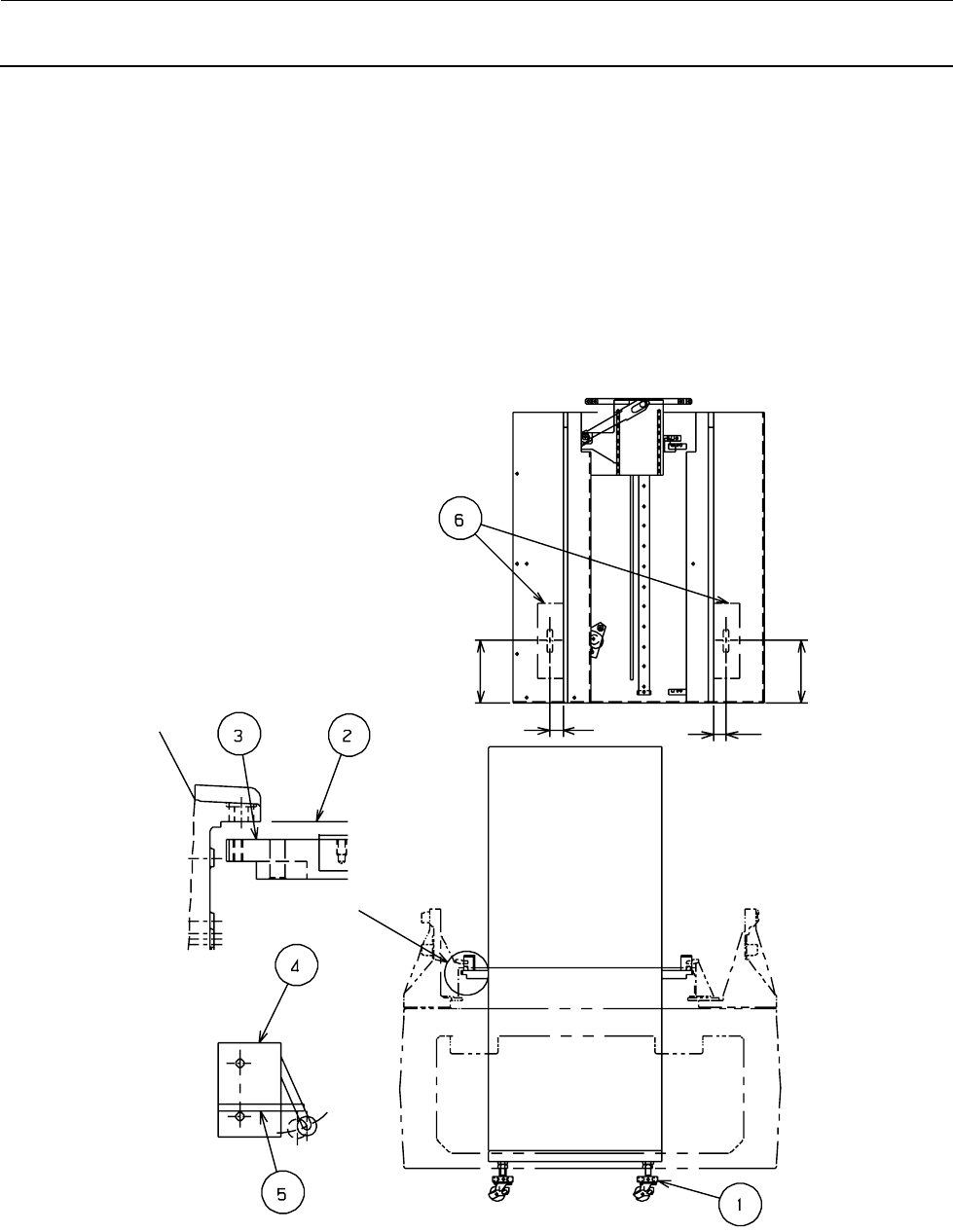
升起 4 个部位的脚轮调节器①,将贴片机的台架支架基准面②和本装置的接头块③调整为相同的高度。
如用束线箍⑤预先关闭贴片机的机械操纵阀④,可使作业容易进行。
(作业时请充分注意不要让手指夹入台架升降机)
调整高度后,请进行水平调整。
请把水平仪⑥放在 Y 装置上上进行调整。(±4 格刻度以内)
(使用的水平仪为 1 Div=0.05mm/M)
125
25
25
125

维修调整要领书
1-7
进行水平调整后,请将脚轮调节器①(2 个部位)倒转 1 圈使装置成前部较低的状态。
安装升降机护罩,拆掉贴片机机械操纵阀的束线箍,把装在贴片机上的贴片机选择开关②置于 ON,
锁紧。
请重复几次锁紧和脱开,确认能够可靠地锁紧。
(不能锁紧时,可能是机械操纵阀未完全关闭,故要调整升降机护罩的位置)
在锁紧的状态下再次进行水平调整(微调)。
调整后,请将调节器③降到触及地面,最后再固定锁定螺母④。
电缆、空气管子要沿框架的下部布设。
电缆、空气管子

维修调整要领书
1-8
1-4. TR5SNX 的设置