TR5S维修调整.pdf - 第29页
维修调整要领书 3-4 3- 2. 电气部分布置 图( CE 规格机) ● TR 5SNR 、 TR5 SNX No. 货号 品名 备注 21 HB001430 000 安全继电器装置 22 HB001390 000 继电器 23 E96410400 00 继电器 MY2 D C24V

维修调整要领书
3-3
● TR5SNI
No.
货号
品名
备注
13
40045701
变压器
14
40045714
噪声过滤器
24
40137853
TF INPUT CABLE (240V) ASM
25
40137854
TF INPUT CABLE (220V) ASM
26
40137855
TF INPUT CABLE (200V) ASM
27
HA005300000
MC
18
HB001420000
继电器
19
HB001400000
继电器
20
40045025
SURGE ABSORBER ASM

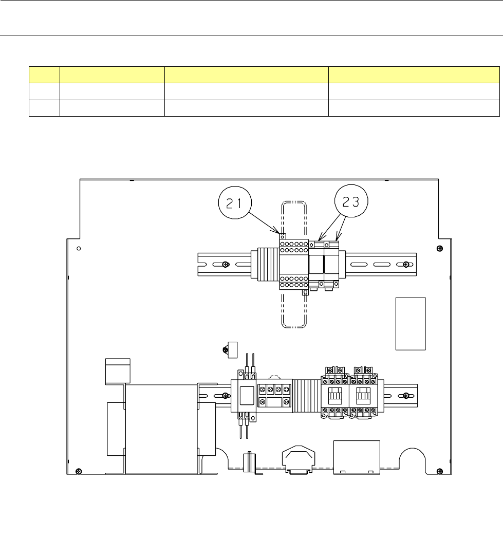
维修调整要领书
3-4
3-2. 电气部分布置图(CE 规格机)
● TR5SNR、TR5SNX
No.
货号
品名
备注
21
HB001430000
安全继电器装置
22
HB001390000
继电器
23
E9641040000
继电器 MY2 DC24V

维修调整要领书
3-5
● TR5SNRI
No.
货号
品名
备注
21
HB001430000
安全继电器装置
23
E9641040000
继电器 MY2 DC24V