TR5S维修调整.pdf - 第17页
维修调整要领书 1- 13 ・ 水平仪设置位置 进行水平调整后,将 MTS 插入贴片机。 确认 MTS 已确实插到底之后,调整下图所示的连接部分并用螺丝固定在贴片机护罩上,予以临时定 位。 主体框架上面 对齐高度 后侧台架 ROUGH I N GUIDE 125 25 25 125

维修调整要领书
1-12
1-5. TR5SNJ 的设置
把卸下的 MTS FIX BR L 组装上去。(临时固定)
请转动 4 个部位的脚轮,将主体框架上面和 ROUGH IN GUIDE 上面调整到相同的高度,再进行水平
调整。
请把水平仪放在 Y 装置上进行水平调整。(±4 格刻度以内)
(使用的水平仪为 1 Div=0.05mm/M)
脚轮(
4
个部位)

维修调整要领书
1-13
・ 水平仪设置位置
进行水平调整后,将 MTS 插入贴片机。
确认 MTS 已确实插到底之后,调整下图所示的连接部分并用螺丝固定在贴片机护罩上,予以临时定
位。
主体框架上面
对齐高度
后侧台架
ROUGH IN GUIDE
125
25
25
125

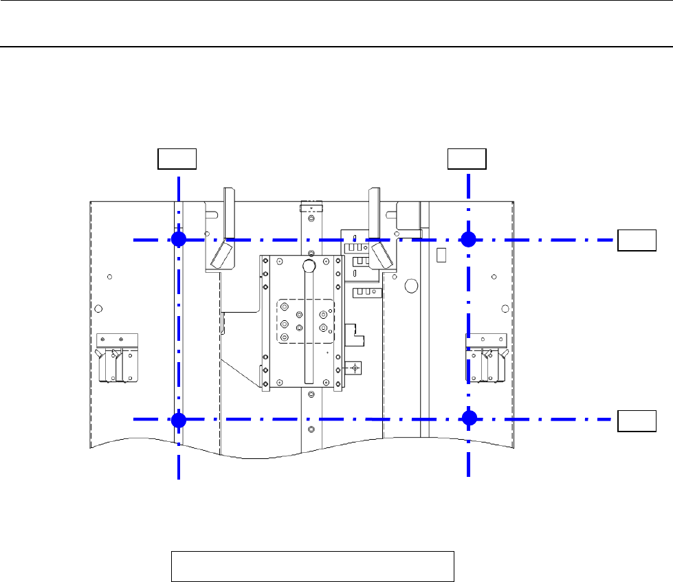
维修调整要领书
1-14
使用 HMS 测定下图所示 4 个部位的位置的高度,微调到差分为以下所示。
(设计值高度为-9.8mm。)
前后(①-②及③-④):0.7mm 以下
左右(①-③及②-④):0.3mm 以下
微调结束后正式旋紧上述连接部分的止动螺丝。
注意:测定时请确认测定的是轨道上面。
①
②
③
④
248
538
550
715