TR5S维修调整.pdf - 第111页
维修调整要领书 7-8 7- 7. 卡盘开闭 阀 的更换 请更换卡盘开闭阀。 ③卡盘开闭阀(货号: 40049595 )

维修调整要领书
7-7
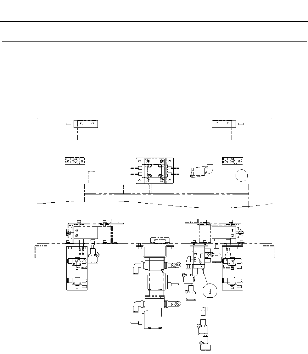
7-6. 卡盘开闭气缸的更换
请更换卡盘开闭气缸。
更换气缸后,请利用速度控制器将打开时间调整为 75msec±10msec。
①卡盘开闭气缸(货号:PA1001524A0)
气缸 φ10 气缸座 L 侧
②卡盘开闭气缸(货号:PA1001524A0)
气缸 φ10 气缸座 R 侧

维修调整要领书
7-8
7-7. 卡盘开闭阀的更换
请更换卡盘开闭阀。
③卡盘开闭阀(货号:40049595)

维修调整要领书
7-9
7-8. Y 夹持器减速用电磁阀的更换
请更换 Y 夹持器减速用电磁阀。
④Y 夹持器减速用电磁阀(货号:40049588)
SLOW MODE (TRAY HLD2) CABLE 2 ASM
⑤Y 夹持器减速用电磁阀(货号:40049586)
SLOW MODE (TRAY HLD1) CABLE 2 ASM