TR5S维修调整.pdf - 第113页
维修调整要领书 8-1 8. 气动 系 统 配管 图 8- 1. 气动零部件清 单 No. 货号 品名 使用部位 1 PA0601014A0 闸门气缸 开闭闸门用 2 40049718 5 通道电磁阀 开闭闸门用 3 PA1001524A0 Y 气缸 Y 轴托盘卡盘部 L 侧 4 PA1001524A0 Y 气缸 Y 轴托盘卡盘部 R 侧 5 40049595 5 通道电磁阀 Y 轴托盘卡盘部 6 40049706 SLOW MODE …

维修调整要领书
7-9
7-8. Y 夹持器减速用电磁阀的更换
请更换 Y 夹持器减速用电磁阀。
④Y 夹持器减速用电磁阀(货号:40049588)
SLOW MODE (TRAY HLD2) CABLE 2 ASM
⑤Y 夹持器减速用电磁阀(货号:40049586)
SLOW MODE (TRAY HLD1) CABLE 2 ASM

维修调整要领书
8-1
8.
气动系统配管图
8-1. 气动零部件清单
No.
货号
品名
使用部位
1
PA0601014A0
闸门气缸
开闭闸门用
2
40049718
5
通道电磁阀
开闭闸门用
3
PA1001524A0
Y
气缸
Y
轴托盘卡盘部
L
侧
4
PA1001524A0
Y
气缸
Y
轴托盘卡盘部
R
侧
5
40049595
5
通道电磁阀
Y
轴托盘卡盘部
6 40049706
SLOW MODE (SHT)
CABLE 3 ASM
选项:低速
2
模式
闸门部
7 40049586
SLOW MODE (TRAY
HLD1) CABLE2 ASM
选项:低速 2 模式
Y
轴托盘卡盘部
8 40049588
SLOW MODE (TRAY
HLD2) CABLE2 ASM
选项:低速
2
模式
Y
轴托盘卡盘部
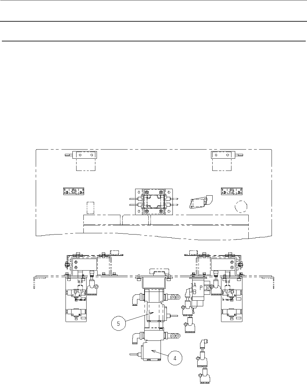
8-2. 气动系统配管图(标准)

维修调整要领书
8-2
8-3. 气动系统配管图(选配:低速 2 模式)
Y
夹持器部
闸门部