JM-50_维修保养手册.pdf - 第149页
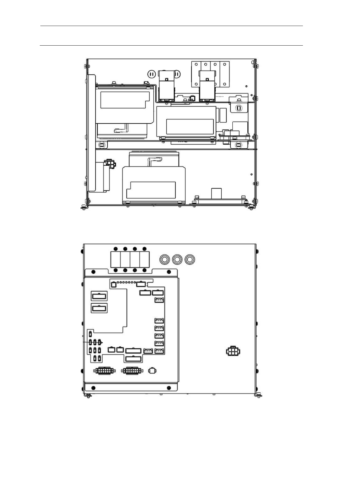
维修调整要领书 11 - 15 图 11 -2-2-2-2 电气装置单元 B ( EN ) 的正面 图 ( 前盖取下的状态 ) 图 11 -2-2-2-3 电气装置单元 B ( EN ) 的背面 图 5

维修调整要领书
11-14
11-2-2-2 电气装置单元 B (EN) 构成
图 11-2-2-2-1 电气装置单元 B (EN) 的外观图

维修调整要领书
11-15
图 11-2-2-2-2 电气装置单元 B (EN) 的正面图(前盖取下的状态)
图 11-2-2-2-3 电气装置单元 B (EN) 的背面图
5

维修调整要领书
11-16
图 11-2-2-2-4 电气装置单元 B (EN)
4
3
2
1
1
7
6
8
10