JM-50_维修保养手册.pdf - 第152页
维修调整要领书 11 - 18 图 11 -2-2-2-5 PSU B WIRING DIAGRAM [ EN ]

维修调整要领书
11-17
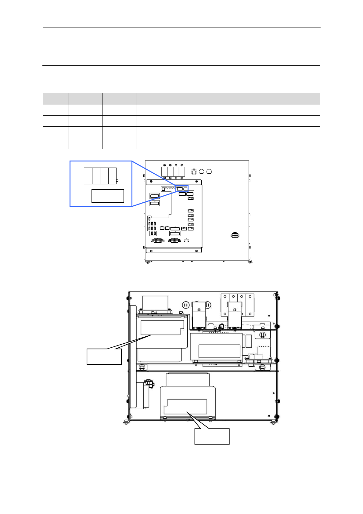
表 11-2-2-2-1 电气装置单元 B (EN) <零件清单>
No. JUKI 品号 零件名 零件数 位置 备注
1 HA00650000A CIRCUIT PROTECTOR (20A) 3 CP3, CP6, CP7
2 HA006500000 CIRCUIT PROTECTOR (30A) 1 CP4
3 HA00542000B CIRCUIT PROTECTOR (8A) 1 CP5
4 HB00128000C RELAY 3 RL1, RL2, RL3
5 40128877 POWER PCB ASM 1
6 40182378 POWER SUPPLY 1 PS3
7 HX006920000 POWER SUPPLY 1 PS4
8 HX007180000 POWER SUPPLY 1 PS1
9 40187862 POWER SUPPLY 1 PS5
10 HA00542000J CIRCUIT PROTECTOR (2A) 2 CP8, CP9

维修调整要领书
11-18
图 11-2-2-2-5 PSU B WIRING DIAGRAM [EN]

维修调整要领书
11-19
11-2-2-3 DC 电源电压级别的调整方法
表 11-2-2-3-1 DC 电源电压级别设定
No. 电源规格 电源标记 电源单元测量端子
1 +48V PS3 PS3 电压输出端子+V(+48V) 及-V(+48VUNRTN)
2 +24V PS1 CN2 1 针(+24V)及 5 针(+24VRTN)
3 +24V PS4 PS4 电压输出端子
+V(+24V FR BANK) 及-V(+24VRTN FR BANK)
图 11-2-2-3-1 监视器接口 CN2 的配置及针脚定义
图 11-2-2-3-2 PS3 和 PS4 的配置
CN2
8
7
6
5
4 3 2 1
PS4
PS3