80S-15贴片机.pdf - 第83页
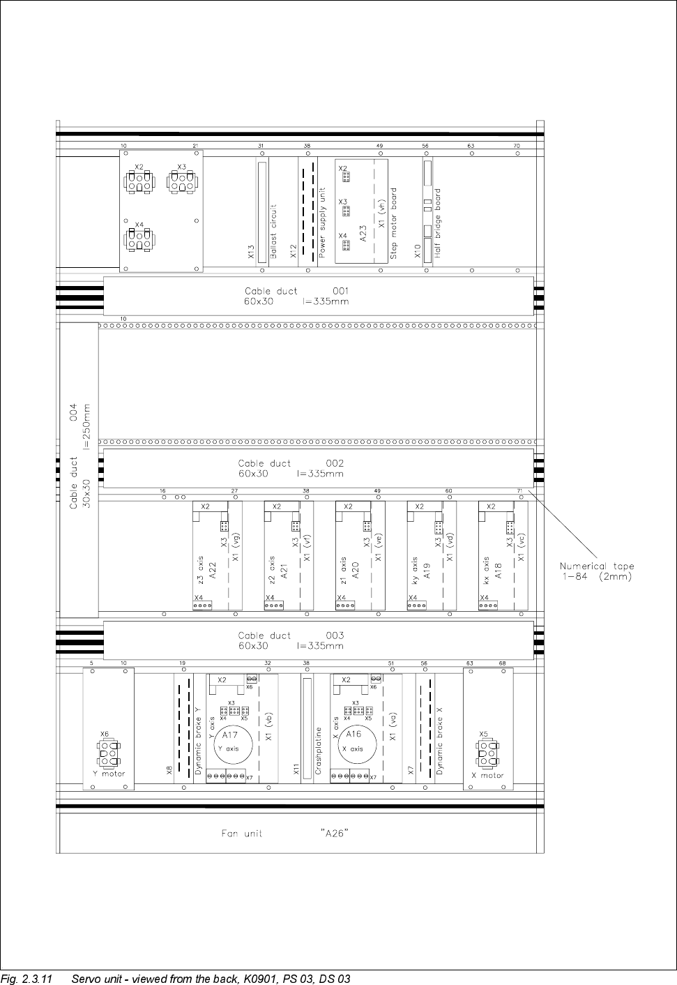
SIPLACE 80S/F/G Service Manual 2 Overview Diagram s Edition 04/97 2 - 51

2 Overview Diagrams SIPLACE 80S/F/G Service Manual
Edition 04/97
2 - 50

SIPLACE 80S/F/G Service Manual 2 Overview Diagrams
Edition 04/97
2 - 51

2 Overview Diagrams SIPLACE 80S/F/G Service Manual
Edition 04/97
2 - 52