591968 Heller Chinese Manual Rev-C.pdf - 第70页
65 I .惰性气体系统与选项 A. 特征与控制 如果回流炉配有氮气惰 性气体,容量为 100PSI ( 6.9 个大气压)和 2000SCFH ( 56m 3 / 小时)的氮气 供应管路应连接至氮气 输入口。该管路应采用配有 1/2 ” NPT 接头的 3/4 ” 外径铜管或 同等管件。氮气应从 最低纯度为含氧 量 5 - 10 PPM (百万级 )的低温气 源中以气态供 应。氮气入口 位置参见设备 安装图纸。 Heller 回流炉系…

64
介绍
1. 序列号标牌位于顶盖的后部。标牌上列出了回流炉型号、电压和最大电流负载。另外,回流炉的多
种参数也包含在序列号之中。详细说明参见
图
1,1809 系列。
图
1
序列号中的所有字符和符号的含义说明如下:
MM
回流炉制造的月份
YY
回流炉制造的年份
L
加热丝型号代码
# 隔热材料代码
C
控制板类型
# 叶轮类型
T
回流炉类型
# 助焊剂管理系统
W
保修期
XXXXX
客户订单编号
0# 生产地
顶盖
底架

65
I.惰性气体系统与选项
A. 特征与控制
如果回流炉配有氮气惰性气体,容量为 100PSI(6.9 个大气压)和 2000SCFH(56m
3
/小时)的氮气
供应管路应连接至氮气输入口。该管路应采用配有 1/2”NPT 接头的 3/4”外径铜管或同等管件。氮气应从
最低纯度为含氧量 5-10 PPM(百万级)的低温气源中以气态供应。氮气入口位置参见设备安装图纸。
Heller 回流炉系统采用一系列流量表来监控供给机器的氮气,这些流量表放置在机器出口前面(参见
图
2)。如想得到更多的信息,请参考氮气管路图,此图纸在说明书最后面。
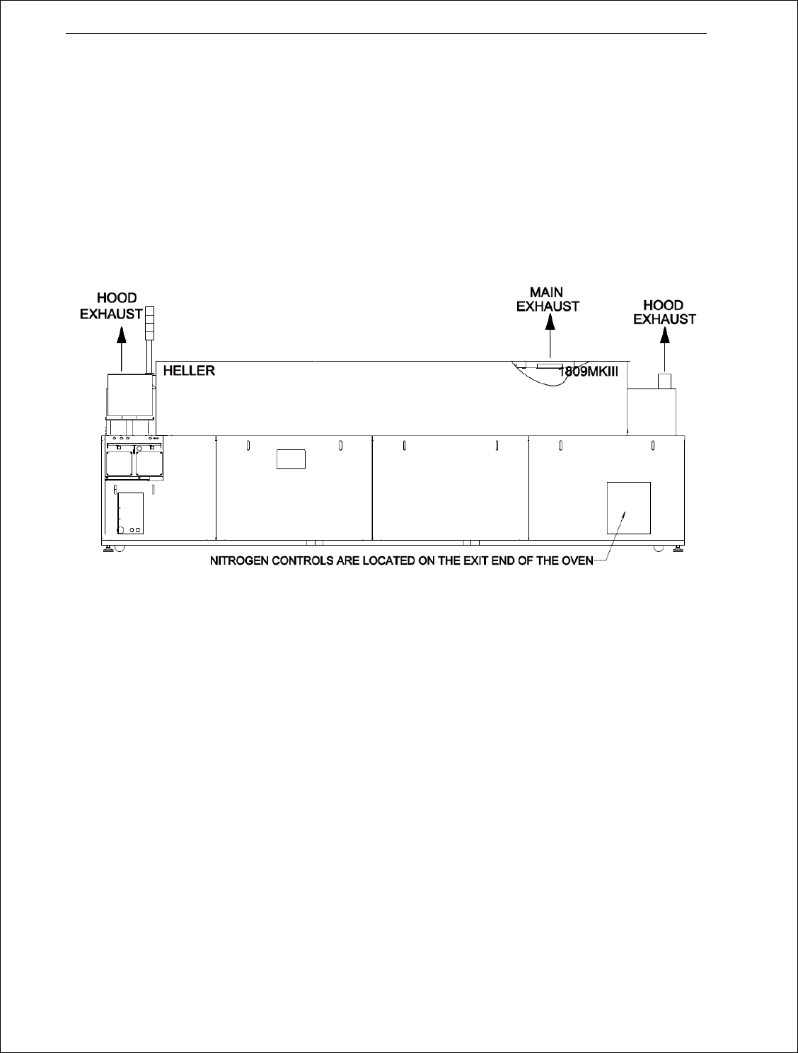
主要排气管
氮气控制器位于回流炉的出口端
图
2
采用毛刷和卷帘门使通道的开口最小。入口端的上挡板应该可以调整,使之尽可能低,但是不要接
触到电路板。回流炉出口端的挡板可以调节到与电路板接触,但不要阻碍其行进。通道开口大小对氮气
的消耗量具有显著影响。较小的开口可以降低氮气消耗率。电路板的宽度也会影响氮气的消耗量。对于
较窄的电路板,维持理想的氧气 PPM 水平所需的氮气较少。
回流炉工作时要求的氧气 PPM 水平很大程度上取决于焊膏中使用的助焊剂类型。应准确依照焊膏制
造商对温度曲线和氮气水平的指导说明。大多数情况下 100-500PPM 是可以接受的。有些则可能高达
1000PPM。
抽风罩排气管 抽风罩排气管

66
B. 操作
关于氮气流量控制有几个选项。本章节介绍 HELLER 机器开环氮气系统基本的起动顺序。
通过流量计底部的黑色旋钮调节任一流量计至满流量。设备前面的各个流量计显示流量读数。流量
可以通过流量计内球体中心的位置进行读取。
在预热过程中,允许回流炉以该满速冲氮气 20 分钟。在这期间回流炉气氮中的氧气浓度通常要降到
100PPM 以下。在这以后,可以通过降低流量达到所要求的 PPM 水平,6”板宽约 1100SCFH,更宽的板
要求更大的流量。
在回流区安装有取样管使得可以监控氧气 PPM 水平。用氧气分析仪可以监控实际水平。在标有
“SAMPLE”(取样)字样的端口连接取样管(注意:连接至该端口的分析仪必须配有气泵,从回流炉中
抽取样气)。
C. 加热模块
加热模块是由加热丝组合、吹风马达组合、热电偶组合和可选择的热保护开关组成。见下图典型的
加热模块的内部空气循环结构。
吹风马达从模块两侧安装有加热丝的通道抽取冷风。冷风通过加热丝被加热后,被打入回流通道,
经过模块护栅扩散出去。加热丝的周期性开关是由热电偶输入温度数值,通过 HC2 控制板的 TPO 输出
控制信号控制。可选择热保护开关监控加热区过温度 (371
0
C + 10
0
C)。
D. 冷却选项
空气冷却
空气冷却是所有空气回流焊炉中标准的内部冷却方式,并作为空气回流焊和氮气式回流焊外部冷却
选项。这种冷却模块是利用周围温度大大低于炉膛内部温度的优势,使用两个吹风马达交换周围空气和
模块内的空气,将模块内的空气通过抽风马达排尽并用专用吹风马达将新鲜空气直接吹入冷却区。仅在
空气环境下,不监控冷却区的温度。
温控热电偶模块