P-0221-001.pdf - 第111页
MODEL TPM-200F/R 0207-001 Key No . P AR T No. P AR T NAME Q’ty REMARKS NOTE 109 G-2 10 1 630 108 1663 GUIDE,LINEAR 1 782G--1 10-101 10 2 630 108 1670 GUIDE,LINEAR 1 782G--1 10-102 10 3 630 108 1625 BALL SCREW 1 782G--1 1…

MODEL TPM-200F/R
0207-001
108
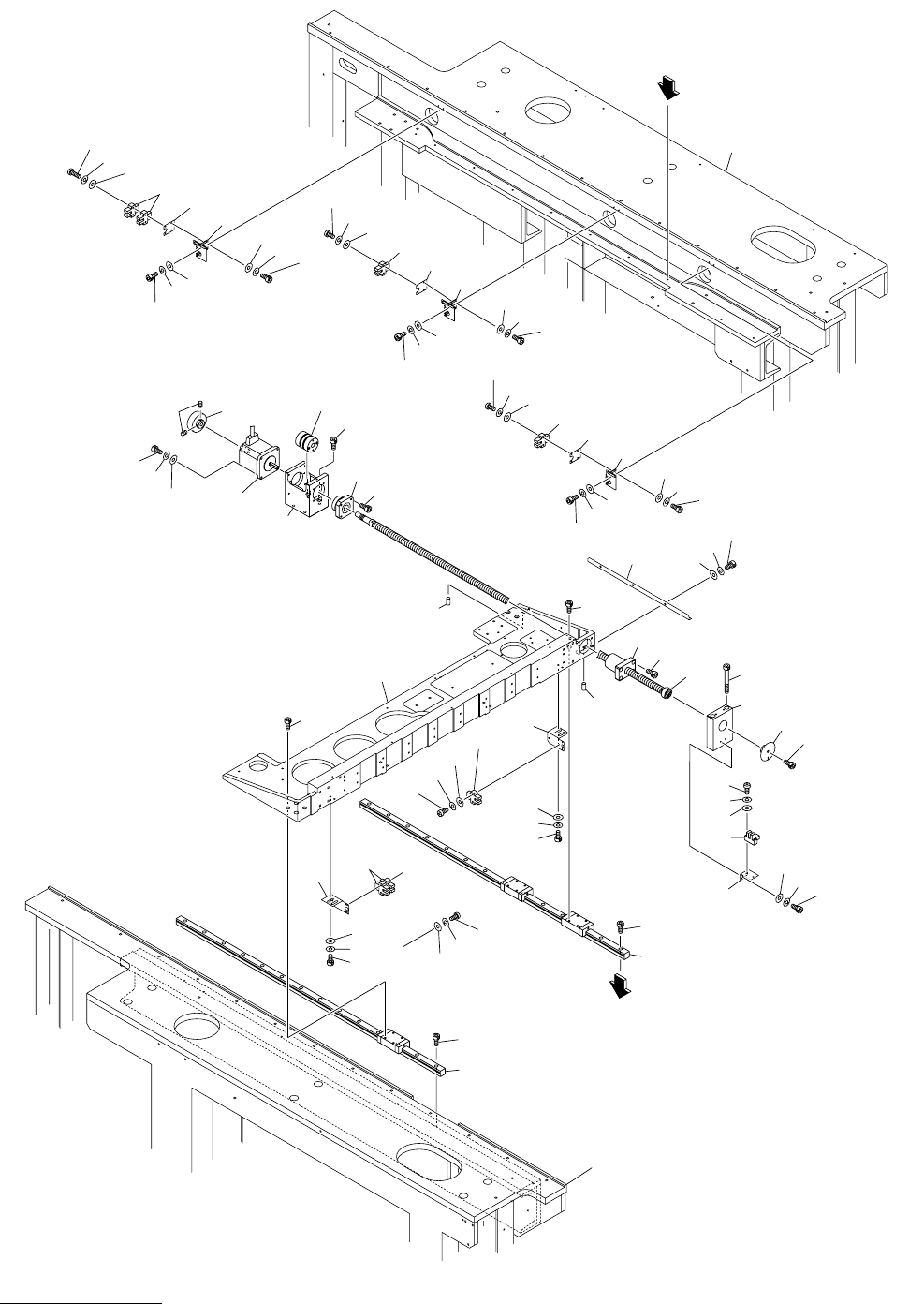
基板認識部 P.C.B. RECOGNITION SECTION
Fig. G-2 基板認識 Y 軸駆動部 P.C.B. Recognition Y Axis Driver
See Fig.G-1
Key No.14
See Fig.K-1
Key No.1
See Fig.K-1
Key No.1
175
170
169
109
116
174
170
169
176
177
178
116
109
114
161
113
166
180
165
171
169
108
176
177
179
112
170
110
106
120
164
104
161
172
165
166
165
117
162
103
163
161
107
102
109
169
170
174
119
168
111
172
166
172
165
166
176
177
178
115
116
172
165
166
176
177
178
115
174
170
169
109
104
173
107
165
118
162
172
109
161
101
169
170
175
166
165
172
166
105
Fig.G-2
TPM-200F/R
A
A

MODEL TPM-200F/R
0207-001
Key No. PART No. PART NAME Q’ty REMARKS
NOTE
109
G-2
101 630 108 1663 GUIDE,LINEAR 1 782G--110-101
102 630 108 1670 GUIDE,LINEAR 1 782G--110-102
103 630 108 1625 BALL SCREW 1 782G--110-103
104 630 013 6241 BEARING,UNIT 1 782G--110-104
105 630 114 9356 MOTOR,STEPPING 1 MPM033,ASM66BA 782G--110-105
106 630 088 3572 COUPLING 1 782G--110-106
107 630 088 3893 PIN,LOCATE 2 782G--110-107
108 630 000 0252 SENSOR,PHOTO 1 BPH334 782G--110-108
109 630 000 0245 SENSOR,PHOTO 7 BPH331-333,BPH351-353,042
782G--110-109
110 630 107 8281 BRACKET 1 782G--110-110
111 630 107 8502 PLATE 1 782G--110-111
112 630 107 4610 PLATE 1 782G--110-112
113 630 107 8267 PLATE 1 782G--110-113
114 630 107 8618 BRACKET 1 782G--110-114
115 630 107 8595 BRACKET 2 782G--110-115
116 630 107 8625 PLATE 3 782G--110-116
117 630 107 8519 BRACKET 1 782G--110-117
118 630 107 8434 BRACKET 1 782G--110-118
119 630 107 8427 BRACKET 1 782G--110-119
120 630 114 9363 MECH PARTS(CLEAN DANPER) 1 782G--110-120
161 630 000 7657 BOLT,HEX-SCT 24 782G--110-161
162 630 000 7633 BOLT,HEX-SCT 12 782G--110-162
163 630 000 7770 BOLT,HEX-SCT 4 782G--110-163
164 630 000 7886 BOLT,HEX-SCT 4 782G--110-164
165 411 141 4008 WASHER V 4X9X0.8 17 782G--110-165
166 411 141 2905 WASHER SPR 4 17 782G--110-166
168 630 048 0368 BOLT,HEX-SCT 2 782G--110-168
169 411 119 1909 WASHER V 3X7X0.5 12 782G--110-169
170 411 086 4408 WASHER SPR 3 12 782G--110-170
171 411 040 7803 SCR PAN 3X12 2 782G--110-171
172 630 000 7626 BOLT,HEX-SCT 13 782G--110-172
173 630 000 7763 BOLT,HEX-SCT 1 782G--110-173
174 411 040 6202 SCR PAN 3X10 6 782G--110-174
175 411 113 0700 SCR PAN 3X16 4 782G--110-175
176 411 141 3902 WASHER V 3X7X0.5 8 782G--110-176
177 411 141 2806 WASHER SPR 3 8 782G--110-177
178 630 000 7503 BOLT,HEX-SCT 6 782G--110-178
179 630 000 7527 BOLT,HEX-SCT 2 782G--110-179
180 630 000 8920 SET SCREW 2 782G--110-180

MODEL TPM-200F/R
0207-001
110
基板認識部 P.C.B. RECOGNITION SECTION
Fig. G-3 基板反り押え P.C.B. Supporter
215
216
261
272
262
269
209
214
271
270
261
268
262
261
222
263
262
208
205
207
206
261
268
262
263
261
203
204
201
266
264
213
265
262
208
263
261
262
212
277
264
265
202
.
267
261
224
223
262
221
219
220
220
266
266
274
211
217
275
277
276
210
274
210
266
273
210
262
261
275
218
211
277
276
210
273
261
262
266
220
220
266
274
210
210
273
261
262
274
210
210
273
261
262
Fig.G-3
TPM-200F/R
See Fig.G-1
Key No.14
See Fig.G-1
Key No.19