P-0221-001.pdf - 第81页
MODEL TPM-200F/R 0209-001 Key No . P AR T No. P AR T NAME Q’ty REMARKS NOTE 79 F-3 20 1 630 108 3650 MECH P ARTS(CABLEVEYOR) 1 782F--1 10-201 20 2 630 088 3664 MECH P ARTS 1 782F--1 10-202 20 3 630 088 3657 MECH P ARTS 1…

MODEL TPM-200F/R
0207-001
78
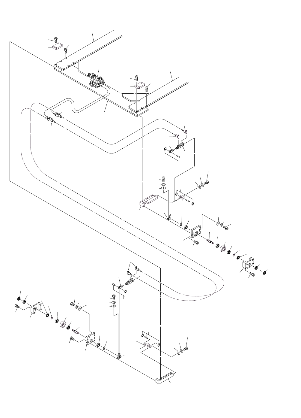
スクリーンホルダ部 SCREEN HOLDER SECTION
Fig. F-3 スクリーンホルダ配管 Screen Holder Piping
Fig.F-3
TPM-200F/R
267
208
208
207
209
204
204-03
204-01
204-02
See Fig.FA-1
Key No.30
See Fig.F-1
Key No.10
210
262
263
261
202
201
265
266
264
265
264
266
203
211
262
263
261

MODEL TPM-200F/R
0209-001
Key No. PART No. PART NAME Q’ty REMARKS
NOTE
79
F-3
201 630 108 3650 MECH PARTS(CABLEVEYOR) 1 782F--110-201
202 630 088 3664 MECH PARTS 1 782F--110-202
203 630 088 3657 MECH PARTS 1 782F--110-203
204 630 115 1045 SOLENOID VALVE 1 YSV118,119, 11A,11B, 11F,
#SS5Y3-X1175 782F--110-204
204 -01 630 108 7955 AIR LINE EQPT 1
204 -02 630 108 7948 SOLENOID VALVE 1
204 -03 630 108 7924 SOLENOID VALVE 2
207 630 069 0538 PIPE FITTINGS 1 782F--110-207
208 630 046 7680 AIR LINE EQPT 2 782F--110-208
209 630 088 4470 PIPE FITTINGS 2 782F--110-209
210 630 112 8597 BRACKET 1 782F--110-210
211 630 107 4870 BRACKET 1 782F--110-211
261 411 141 4107 WASHER V 5X10X1 4 782F--110-261
262 411 141 6705 WASHER SPR 5 4 782F--110-262
263 630 000 7749 BOLT,HEX-SCT 4 782F--110-263
264 411 141 4008 WASHER V 4X9X0.8 4 782F--110-264
265 411 141 2905 WASHER SPR 4 4 782F--110-265
266 630 000 7626 BOLT,HEX-SCT 4 782F--110-266
267 630 000 7695 BOLT,HEX-SCT 2 782F--110-267

MODEL TPM-200F/R
0207-001
80
スクリーンホルダ部 SCREEN HOLDER SECTION
Fig. F-4 スクリーンロック機構 Screen Rock Mechanism
Fig.F-4
TPM-200F/R
368
309
323
366
367
321
308
365
363
364
310
325
307
313
363
365
303
317
318
302
320
362
306
304
305
361
364
305
306
304
302
318
301
362
320
316
361
317
315
301
310
324
366
308
309
307
321
367
369
322
303
319
366
367
369
311
311
See Fig.F-2
Key No.104
See Fig.F-2
Key No.104
See Fig.F-3
Key No.204
370
371
314
370
326
371
See Fig.F-1
Key No.10
368
366
312
367
308
303
303
319