KE-3010_MS参数.pdf - 第42页
MS 参数 4-7 4-3-1- 2 吸嘴旋转中心 吸嘴旋转中心,是取得 各 Head 之轴的旋 转中心位置位于激 光传感器的哪个 位置。 图 4-3-1- 2 吸嘴旋转中心 4-3-1- 3 Head 角度偏移量 Head 角度 偏移量,是为了 使轴的旋转偏摆方向与 所有的吸嘴相一致而从 轴的虚拟原点取得 角 度。 轴的转动轨迹 轴的转动中心 临时原点时的轴位置 轴位置 轴的转动中心 轴的转动轨迹 <取得角度偏 移量 前的原 点复位后…

MS
参数
4-6
4-3
激光偏移量
4-3-1
功能
本项目用于取得基板上面高度、激光高度、吸嘴旋转中心、Head角度偏移量。
(CDS Head仅取得基板上面高度、激光高度。)
※ 更换吸嘴时,会出现有无送料器的询问,一旦选择“无送料器”,则在发生错误之前不再
询问有无送料器。
※ 进行校准台上是否放有模具等的确认时,请点击“Head退避”按钮再进行确认。
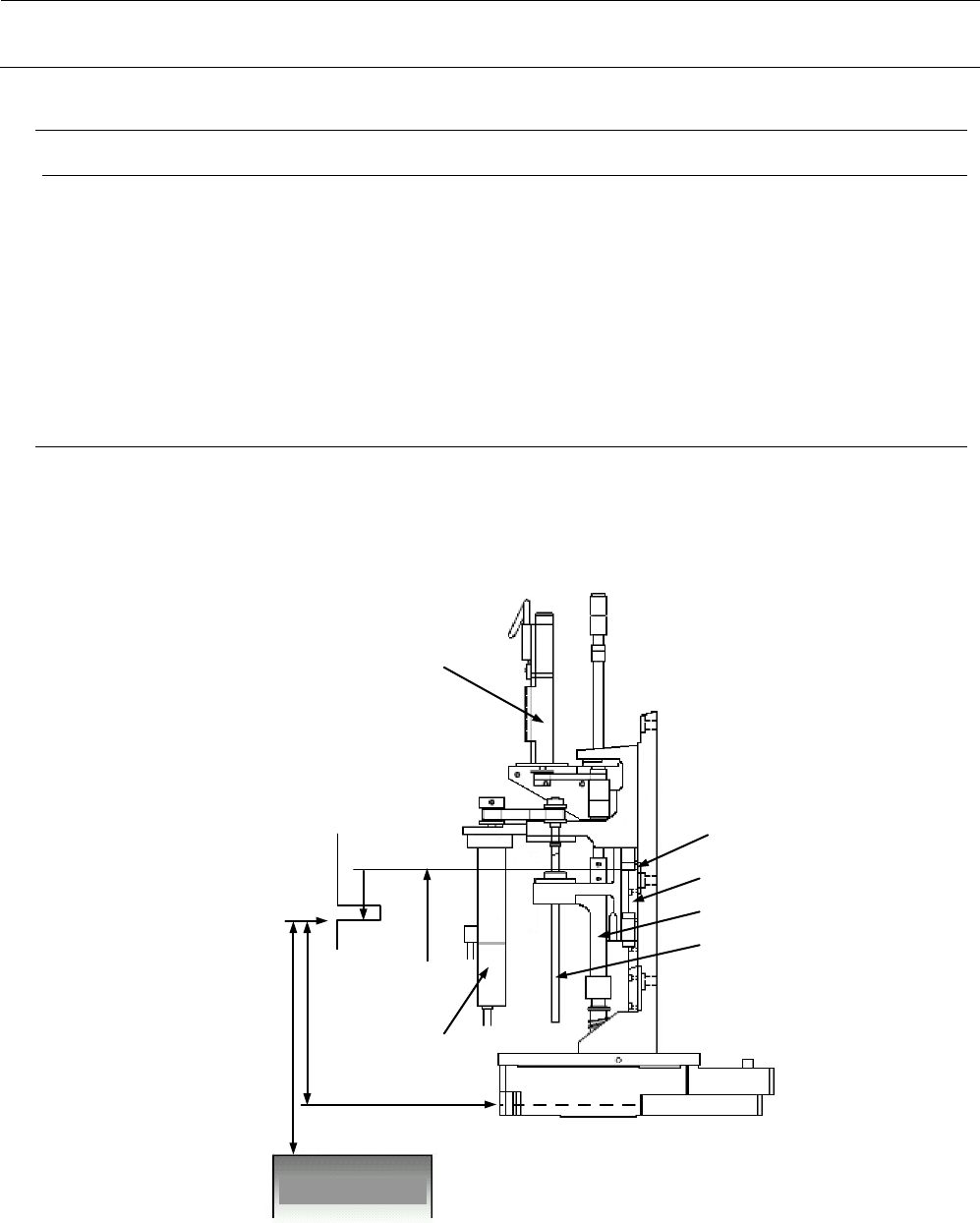
4-3-1-1 基板上面高度和激光高度
基板上面高度,是取得从校准台上面到各Head之Z轴原点位置的尺寸。
激光高度,是取得从各Head之Z轴原点位置到激光传感器之测量高度的尺寸。
使Z轴上升,观察其碰到限动器时马达扭矩的变化后再下降,以最初的Z相作为原点检出。
激光高度
限动器
① 检出超过马
达扭矩阈值
② 下降时最初的Z相
基板上面高度
Z
轴原点位置
编码器
Z相信号
Z
马达
θ
马达
直线导轨
Z轴滑动轴
滚珠丝杠
校准块

MS
参数
4-7
4-3-1-2 吸嘴旋转中心
吸嘴旋转中心,是取得各Head之轴的旋转中心位置位于激光传感器的哪个位置。
图
4-3-1-2
吸嘴旋转中心
4-3-1-3 Head 角度偏移量
Head角度偏移量,是为了使轴的旋转偏摆方向与所有的吸嘴相一致而从轴的虚拟原点取得角
度。
轴的转动轨迹
轴的转动中心
临时原点时的轴位置
轴位置
轴的转动中心
轴的转动轨迹
<取得角度偏移量前的原点复位后情况> <取得角度偏移量后的原点复位情况>
图
4-3-1-3
角度偏移量
4-3-2
使用模具
本项目中使用以下模具。
• 508吸嘴 • 模具吸嘴LNC60 Head用 • 模具吸嘴IC Head用
(40001346) (40046647) (E2101998000)
LNC60 Head
吸嘴旋转中心(L1~L6)

MS
参数
4-8
4-3-3
操作
选择“偏移量设置(O)”—“激光偏移量(L)”后,会显示设置激光偏移量的对话框。