维修手册_RX-7R_SVC.pdf - 第523页

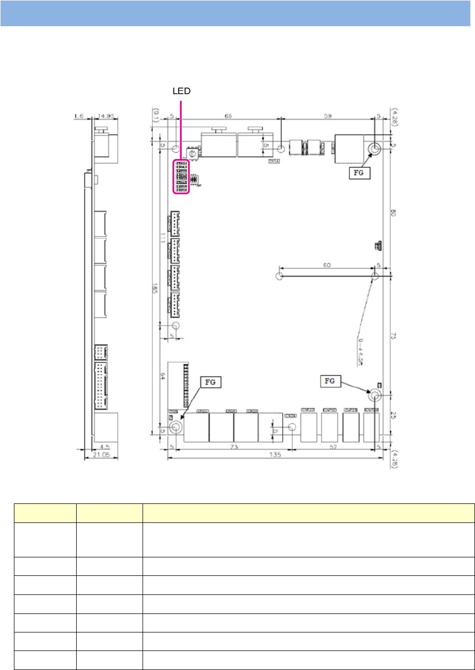
第 7 章 故障分析 7- 3. 伺服放大器 (MD202/M D212) 各轴中的准备状态及错误状态的 说明 表示亮灯, 表示闪烁, 表示熄灯。 RD□(绿色 LED ) AL□(红色 LED ) 说明 (与绿色交叉 闪烁 ) 控制器未连接状 态 伺服 OFF 状态 (与绿色同 时闪烁 ) 伺服 OFF /警 告状态 伺服 OFF / 警报 状态 伺服 ON /警 告状态 伺服 ON / 警报 状态 刚接通电源时( 初始化中), 或 …

100%1 / 556