npmw2_z.pdf - 第137页
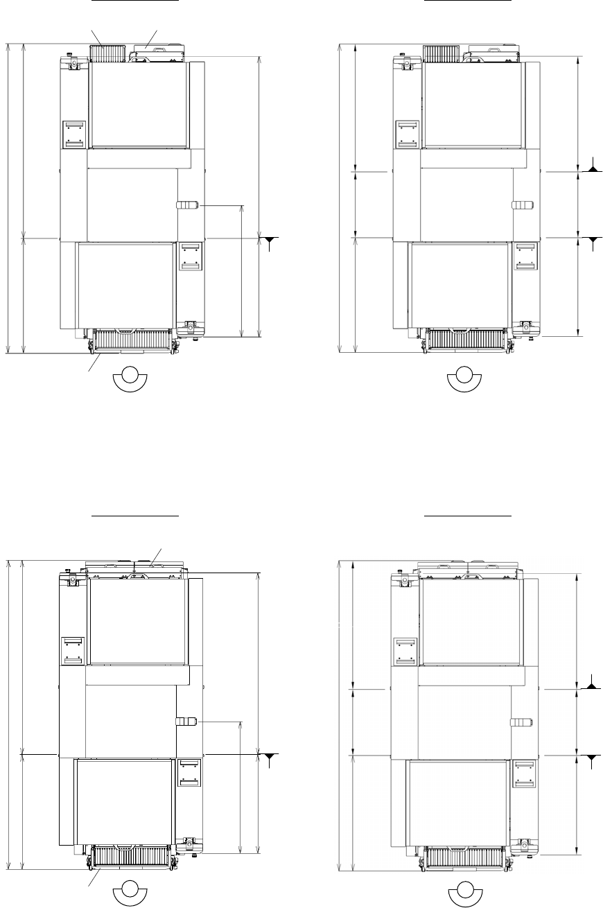
NPM-W2 2016.1118 - 131 - 13. 尺寸图 ( 单位 : mm) ■ 交换台车连接时 Remarks 上述示图的缩小比例与实际机器在严格上讲,并不完全 一致。 在研讨生产线构成和尺寸时,请另行 索取资料。 本机下部如有设置通风道等时,请确保与主体间空隙保 持 40 mm 以上。 76 前 侧 1 629 1 514 1 444 900 1 280 ( 传送带长度 ) 1 265 ( 罩外形 ) …

NPM-W2 2016.1118
- 130 -
12.2 空气投入部
后 侧
空气软管(长度: 5 m)
80PN
(
日东工器
)
30SM-TS
(
日东工器
)
工厂侧配管连接口
直径
: Rc3/8
设备附带部件 客户准备

NPM-W2 2016.1118
- 131 -
13.
尺寸图
(单位: mm)
■ 交换台车连接时
Remarks
上述示图的缩小比例与实际机器在严格上讲,并不完全一致。
在研讨生产线构成和尺寸时,请另行索取资料。
本机下部如有设置通风道等时,请确保与主体间空隙保持 40 mm 以上。
76
前 侧
1 629
1 514
1 444
900
1 280 (传送带长度)
1 265 (罩外形)
电源
Air
76
2 465
954
2 194
1 504
220
1 095.5
820.5 1 511.5
交换台车
交换台车
前 侧
2 465
810 951 571
571 943.5 943.5
单轨传送带规格 双轨传送带规格
基板传送基准
基板传送基准
(前侧轨道)
基板传送基准
(后侧轨道)
基板传送高度

NPM-W2 2016.1118
- 132 -
(单位: mm)
■ 单式托盘供料器连接时
■ 双式托盘供料器连接时
1 616 954
1 095.5
820.5 1 511.5
2 570
1 616 954
1 095.5
820.5 1 511.5
单式托盘供料器13 站供料器座
双式托盘供料器
交换台车
2 570
前 侧
交换台车
前 侧
前 侧
前 侧
1 055.5 943.5
2 570
571
810 951 571 810 951 571
1 055.5 943.5 571
2 570
单轨传送带规格 双轨传送带规格
单轨传送带规格 双轨传送带规格
基板传送基准
基板传送基准
(前侧轨道)
基板传送基准
(后侧轨道)
基板传送基准
基板传送基准
(前侧轨道)
基板传送基准
(后侧轨道)