KE-2050-KE-2060 使用说明书.pdf - 第388页
第1部 基本篇 第4章 生产程序制作 上层透射照明前后 下层透射照明前后 ( 半照射镜 ) 右侧面 上层透射照明前后 上层透射照明左右 下层透射照明前后 下层透射照明左右 上层透射照明左右 上层透射照明前后 机器近前侧 下层透射照明前后 图 4-3-7-7-3 透射照明设备 4-106

第1部 基本篇 第4章 生产程序制作
侧面照明 1*
下方照明*
侧面照明 2*
(上层透射照明左右)
(下层透射照明左右)
同轴照明*
照明设备
高分辨率摄像机用镜头(选购件)
标准摄像机用镜头
注)*记号表示反射照明时的设备。
正面图
图 4-3-7-7-2 反射、侧面照明设备
4-105

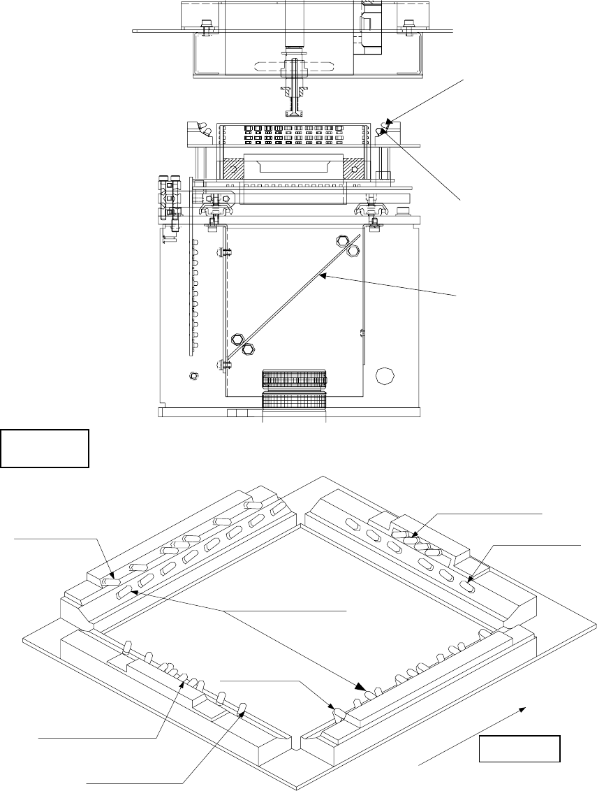
第1部 基本篇 第4章 生产程序制作
上层透射照明前后
下层透射照明前后
(半照射镜)
右侧面
上层透射照明前后
上层透射照明左右
下层透射照明前后
下层透射照明左右
上层透射照明左右
上层透射照明前后
机器近前侧
下层透射照明前后
图 4-3-7-7-3 透射照明设备
4-106

第1部 基本篇 第4章 生产程序制作
4-3-8 数据完成状态
检查数据的完成状态。若未完成则不能进行优化。
从菜单栏中单击“数据”/“数据完成状态”,显示如下画面。
图 4.3.8.1 数据完成状态
如果行的总数和完成的行数一致,则表示数据已完成,在完成的“( )”中显示“*”。另外,
“吸取数据”及行的总数为0的项目,即使不显示“*”,也被看作完成。
当有未完成的项目时,请完成该项目。
4-107