KE-2050-KE-2060 使用说明书.pdf - 第754页
第2部 功能详细篇 第1 2章 选项元件 12-39

第2部 功能详细篇 第12章 选项元件
12-10-9 共面性检查动作概要
执行共面检查时,轴的传感器上的实际动作如下所示。
12-10-9-1 统一测量元件
<12-10-3项(3)测量模式、元件尺寸>中所示的统一元件尺寸、
(标准模式:26mm×100mm以下、高精度模式:26mm×50mm以下)
“
单向扫描测量”。
图 12-10-9-1 统一测量动作图
12-10-9-2 分批测量元件
<12-10-3项(3)测量模式、元件尺寸>所示的分批元件的尺寸、
(标准模式:50mm×100mm以下、高精度模式:50mm×50mm以下)
“
此时进行扫描测量”。
图 12-10-9-2 分割测量动作图
12-38
第2部 功能详细篇 第12章 选项元件
12-39

第 2 部 功能详细篇 第13 章 程序补充
13-1
第13 章 程序补充
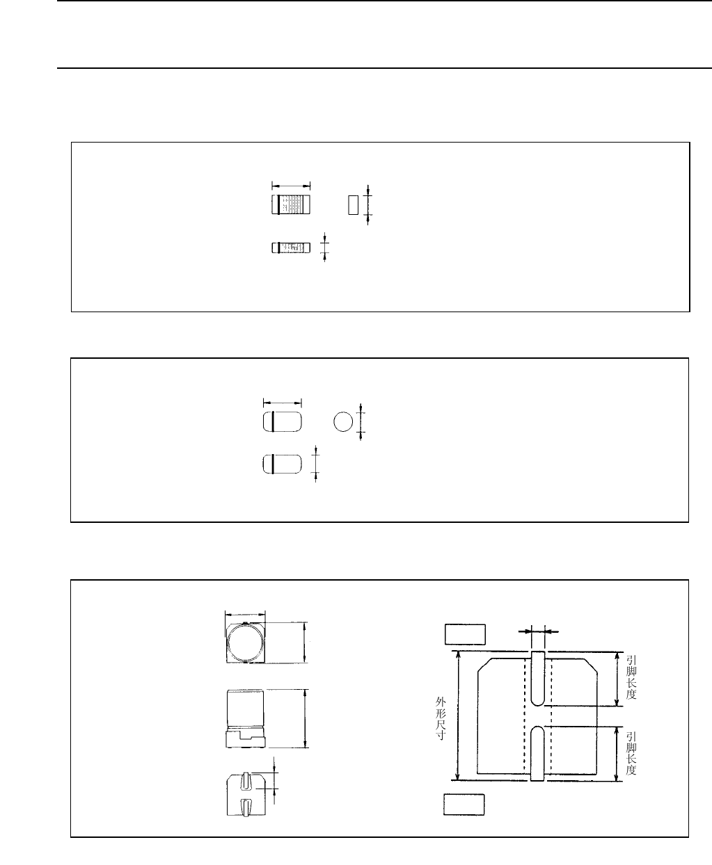
13-1 元件尺寸图例
· 方形芯片
· 圆筒行芯片
· 铝电解电容
外形尺寸 横
外形尺寸 纵
元件高度
外形尺寸 横
外形尺寸 纵
元件高度
外形尺寸 横
外形尺寸 纵
元件高度
引脚长度
引脚宽度
+侧
-侧