80S-2080F480F5.pdf - 第512页
9 Maintenance SIPLACE 80 S-20/F4/F5 User Manual 9.4 Gantries 05/99 Issue from Software Version SR.405.xx 9 - 46 9.4.1.2 Cleaning and Lightly Greasing the Guide Rails of the X Gantry Axes DANGER Do not ca rry out any clea…

SIPLACE 80S-20/F4/F5 User Manual 9 Maintenance
05/99 Issue from Software Version SR.405.xx 9.4 Gantries
9 - 45
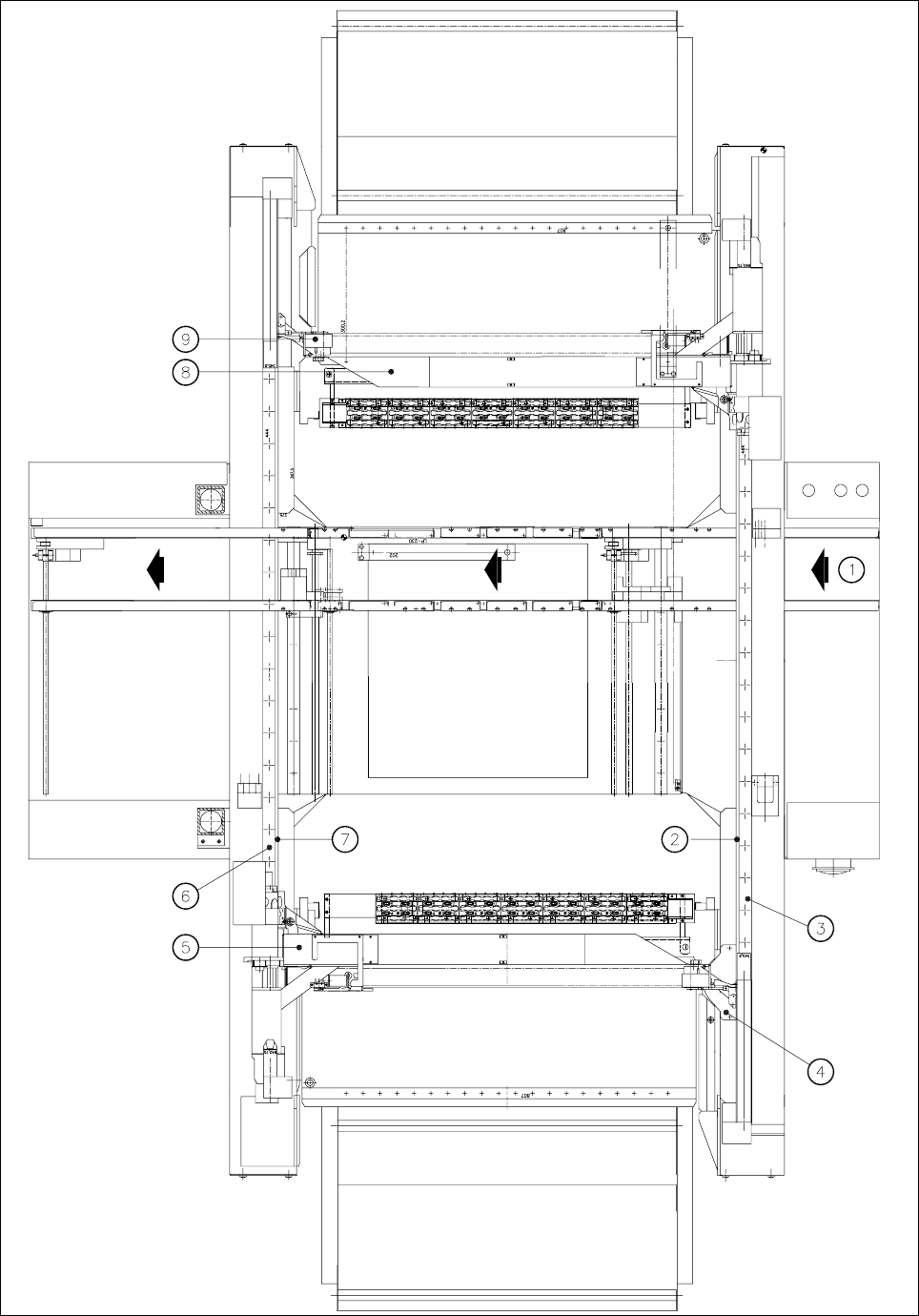
Fig. 9.4.2 Maintenance of the gantries 1 and 2 (top view of SIPLACE 80S-20 machine)

9 Maintenance SIPLACE 80S-20/F4/F5 User Manual
9.4 Gantries 05/99 Issue from Software Version SR.405.xx
9 - 46
9.4.1.2 Cleaning and Lightly Greasing the Guide Rails of the X Gantry Axes
DANGER
Do not carry out any cleaning work with alcohol in the presence of naked lights or fire.
The machine is switched off at the main switch.
Open the safety hood and with the SIPLACE 80S-20 machine slide the gantries as far apart as possible to
provide good access for maintenance work. With the 80F
4
machine, move the x gantry axis as far as pos-
sible over to the outside of the machine.
Clean the circumference and entire length of the x guide rails of Gantries 1 and 2 (or Gantry 1 in the case
of the SIPLACE 80F
4
/F
5
) with a lint-free cloth soaked in alcohol.
Move the placement head so that you can get at all points of the x guide rail.
Make sure that no grease gets onto the friction surfaces for the friction blocks of the y gantry. If necessary,
rub the friction surfaces over one last time with a cloth dampened with alcohol.
NOTE
Move the placement head only by pressing against a surface of the gantry carriage itself or by taking hold
of the grip on the placement head.
Apply a little watchmaker’s oil to a lint-free, clean cloth.
Rub the cloth sparingly over the entire circumference and the entire length of the x guide rails of Gantries 1
and 2.
Now move the placement head repeatedly up and down the x guide rail, removing the excess oil with a
clean cloth.
Apply Staburags N12 lubrication grease to the ball bearing tracks (Fig. 9.4.1).
NOTE
Excessive or insufficient oil may lead to faults in the travel of the axes. The x scale must never come into
contact with grease or oil.
9.4.2 Greasing X and Y Toothed Belts
Apply a little Staburags N12 lubrication grease to a brush the bristles of which have been cut short.
Grease the roots, the tips, and the lateral side faces of the toothed belt very sparingly (see Fig. 9.4.3, Page
9 - 47).

SIPLACE 80S-20/F4/F5 User Manual 9 Maintenance
05/99 Issue from Software Version SR.405.xx 9.4 Gantries
9 - 47
Fig. 9.4.3 Greasing the roots, the tips, and the upper and lower side faces of the toothed belt
9.4.3 X/Y Measurement System
NOTE
Contaminated scales result in counting errors with the x or y gantry axes and thus to incorrect or inaccurate
placement.
To prevent the x and y axis scales accidentally coming into contact with grease again after cleaning we recom-
mend that all scales only be cleaned once all other work has been completed which calls for greasing or oiling
parts.
The x and y incremental scales are glued on. For this reason moisten a cloth with alcohol and clean the scales
being careful to ensure that the glued surfaces do not come into contact with alcohol.
For the location of the measurement systems of the x and y axes please refer to Fig. 9.4.2.
9.4.3.1 Cleaning the incremental Scales of the X and Y Axes
Clean the incremental scales by wiping them over with a soft, clean and lint-free cloth and a little alcohol.
Move the axes so that you reach all parts of the incremental scales.
Root of the tooth
Tip of the tooth
Side faces of the
toothed belt