PTS-NXT-10JE.pdf - 第118页
1. PARTS PLACING / 部品装着 118 PTS-NXT-10JE Vol.1

This page intentionally blank.
1. PARTS PLACING / 部品装着
117
PTS-NXT-10JE Vol.1

1. PARTS PLACING / 部品装着
118
PTS-NXT-10JE Vol.1

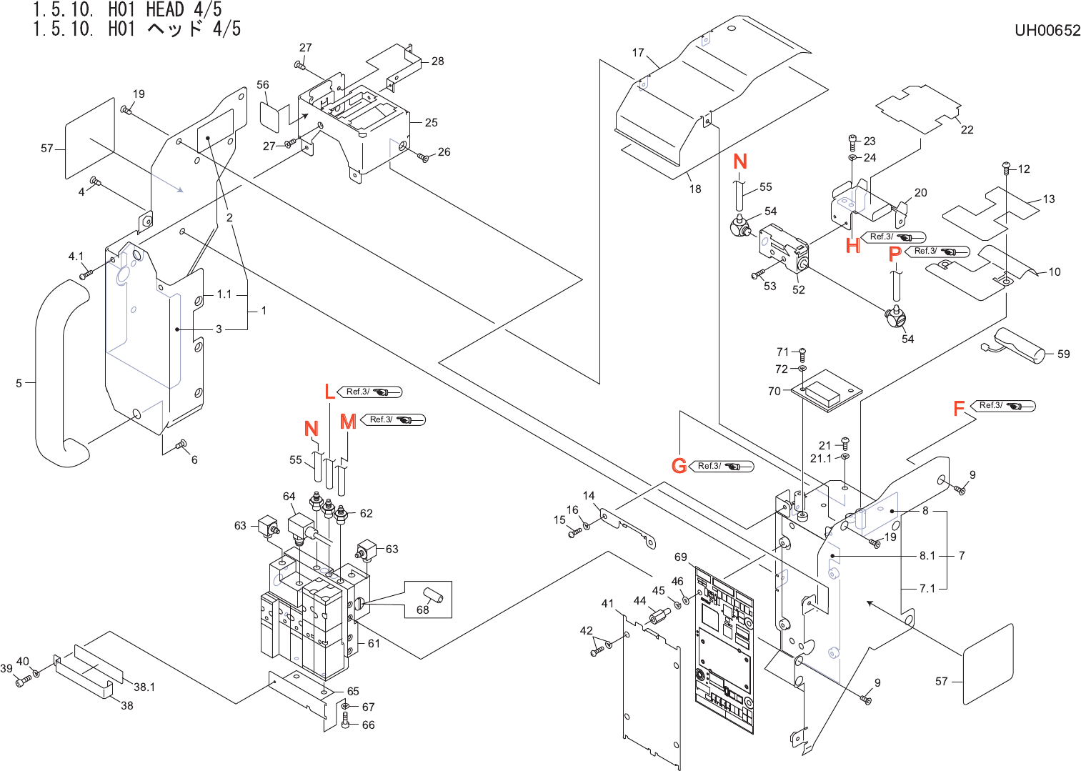
1.5.10. H01 HEAD 4/5
1.5.10. H01 ヘッド 4/5 UH00652
No. Drg.No. & Code No. QTY Description Rating Materials Remarks
番号 図番 & コード番号 個数 品名 規格 材質 備考
1 AA54G02 1 BKT BKT OT
1.1 PB24373 1 BKT BKT AL
2 PS00831 1 SHEET シート OT
3 PS00494 1 SHEET シート PL
4 K5186N 8 SCREW, C/R COUNTERSUNK 小ネジ 十穴皿 M03X005 ニッケルメッキ FE
4.1 K5178L 2 SCREW, C/R PAN 小ネジ 十穴鍋 M03X005 ニッケルメッキ FE
5 PJ02874 1 HANDLE ハンドル PL
6 K5359E 2 SCREW, HEX SOCKET COUNTERSUNK 小ネジ 六角穴皿 M04X008 FE
7 AA54F02 1 BKT BKT OT
7.1 PB15096 1 BKT BKT OT
8 PS00831 1 SHEET シート OT
8.1 PS00455 1 SHEET シート OT
9 K5186N 6 SCREW, C/R COUNTERSUNK 小ネジ 十穴皿 M03X005 ニッケルメッキ FE
10 PB15184 1 BKT, RETAINER BKT 押え FE
12 K5178L 2 SCREW, C/R PAN 小ネジ 十穴鍋 M03X005 ニッケルメッキ FE
13 PS00482 1 SHEET シート PL
14 PB09055 1 BKT BKT FE
15 K5178L 2 SCREW, C/R PAN 小ネジ 十穴鍋 M03X005 ニッケルメッキ FE
16 W1021A 2 WASHER, LOCK ワッシャ スプリング 3M/M FE
17 PB15103 1 COVER, UPPER カバー 上 FE
18 PS00472 1 SHEET シート OT
19 K5186N 3 SCREW, C/R COUNTERSUNK 小ネジ 十穴皿 M03X005 ニッケルメッキ FE
20 PB15174 1 BKT BKT FE
21 K5255T 2 SCREW, HEX SOCKET BUTTON 小ネジ 六角穴ボタン M03X006 FE
21.1 W1021A 2 WASHER, LOCK ワッシャ スプリング 3M/M FE
22 PS00464 1 SHEET シート PL
23 H5268T 2 BOLT, HEX SOCKET ボルト 六角穴 M02.5X006 FE
24 W1020H 2 WASHER, LOCK ワッシャ スプリング 2.5M/M FE
25 PB24385 1 BKT BKT AL
26 K5186N 2 SCREW, C/R COUNTERSUNK 小ネジ 十穴皿 M03X005 ニッケルメッキ FE
27 K5169H 2 SCREW, C/R COUNTERSUNK 小ネジ 十穴皿 M02X004(ステンレス) FE
28 PB09784 1 BKT BKT FE
38 PB15131 1 BKT, RETAINER BKT 押え FE
38.1 PS00821 1 SHEET シート OT
39 H5265A 1 BOLT, HEX SOCKET ボルト 六角穴 M02X005 OT
40 W1020A 1 WASHER, LOCK ワッシャ スプリング 2M/M FE
41 PB11643 1 COVER カバー FE
42 K51990 4 SCREW, WASHER ASS'Y 小ネジ 座金組込み M03X006 ナベセムス P4 FE
1. PARTS PLACING / 部品装着
119
PTS-NXT-10JE Vol.1