PTS-NXT-10JE.pdf - 第358页
A 1, 1.1 4 7 8 6 3 2 70 45 53 50 52 51 53 50 52 51 63 64 62 56 55 54 41 39 40 27 38 46 34 35 36 33 9 24 12, 12.1 11 10 14 13 16 18 17 45 48 49 48 49 47 47 30 30.2 30.1 25 26 19, 19.1 71 71 73 74 72 75.1 75.3 75.4 75.5 75…

6.1.1. M3S-SINGLE CONVEYOR 1/11
6.1.1. M3S-シングルコンベア 1/11 UQ01460
No. Drg.No. & Code No. QTY Description Rating Materials Remarks
番号 図番 & コード番号 個数 品名 規格 材質 備考
1 H5298A 8 BOLT, HEX SOCKET ボルト 六角穴 M05X010 FE
2 W1012A 8 WASHER, CONICAL ワッシャ 皿 M- 5-L FE
3 PM015W0 8 BOLT, HEX SOCKET ボルト 六角穴 FE Thin panel option
7 XM00233 1 MOTOR, STEPPING モータ ステッピング OT
8 H5289A 4 BOLT, HEX SOCKET ボルト 六角穴 M04X012 FE
9 W1022A 4 WASHER, LOCK ワッシャ スプリング 4M/M FE
10 PP00920 1 BKT, MOTOR BKT モータ FE
11 H5298A 3 BOLT, HEX SOCKET ボルト 六角穴 M05X010 FE
12 W1023A 3 WASHER, LOCK ワッシャ スプリング 5M/M FE
13 H5172T 1 BOLT, HEX ボルト 六角 M04X025 クロゾメ FE
14 N1080A 1 NUT, HEX ナット 六角 M 4 P=0.7 FE
15 PP00941 1 BKT, ADJUSTING BKT セリ FE
16 PZ05392 1 PULLEY プーリ OT
17 N4027A 2 SCREW, HEX SOCKET SET ネジ 六角穴止め M04X005 クボミサキ FE
18 H4572G 1 BELT, TIMING ベルト タイミング 180-3GT-9 OT
19 PM31463 1 PLATE プレート FE
20 H5323A 2 BOLT, HEX SOCKET ボルト 六角穴 M06X018 FE
21 W1024A 2 WASHER, LOCK ワッシャ スプリング 6M/M FE
22 XM00242 1 MOTOR, STEPPING モータ ステッピング OT
23 H5289A 4 BOLT, HEX SOCKET ボルト 六角穴 M04X012 FE
24 W1022A 4 WASHER, LOCK ワッシャ スプリング 4M/M FE
25 H5172T 1 BOLT, HEX ボルト 六角 M04X025 クロゾメ FE
26 N1080A 1 NUT, HEX ナット 六角 M 4 P=0.7 FE
27 PP00951 1 BKT, ADJUSTING BKT セリ FE
28 PZ05392 1 PULLEY プーリ OT
29 N4027A 2 SCREW, HEX SOCKET SET ネジ 六角穴止め M04X005 クボミサキ FE
30 H4520F 1 BELT, TIMING ベルト タイミング 342-3GT-9 OT
32 AA24M07 1 PLATE, BACKUP プレート バックアップ OT
33 AA23M10 1 FRAME フレーム OT
34 H5299B 2 BOLT, HEX SOCKET ボルト 六角穴 M05X012 ユニクロメッキシロ FE
35 W1012A 2 WASHER, CONICAL ワッシャ 皿 M- 5-L FE
36 PM66094 1 PLATE, BACKUP プレート バックアップ FE
37 PM66113 1 PLATE, BACKUP プレート バックアップ FE
45 AA6WL03 8 PIN, BACKUP
ピ
ン バックアッ
プ
OT
6. CONVEYOR / コンベア
17
PTS-NXT-10JE Vol.2

A
1,
1.1
4
7
8
6
3
2
70
45
53
50
52
51
53
50
52
51
63
64
62
56
55
54
41
39
40
27
38
46
34
35
36
33
9
24
12,
12.1
11
10
14
13
16
18
17
45
48
49
48
49
47
47
30
30.2
30.1
25
26
19,
19.1
71
71
73
74
72
75.1
75.3
75.4
75.5
75.2
30.3
27.2
27.1
27.3
63.1
55.1
50.1
50.2
15
15
23,
23.1
21
22
43
44,
44.1
43
59
60
61
61
58
69
69
68
67
58
77
76
75
44,
44.1
58.1
58.1
UQ01460
6. CONVEYOR / コンベア
18
PTS-NXT-10JE Vol.2

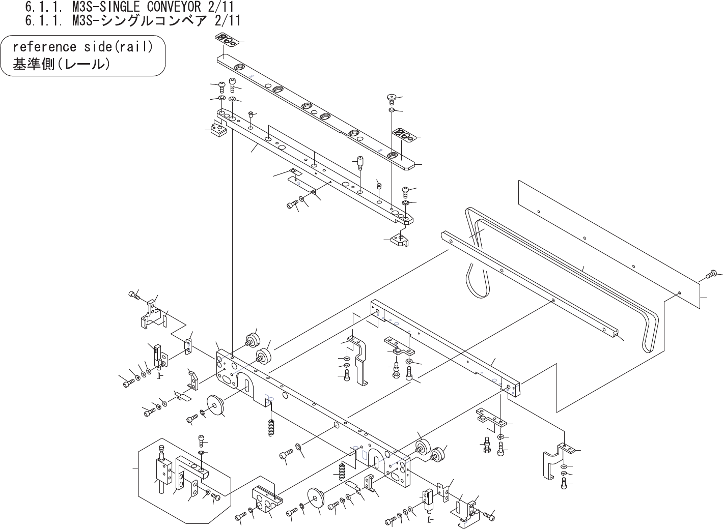
6.1.1. M3S-SINGLE CONVEYOR 2/11
6.1.1. M3S-シングルコンベア 2/11 UQ01460
No. Drg.No. & Code No. QTY Description Rating Materials Remarks
番号 図番 & コード番号 個数 品名 規格 材質 備考
1 PM83092 1 PLATE, RETAINING プレート 押え FE
1.1 PM03AX1 1 PLATE, RETAINING プレート 押え FE Thin panel option
2 PM01723 6 BOLT ボルト FE
3 PM03470 6 COLLAR カラー FE
4 PM23704 3 PIN, REFERENCE ピン 基準 FE
6 PT01224 1 GUIDE ガイド FE
7 K5255T 2 SCREW, HEX SOCKET BUTTON 小ネジ 六角穴ボタン M03X006 FE
8 W1010A 2 WASHER, CONICAL ワッシャ 皿 M- 3-L FE
9 PT01213 1 GUIDE ガイド FE
10 K5255T 2 SCREW, HEX SOCKET BUTTON 小ネジ 六角穴ボタン M03X006 FE
11 W1010A 2 WASHER, CONICAL ワッシャ 皿 M- 3-L FE
12 PM11588 1 RAIL レール FE
12.1 PM41853 1 RAIL レール FE Thin panel option
13 H5288A 4 BOLT, HEX SOCKET ボルト 六角穴 M04X010 FE
14 W1011A 4 WASHER, CONICAL ワッシャ 皿 M- 4-L FE
15 H3170B 2 PLUNGER, BALL プランジャ ボール SBP-4 OT
16 PB11920 1 BKT BKT FE
17 H5274A 2 BOLT, HEX SOCKET ボルト 六角穴 M03X006 FE
18 W1021A 2 WASHER, LOCK ワッシャ スプリング 3M/M FE
19 PX03040 1 SEAL, BAR CODE シール バーコード PL
19.1 PX03990 1 SEAL, BAR CODE シール バーコード PL Thin panel option
21 PM09102 1 PLATE, CLAMPING プレート クランプ FE
22 K5255A 4 SCREW, HEX SOCKET BUTTON 小ネジ 六角穴ボタン M03X004 FE
23 XB01021 1 CONVEYOR, BELT コンベア ベルト OT L=960mm
23.1 XB02731 1 CONVEYOR, BELT コンベア ベルト OT Thin panel option
24 PM11620 1 GUIDE, BELT ガイド ベルト AL
25 H5287A 4 BOLT, HEX SOCKET ボルト 六角穴 M04X008 FE
26 W1011A 4 WASHER, CONICAL ワッシャ 皿 M- 4-L FE
27 PB18160 1 HOOK フック FE
27.1 H5275A 2 BOLT, HEX SOCKET ボルト 六角穴 M03X008 FE
27.2 W1021A 2 WASHER, LOCK ワッシャ スプリング 3M/M FE
27.3 W1040A 2 WASHER, FLAT ワッシャ 平 3M/MX0.5X7(1W-3) FE
30 PB18150 1 HOOK フック FE
30.1 H5275A 2 BOLT, HEX SOCKET ボルト 六角穴 M03X008 FE
30.2 W1021A 2 WASHER, LOCK ワッシャ スプリング 3M/M FE
30.3 W1040A 2 WASHER, FLAT ワッシャ 平 3M/MX0.5X7(1W-3) FE
33 PM12151 1 PLATE プレート FE
34 H5275A 2 BOLT, HEX SOCKET ボルト 六角穴 M03X008 FE
6. CONVEYOR / コンベア
19
PTS-NXT-10JE Vol.2