PTS-NXT-10JE.pdf - 第821页
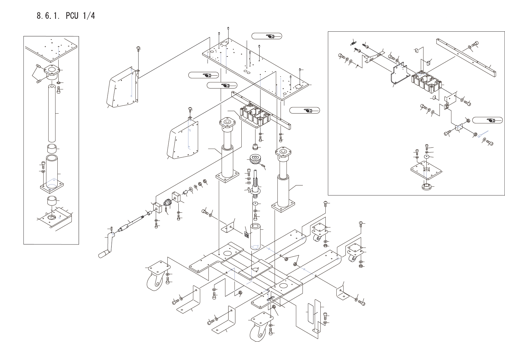
8.6.1. PCU 1/4 UX04204(M3S) UX04304(M6S) No. Drg.No. & Code No. QTY Description Rating Materials Remarks 番号 図番 & コード番号 個 数 品名 規格 材質 備考 1 PM02EG2 1 FRAME フレーム FE 5 K2142C 2 CASTER キャスタ NO.102HB2-EP<TG> OT 5…

U
U
AA
BB
V
GG
Ref.4/
Ref.2/
Ref.2/
DETAIL U
DETAIL V
980
960
940
920
900
880
CC
Ref.2/
JJ
Ref.2/
1
30
41
42
43
11
10
50
49
50
49.1
9
11
10
9
29
28
98,
99
35
36
37
34
39
40
27
16
19
22
23
24
47
56
48
48
51
55
52
54
53
62
61
38
53
17
18
19
20
21
26
25
65
64
47
44
31
32
33
45
46
59
60
63
66
67
68
13
14
12
15
7
8
5
6
5.1
69
72
72.1
72.2
72.3
72.4
70
71
73
74
75
76
77
78
7
8
5
6
5.1
107
108
109
110
111
112
113
58
57
93
94
95
97
96
100
101
102
101
102
103
104
105
106
103
104
105
100
79
81
80
102.1
102.1
114
UX04304(M6S)
UX04204(M3S)
8. ACCESSORIES / アクセサリ
230
PTS-NXT-10JE Vol.3

8.6.1. PCU 1/4 UX04204(M3S)
UX04304(M6S)
No. Drg.No. & Code No. QTY Description Rating Materials Remarks
番号 図番 & コード番号 個数 品名 規格 材質 備考
1 PM02EG2 1 FRAME フレーム FE
5 K2142C 2 CASTER キャスタ NO.102HB2-EP<TG> OT
5.1 PB70851 2 SPACER スペーサ AL
6 K52584 8 SCREW, HEX SOCKET BUTTON 小ネジ 六角穴ボタン M06X012(3カ シロ) FE
7 W1106F 8 WASHER, LOCK ワッシャ スプリング 6M/M(3カ シロ) FE
8 N1079K 8 NUT, HEX ナット 六角 M06(3カ シロ) FE
9 K2142D 2 CASTER キャスタ NO.107BS<TG> OT
10 H5428F 8 BOLT, HEX SOCKET ボルト 六角穴 M08X015(3カ シロ) FE
11 W1106G 8 WASHER, LOCK ワッシャ スプリング 8M/M(3カ シロ) FE
12 PB77831 1 BKT BKT FE
13 H5425C 2 BOLT, HEX SOCKET ボルト 六角穴 M06X012(3カ シロ) FE
14 W1106F 2 WASHER, LOCK ワッシャ スプリング 6M/M(3カ シロ) FE
15 PZ20501 1 SCALE スケール PL
16 PM87061 2 HOLDER ホルダ FE
17 H5428N 8 BOLT, HEX SOCKET ボルト 六角穴 M08X025(3カ シロ) FE
18 W1106G 8 WASHER, LOCK ワッシャ スプリング 8M/M(3カ シロ) FE
19 H30638 4 BUSHING ブシュ SPB-405030 OT
20 H5055K 2 HOLDER ホルダ STHSB40 OT
21 N4046B 4 SCREW, HEX SOCKET SET ネジ 六角穴止め M06X008(3カ シロ) FE
22 PZ40450 2 SHAFT シャフト OT
23 PM08HN0 1 PLATE, BASE プレート ベース AL
24 H2095A 6 PIN, PARALLEL ピン 平行 ゚6X12 Aシュ (M6) OT
25 H5428M 8 BOLT, HEX SOCKET ボルト 六角穴 M08X022(3カ シロ) FE
26 W1014B 8 WASHER, CONICAL ワッシャ 皿 M-8-H(3カ シロ) FE
27 PM009B1 1 SPACER スペーサ AL
28 H54272 3 BOLT, HEX SOCKET ボルト 六角穴 M06X020(3カ シロ) FE
29 W1106F 3 WASHER, LOCK ワッシャ スプリング 6M/M(3カ シロ) FE
30 XN00242 1 SCREW, TRAPEZOID ネジ 台形 OT
31 H5425D 1 BOLT, HEX SOCKET ボルト 六角穴 M06X015(3カ シロ) FE
32 W1106F 1 WASHER, LOCK ワッシャ スプリング 6M/M(3カ シロ) FE
33 W1087R 1 WASHER ワッシャ R10-27 OT
34 K1135B 4 COLLAR カラー CLBSB6-8.0 OT
35 H5426S 4 BOLT, HEX SOCKET ボルト 六角穴 M04X018(3カ シロ) FE
36 W1106D 4 WASHER, LOCK ワッシャ スプリング 4M/M(3カ シロ) FE
37 W1090B 4 WASHER ワッシャ WSSM8-4-2 FE
38 W1090F 1 WASHER ワッシャ WSSB25-6-5 FE
39 H5425D 1 BOLT, HEX SOCKET ボルト 六角穴 M06X015(3カ シロ) FE
40 W1106F 1 WASHER, LOCK ワッシャ スプリング 6M/M(3カ シロ) FE
8. ACCESSORIES / アクセサリ
231
PTS-NXT-10JE Vol.3

8.6.1. PCU 1/4 UX04204(M3S)
UX04304(M6S)
No. Drg.No. & Code No. QTY Description Rating Materials Remarks
番号 図番 & コード番号 個数 品名 規格 材質 備考
41 PM25692 1 GEAR, SPIRAL BEVEL ギヤ スパイラルベベル OT
42 H2065A 1 PIN, SPRING ピン スプリング 5゚X40 FE
43 H4121T 1 BEARING ベアリング NAX1523 OT
44 PM87591 1 HOLDER, BEARING ホルダ ベアリング AL
45 H5427E 4 BOLT, HEX SOCKET ボルト 六角穴 M05X018(3カ シロ) FE
46 W1106E 4 WASHER, LOCK ワッシャ スプリング 5M/M(3カ シロ) FE
47 PM87601 2 BLOCK ブロック AL
48 H48987 2 BEARING, DRY ベアリング ドライ JZF12-20 OT
49 H5427S 2 BOLT, HEX SOCKET ボルト 六角穴 M05X050(3カ シロ) FE
49.1 H5427T 2 BOLT, HEX SOCKET ボルト 六角穴 M05X055(3カ シロ) FE
50 W1106E 4 WASHER, LOCK ワッシャ スプリング 5M/M(3カ シロ) FE
51 PM65584 1 SHAFT シャフト FE
52 W1090C 1 WASHER ワッシャ WSSB20-10-3 OT
53 N1094D 2 NUT, HEX ナット 六角 M10 3シュ(3カ シロ) FE
54 W1106K 1 WASHER, LOCK ワッシャ スプリング 10M/M(3カ シロ) FE
55 PM65562 1 GEAR, SPIRAL BEVEL ギヤ スパイラルベベル OT
56 H2031C 1 PIN, SPRING ピン スプリング ゚5X20 FE
57 XH01151 1 HANDLE ハンドル OT
58 H2063T 1 PIN, SPRING ピン スプリング ゚5X25 FE
59 PB55302 1 PLATE プレート AL
60 XH00892 1 FRAME フレーム OT
61 H5428C 4 BOLT, HEX SOCKET ボルト 六角穴 M06X060(3カ シロ) FE
62 W1106F 4 WASHER, LOCK ワッシャ スプリング 6M/M(3カ シロ) FE
63 PM93201 1 BAR バー AL
64 H54277 6 BOLT, HEX SOCKET ボルト 六角穴 M06X040(3カ シロ) FE
65 W1106F 6 WASHER, LOCK ワッシャ スプリング 6M/M(3カ シロ) FE
66 N10034 2 NUT ナット SFB-103(M6) OT
67 H54274 2 BOLT, HEX SOCKET ボルト 六角穴 M06X025(3カ シロ) FE
68 W1106F 2 WASHER, LOCK ワッシャ スプリング 6M/M(3カ シロ) FE
69 PB77840 1 BKT BKT FE
70 H5425D 2 BOLT, HEX SOCKET ボルト 六角穴 M06X015(3カ シロ) FE
71 W1106F 2 WASHER, LOCK ワッシャ スプリング 6M/M(3カ シロ) FE
72 N10034 2 NUT ナット SFB-103(M6) OT
72.1 PB00BL0 1 BKT BKT FE
72.2 H53220 2 BOLT, HEX SOCKET ボルト 六角穴 M06X016(3カ シロ) FE
72.3 W1106F 2 WASHER, LOCK ワッシャ スプリング 6M/M(3カ シロ) FE
72.4 N10034 2 NUT ナット SFB-103(M6) OT
73 PB65811 1 BKT BKT FE
8. ACCESSORIES / アクセサリ
232
PTS-NXT-10JE Vol.3