PTS-NXT-10JE.pdf - 第828页
DET AIL T2 DET AIL T1 T1 T2 K K Ref.2/ H H Ref.2/ 1 20 21 21 22 24 26 27 28 26 27 28 23 2 14 15 14 15 25 26 27 28 26 27 28 3 4 3 4 12 13 37 38 36 48 50 51 48 50 51 52 53 54 52 53 54 56 57 59 60 58 59 60 61 62 63 61 62 63…

8.6.1. PCU 2/4 UX04204(M3S)
UX04304(M6S)
No. Drg.No. & Code No. QTY Description Rating Materials Remarks
番号 図番 & コード番号 個数 品名 規格 材質 備考
82 H5426N 4 BOLT, HEX SOCKET ボルト 六角穴 M04X015(3カ シロ) FE
83 W1106D 4 WASHER, LOCK ワッシャ スプリング 4M/M(3カ シロ) FE
92 PB00FY0 1 BKT BKT FE
93 H5427C 2 BOLT, HEX SOCKET ボルト 六角穴 M05X015(3カ シロ) FE
94 W1106E 2 WASHER, LOCK ワッシャ スプリング 5M/M(3カ シロ) FE
101 H3038Z 1 HOOK フック BSPO 4-15 OT
103 S3250D 1 SPRING スプリング AWT8-40 OT
104 PM02EW0 2 PIN ピン FE
105 N10664 2 NUT, U ナット U M05 FE
107 PM02ER1 2 PIN ピン FE
108 N1067A 2 NUT, U ナット U M06 FE
110 H5426Z 1 BOLT, HEX SOCKET ボルト 六角穴 M04X035(3カ シロ) FE
111 N1079G 1 NUT, HEX ナット 六角 M04(3カ シロ) FE
112 W1106D 1 WASHER, LOCK ワッシャ スプリング 4M/M(3カ シロ) FE
113 PB60433 1 SLIDER スライダ FE
114 PM82132 2 COLLAR カラー FE
115 H5426M 2 BOLT, HEX SOCKET ボルト 六角穴 M04X012(3カ シロ) FE
116 W1106D 2 WASHER, LOCK ワッシャ スプリング 4M/M(3カ シロ) FE
117 W1043C 2 WASHER, FLAT ワッシャ 平 4W-4(3カ シロ) FE
118 PB77931 1 SLIDER スライダ FE
119 PM82132 2 COLLAR カラー FE
120 H5426M 2 BOLT, HEX SOCKET ボルト 六角穴 M04X012(3カ シロ) FE
121 W1106D 2 WASHER, LOCK ワッシャ スプリング 4M/M(3カ シロ) FE
122 W1043C 2 WASHER, FLAT ワッシャ 平 4W-4(3カ シロ) FE
125 W1092L 1 WASHER ワッシャ WSSB8-4-5 OT
126 K5359X 1 SCREW, HEX SOCKET COUNTERSUNK 小ネジ 六角穴皿 M04X012(3カ シロ) FE
127 N1079X 1 NUT, HEX ナット 六角 M04 3シュ(3カ シロ) FE
128 W1106D 1 WASHER, LOCK ワッシャ スプリング 4M/M(3カ シロ) FE
129 S30203 1 SPRING スプリング WR6-60 OT
130 H54265 1 BOLT, HEX SOCKET ボルト 六角穴 M04X065(3カ シロ) FE
131 N1079G 1 NUT, U ナット U M04(3カ シロ) FE
132 XW00501 1 WIRE ワイヤ OT
133 K1139B 1 COLLAR カラー FWSSM-D7-V5-T3.5 OT
134 H5427B 1 BOLT, HEX SOCKET ボルト 六角穴 M05X012(3カ シロ) FE
135 W1106E 1 WASHER, LOCK ワッシャ スプリング 5M/M(3カ シロ) FE
136 W1108E 1 WASHER, FLAT ワッシャ 平 4W-5(3カ シロ) FE
8. ACCESSORIES / アクセサリ
237
PTS-NXT-10JE Vol.3

DETAIL T2
DETAIL T1
T1
T2
KK
Ref.2/
HH
Ref.2/
1
20
21
21
22
24
26
27
28
26
27
28
23
2
14
15
14
15
25
26
27
28
26
27
28
3
4
3
4
12
13
37
38
36
48
50
51
48
50
51
52
53
54
52
53
54
56
57
59
60
58
59
60
61
62
63
61
62
63
49
49
64
65
66
64
65
66
69
70
71
68
69
70
71
68
55
72
72
45
46
45
46
47
47
80
80.1
80.2
89
93
91
92
90
89
82
81
82
81
83
73
76
76
73
37
38
36
35.1
35.2
35.3
35.4
35.1
35.2
35.3
35.4
31
32
33
29
30
29
31
32
33
30
34
35
29
31
32
33
30
29
30
31
32
33
34
35
67
67
39
41
44
43
43
42
41
40
43
43
42
95
94
44
84
85
86
UX04304(M6S)
UX04204(M3S)
8. ACCESSORIES / アクセサリ
238
PTS-NXT-10JE Vol.3

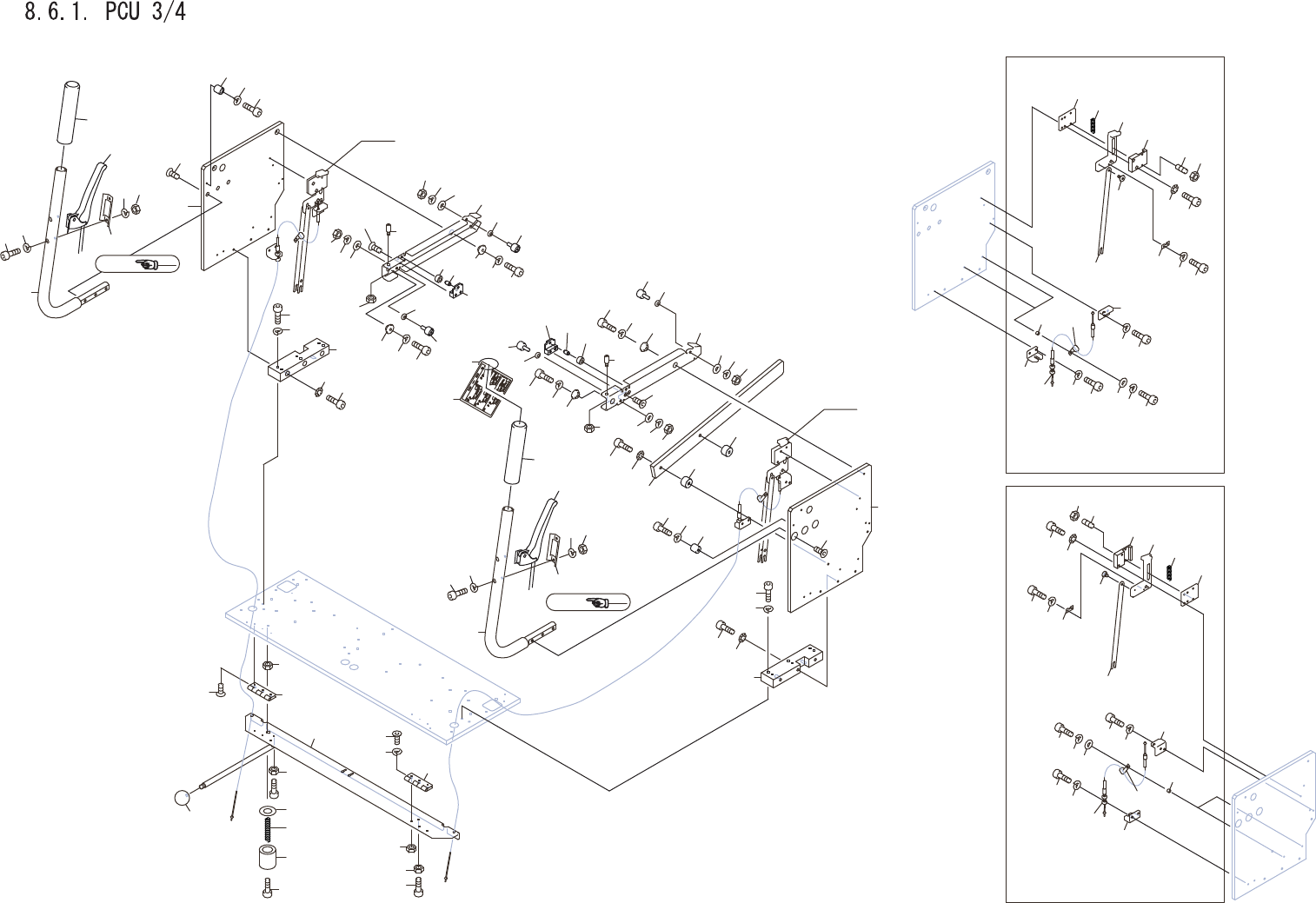
8.6.1. PCU 3/4 UX04204(M3S)
UX04304(M6S)
No. Drg.No. & Code No. QTY Description Rating Materials Remarks
番号 図番 & コード番号 個数 品名 規格 材質 備考
1 PM02EY1 1 PLATE, ARM プレート アーム AL
2 PM02EX1 1 PLATE, ARM プレート アーム AL
3 H54274 6 BOLT, HEX SOCKET ボルト 六角穴 M06X025(3カ シロ) FE
4 W1013A 6 WASHER, CONICAL ワッシャ 皿 M- 6-H FE
12 PM08HL0 1 BLOCK ブロック AL
13 PM08HM0 1 BLOCK ブロック AL
14 H54276 6 BOLT, HEX SOCKET ボルト 六角穴 M06X035(3カ シロ) FE
15 W1106F 6 WASHER, LOCK ワッシャ スプリング 6M/M(3カ シロ) FE
20 PB77980 1 PLATE プレート FE
21 PM84322 2 COLLAR カラー FE
22 H54273 2 BOLT, HEX SOCKET ボルト 六角穴 M06X022(3カ シロ) FE
23 W1013A 2 WASHER, CONICAL ワッシャ 皿 M- 6-H FE
24 PB78013 1 ARM アーム FE
25 PB78023 1 ARM アーム FE
26 PM88101 4 PIN ピン FE
27 H5427D 4 BOLT, HEX SOCKET ボルト 六角穴 M05X016(3カ シロ) FE
28 W1106E 4 WASHER, LOCK ワッシャ スプリング 5M/M(3カ シロ) FE
29 K1113Z 4 CAM FOLLOWER カムフォロア CF06-A (TN32,TNW32) OT
30 W10877 4 WASHER ワッシャ WSSB12-6-3 OT
31 N1079K 4 NUT, HEX ナット 六角 M06(3カ シロ) FE
32 W1106F 4 WASHER, LOCK ワッシャ スプリング 6M/M(3カ シロ) FE
33 W1108F 4 WASHER, FLAT ワッシャ 平 4W-6(3カ シロ) FE
34 PM92191 2 PIN ピン FE
35 N1079Z 2 NUT, HEX ナット 六角 M06 3シュ(3カ シロ) FE
35.1 PM034K1 2 RETAINER, BEARING 押え ベアリング FE
35.2 PM034H1 2 SHAFT シャフト FE
35.3 H42256 2 BEARING ベアリング RNAST 5 OT
35.4 K5361T 4 SCREW, HEX SOCKET COUNTERSUNK 小ネジ 六角穴皿 M05X012 FE
36 S30180 2 STOPPER ストッパ AZXHC15-15-M4 OT
37 H5426N 2 BOLT, HEX SOCKET ボルト 六角穴 M04X015(3カ シロ) FE
38 W1106D 2 WASHER, LOCK ワッシャ スプリング 4M/M(3カ シロ) FE
39 AA5EZ01 1 LEVER レバー OT
40 AA5EY01 1 LEVER レバー OT
41 PB68502 2 RETAINER 押え FE
42 H5426M 4 BOLT, HEX SOCKET ボルト 六角穴 M04X012(3カ シロ) FE
43 W1106D 8 WASHER, LOCK ワッシャ スプリング 4M/M(3カ シロ) FE
44 N1079G 4 NUT, HEX ナット 六角 M04(3カ シロ) FE
45 N2117E 2 GRIP 握り C-57(02) OT
8. ACCESSORIES / アクセサリ
239
PTS-NXT-10JE Vol.3