PTS-NXT-10JE.pdf - 第436页
A 1 24 2 2.1 2.2 5 8 8 9 13 14 15 25 26 13 14 16 17 18 15 16 19 20 21 22 23 19 20 21 22 23 30 37 40 40 31 32 38 39 34 34.1 35 36 41 42 43 44 47 48 50 49 2.3 5.1 5.2 5.3 54 53 52 64 65 63 59 62 60 61 60 59 62 61 68 69 68 …

6.1.3. M6S-SINGLE CONVEYOR S 1/6
6.1.3. M6S-シングルコンベア S 1/6 UQ03900
No. Drg.No. & Code No. QTY Description Rating Materials Remarks
番号 図番 & コード番号 個数 品名 規格 材質 備考
2 PM04TX3 1 PLATE, STIFFENING プレート 当て FE
4 PM04TW3 1 PLATE, STIFFENING プレート 当て FE
5 PB00GY1 1 PLATE, PARTITION プレート 仕切り FE
5.1 H5273A 2 BOLT, HEX SOCKET ボルト 六角穴 M03X005 FE
5.2 W1021A 2 WASHER, LOCK ワッシャ スプリング 3M/M FE
6 K5357T 10 SCREW, HEX SOCKET COUNTERSUNK 小ネジ 六角穴皿 M03X008 FE
7 PM79502 4 NUT ナット FE
8 W1121C 8 WASHER ワッシャ WSSS20-8-2 OT
9 AA6WL03 8 PIN, BACKUP ピン バックアップ OT
10 PM06AZ3 1 PLATE, BACKUP プレート バックアップ FE PM97231+PZ35753
11 PM05YY3 1 PLATE, BACKUP プレート バックアップ FE
12 H5276A 8 BOLT, HEX SOCKET ボルト 六角穴 M03X010 FE
13 W1011A 8 WASHER, CONICAL ワッシャ 皿 M- 4-L FE
14 PM05YX1 2 ARM アーム AL
15 H5282B 6 BOLT, HEX SOCKET ボルト 六角穴 M03X030(ゼンネジ) FE
16 N1076A 6 NUT, HEX ナット 六角 M 3 P=0.5 FE
17 W1021A 6 WASHER, LOCK ワッシャ スプリング 3M/M FE
18 H5282A 2 BOLT, HEX SOCKET ボルト 六角穴 M03X030 FE
19 W1021A 2 WASHER, LOCK ワッシャ スプリング 3M/M FE
20 W1042A 2 WASHER, FLAT ワッシャ 平 4W- 3 FE
21 PM04TL3 2 ARM アーム AL
22 N4025Z 6 SCREW, HEX SOCKET SET ネジ 六角穴止め M03X020 クボミサキ FE
23 N1076A 6 NUT, HEX ナット 六角 M 3 P=0.5 FE
24 W1021A 6 WASHER, LOCK ワッシャ スプリング 3M/M FE
25 H5280A 2 BOLT, HEX SOCKET ボルト 六角穴 M03X020 FE
26 W1021A 2 WASHER, LOCK ワッシャ スプリング 3M/M FE
27 W1042A 2 WASHER, FLAT ワッシャ 平 4W- 3 FE
28 PM04TM1 4 BLOCK ブロック AL
29 H5278A 12 BOLT, HEX SOCKET ボルト 六角穴 M03X015 FE
30 W1010A 12 WASHER, CONICAL ワッシャ 皿 M- 3-L FE
31 H5280A 8 BOLT, HEX SOCKET ボルト 六角穴 M03X020 FE
32 W1021A 8 WASHER, LOCK ワッシャ スプリング 3M/M FE
33 W1042A 8 WASHER, FLAT ワッシャ 平 4W- 3 FE
34 PM07BA0 4 BOLT
ボ
ルト FE
6. CONVEYOR / コンベア
95
PTS-NXT-10JE Vol.2

A
1
24
2
2.1
2.2
5
8
8
9
13
14
15
25
26
13
14
16
17
18
15
16
19
20
21
22
23
19
20
21
22
23
30
37
40
40
31
32
38
39
34
34.1
35
36
41
42
43
44
47
48
50
49
2.3
5.1
5.2
5.3
54
53
52
64
65
63
59
62
60
61
60
59
62
61
68
69
68
69
6
7.1
7.2
7
6
7.1
7.2
7
30.1
37.1
34.2
27
28
29
33
33
10
11
10
12
11
45
46
51
56
55
58
58
57
56
55
58
58
57
66
67
70
71
72
70.1
11.1
11.1
27.1
UQ03900
6. CONVEYOR / コンベア
96
PTS-NXT-10JE Vol.2

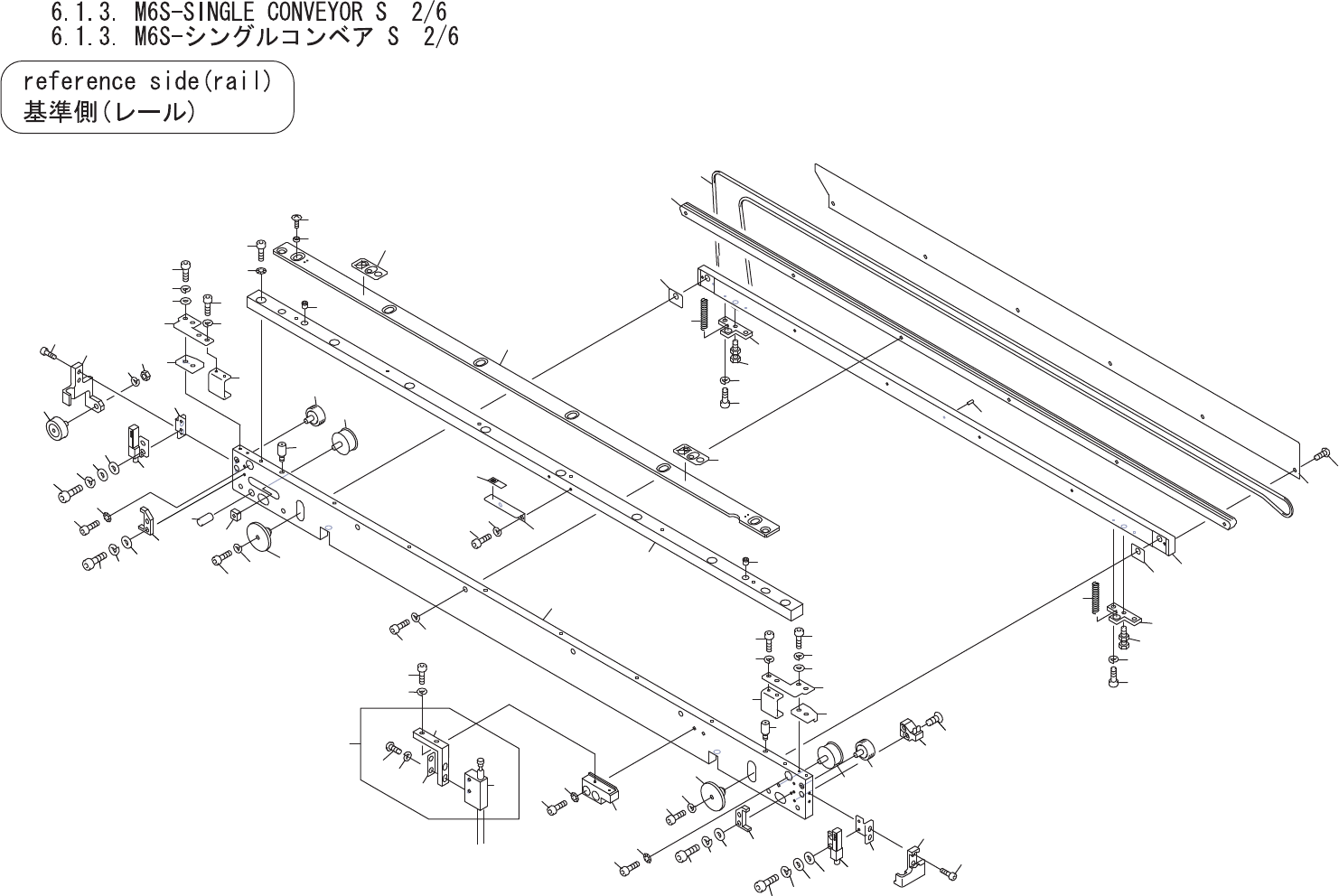
6.1.3. M6S-SINGLE CONVEYOR S 2/6
6.1.3. M6S-シングルコンベア S 2/6 UQ03900
No. Drg.No. & Code No. QTY Description Rating Materials Remarks
番号 図番 & コード番号 個数 品名 規格 材質 備考
1 PM06EW1 1 PLATE プレート FE PM79361+PZ34040
2 PM04TS1 1 GUIDE ガイド FE
2.1 H5276A 2 BOLT, HEX SOCKET ボルト 六角穴 M03X010 FE
2.2 W1021A 2 WASHER, LOCK ワッシャ スプリング 3M/M FE
2.3 W1040A 2 WASHER, FLAT ワッシャ 平 3M/MX0.5X7(1W-3) FE
5 PM04TT1 1 GUIDE ガイド FE
5.1 H5276A 2 BOLT, HEX SOCKET ボルト 六角穴 M03X010 FE
5.2 W1021A 2 WASHER, LOCK ワッシャ スプリング 3M/M FE
5.3 W1040A 2 WASHER, FLAT ワッシャ 平 3M/MX0.5X7(1W-3) FE
6 PB98360 2 BKT BKT FE
7 PB98370 2 BKT, RETAINER BKT 押え FE
7.1 H5273A 4 BOLT, HEX SOCKET ボルト 六角穴 M03X005 FE
7.2 W1021A 4 WASHER, LOCK ワッシャ スプリング 3M/M FE
8 PM23704 2 PIN, REFERENCE ピン 基準 FE
9 H2014R 1 PIN ピン MSIP6-10 OT
10 ADBPP8012 2 PULLEY プーリ OT
11 AA4NE01 2 PULLEY プーリ OT
11.1 AA63K01 2 PULLEY プーリ OT Thin panel option
12 N1122A 1 NUT, SQUARE ナット 四角 M4 P=0.7 FE
13 PM79511 2 GUIDE ガイド FE
14 H5263A 2 BOLT, HEX SOCKET ボルト 六角穴 M03X018 FE
15 W1021A 2 WASHER, LOCK ワッシャ スプリング 3M/M FE
16 PB50211 2 SPACER スペーサ FE
17 PM79341 1 PLATE, GUIDE プレート ガイド FE
18 H2115H 3 PIN, PARALLEL ピン 平行 ゚2X5 Aシュ FE
19 PM79461 2 PLATE プレート FE
20 H5275A 4 BOLT, HEX SOCKET ボルト 六角穴 M03X008 FE
21 W1021A 4 WASHER, LOCK ワッシャ スプリング 3M/M FE
22 H55035 2 BOLT ボルト PUST4-15 FE
23 PZ14451 2 SPRING スプリング FE
24 PM79330 1 GUIDE, BELT ガイド ベルト AL
25 H5290A 4 BOLT, HEX SOCKET ボルト 六角穴 M04X015 FE
26 W1022A 4 WASHER, LOCK ワッシャ スプリング 4M/M FE
27 XB02321 1 CONVEYOR, BELT コンベア ベルト OT
27.1 XB02751 1 CONVEYOR, BELT コンベア ベルト OT Thin panel option
28 PM01604 1 PLATE, CLAMPING プレート クランプ FE
29 K5255A 6 SCREW, HEX SOCKET BUTTON 小ネジ 六角穴ボタン M03X004 FE
30 PM79382 1 RAIL レール FE
6. CONVEYOR / コンベア
97
PTS-NXT-10JE Vol.2