PTS-NXT-10JE.pdf - 第420页
A U U T T U U T T 22 24 21 32 25 33 9 11 10 28 30 29 19 57 20 26 18 35 34 58 30 31 8 58 59 23 33 19 20 26 22 24 21 32 25 33 28 30 29 18 35 34 30 31 23 33 60 55 54 49 55 50 51 52 48 53 1 2 3 5 7 4 6 UQ01557 6. CONVEYOR / …

This page intentionally blank.
6. CONVEYOR / コンベア
79
PTS-NXT-10JE Vol.2

A
UU
TT
UU
TT
22
24
21
32
25
33
9
11
10
28
30
29
19
57
20
26
18
35
34
58
30
31
8
58
59
23
33
19
20
26
22
24
21
32
25
33
28
30
29
18
35
34
30
31
23
33
60
55
54
49
55
50
51
52
48
53
1
2
3
5
7
4
6
UQ01557
6. CONVEYOR / コンベア
80
PTS-NXT-10JE Vol.2

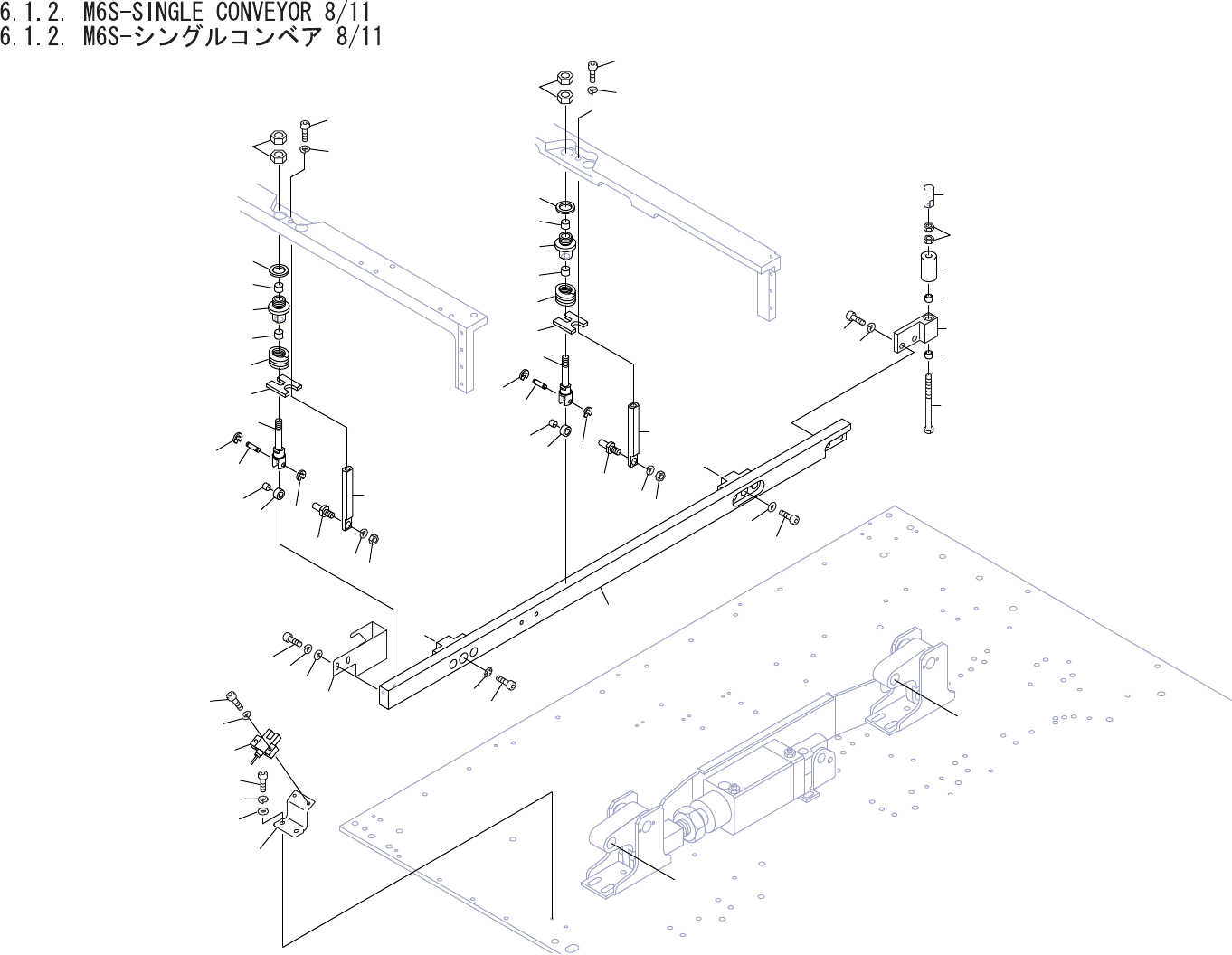
6.1.2. M6S-SINGLE CONVEYOR 8/11
6.1.2. M6S-シングルコンベア 8/11 UQ01557
No. Drg.No. & Code No. QTY Description Rating Materials Remarks
番号 図番 & コード番号 個数 品名 規格 材質 備考
1 PP00970 1 BKT, SENSOR BKT センサ FE
2 H5275A 2 BOLT, HEX SOCKET ボルト 六角穴 M03X008 FE
3 W1021A 2 WASHER, LOCK ワッシャ スプリング 3M/M FE
4 W1042A 2 WASHER, FLAT ワッシャ 平 4W- 3 FE
5 S4077S 1 SENSOR, PHOTO センサ フォト PM-K44P 3m OT
6 H5276A 2 BOLT, HEX SOCKET ボルト 六角穴 M03X010 FE
7 W1021A 2 WASHER, LOCK ワッシャ スプリング 3M/M FE
8 PP00990 1 DOG ドッグ FE
9 H5275A 2 BOLT, HEX SOCKET ボルト 六角穴 M03X008 FE
10 W1021A 2 WASHER, LOCK ワッシャ スプリング 3M/M FE
11 W1042A 2 WASHER, FLAT ワッシャ 平 4W- 3 FE
18 PM50040 2 ROD ロッド FE
19 H5263C 2 BOLT, HEX SOCKET ボルト 六角穴 M05X016 FE
20 W1023A 2 WASHER, LOCK ワッシャ スプリング 5M/M FE
21 PP01470 2 PLATE プレート FE
22 PM50010 2 PIN ピン FE
23 N1083A 2 NUT, HEX ナット 六角 M 5 P=0.8 3シュ FE
24 W1023A 2 WASHER, LOCK ワッシャ スプリング 5M/M FE
25 PM27114 2 SHAFT シャフト FE
26 N1086A 4 NUT, HEX ナット 六角 M 6 P=1.0 3シュ FE
28 PM27862 2 WASHER ワッシャ FE
29 PM27252 2 HOUSING ハウジング FE
30 H4901G 4 BEARING, DRY ベアリング ドライ K5B0606 OT
31 S3260A 2 SPRING スプリング SWU21-25 OT
32 PM99000 2 PIN ピン FE
33 S1047K 4 CIR-CLIP サークリップ E-3 OT
34 H4901C 2 BEARING, DRY ベアリング ドライ K5B0405 OT
35 PM27140 2 ROLLER ローラ FE
48 PJ11661 1 HOLDER 受け PL
49 PM001A0 1 BKT BKT FE
50 H5299A 2 BOLT, HEX SOCKET ボルト 六角穴 M05X012 FE
51 W1023A 2 WASHER, LOCK ワッシャ スプリング 5M/M FE
52 PM001C1 1 ROD ロッド FE
53 K1321E 1 COLLAR カラー NCLMH6-15-25 OT
54 N1083A 2 NUT, HEX ナット 六角 M 5 P=0.8 3シュ FE
55 H4903A 2 BEARING, DRY ベアリング ドライ K5B0505 OT
57 PM49993 1 LIFTER リフタ FE
58 H5506X 2 BOLT, HEX SOCKET ボルト 六角穴 CBS6-20 FE
6. CONVEYOR / コンベア
81
PTS-NXT-10JE Vol.2