PTS-NXT-10JE.pdf - 第816页
8. ACCESSORIES / アクセサリ 226 PTS-NXT-10JE Vol.3

8.4. SPLICING TAPE STAND
8.4. スプライシングテープスタンド UK03504
No. Drg.No. & Code No. QTY Description Rating Materials Remarks
番号 図番 & コード番号 個数 品名 規格 材質 備考
76 W1024A 1 WASHER, LOCK ワッシャ スプリング 6M/M FE
77 N10798 1 NUT, HEX ナット 六角 M06(3カ クロ) FE
78 PM04DG1 1 BLOCK ブロック FE
79 R4050B 1 LEVER, CLAMP レバー クランプ CLDM6-20-B OT
80 W1045A 3 WASHER, FLAT ワッシャ 平 4W- 6 FE
81 K1321B 1 COLLAR カラー PIPS6-1-10 OT
81.1 H5280A 1 BOLT, HEX SOCKET ボルト 六角穴 M03X020 FE
81.2 W1021A 1 WASHER, LOCK ワッシャ スプリング 3M/M FE
81.3 W1042A 1 WASHER, FLAT ワッシャ 平 4W- 3 FE
83 H13276 1 HANDLE ハンドル GRAF8 FE
84 W1003S 1 WASHER ワッシャ WSSB20-12-5 FE
85 K53635 1 SCREW, HEX SOCKET COUNTERSUNK 小ネジ 六角穴皿 M08X030(3カ シロ) FE
86 T1070L 2 DAMPER ダンパ AXFME-D30-L90-V13 OT
87 K1321D 2 COLLAR カラー PIPS13-2-88 OT
88 H54245 1 BOLT, HEX SOCKET ボルト 六角穴 CB8-200 FE
89 W1090H 2 WASHER ワッシャ WSSB25-8-3 FE
90 W1025A 1 WASHER, LOCK ワッシャ スプリング 8M/M FE
91 N10799 1 NUT, HEX ナット 六角 M08(3カ クロ) FE
92 PB78371 1 HOOK フック FE
93 K5359H 2 SCREW, HEX SOCKET COUNTERSUNK 小ネジ 六角穴皿 M04X010 FE
94 W1022A 2 WASHER, LOCK ワッシャ スプリング 4M/M FE
95 N10796 2 NUT, HEX ナット 六角 M04(3カ クロ) FE
97 PB91052 1 HANDLE 取手 FE
98 K5359H 2 SCREW, HEX SOCKET COUNTERSUNK 小ネジ 六角穴皿 M04X010 FE
8. ACCESSORIES / アクセサリ
225
PTS-NXT-10JE Vol.3

8. ACCESSORIES / アクセサリ
226
PTS-NXT-10JE Vol.3

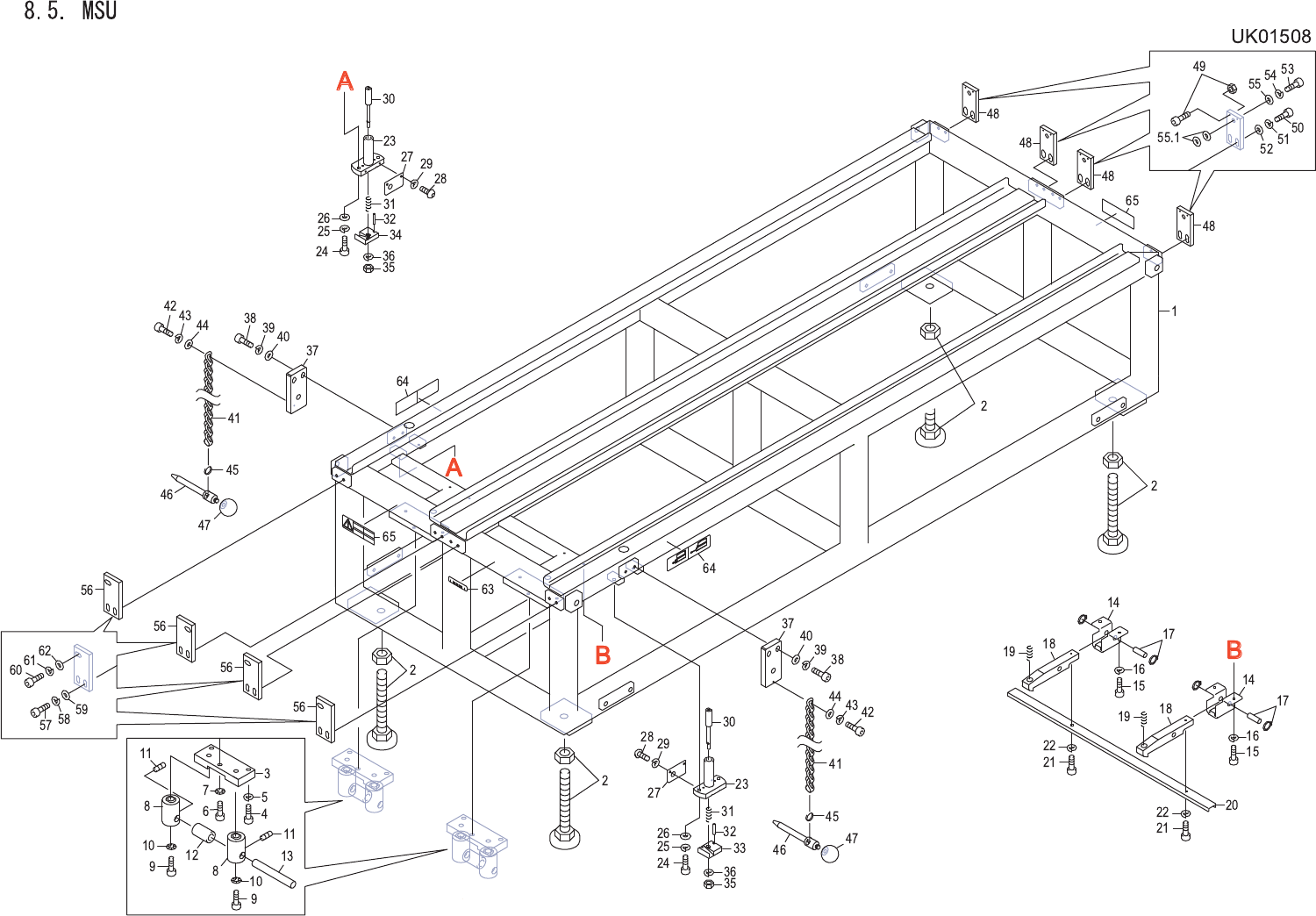
8.5. MSU
UK01508
No. Drg.No. & Code No. QTY Description Rating Materials Remarks
番号 図番 & コード番号 個数 品名 規格 材質 備考
1 PM61017 1 FRAME フレーム FE
2 A1250D 4 ADJUSTER アジャスタ FJSN20-130 OT
3 PM55784 2 PLATE プレート FE
4 H5428R 4 BOLT, HEX SOCKET ボルト 六角穴 M08X030(3カ シロ) FE
5 W1106G 4 WASHER, LOCK ワッシャ スプリング 8M/M(3カ シロ) FE
6 H5428F 2 BOLT, HEX SOCKET ボルト 六角穴 M08X015(3カ シロ) FE
7 W1014A 2 WASHER, CONICAL ワッシャ 皿 M- 8-H FE
8 PM55772 4 GUIDE ガイド FE
9 H5429E 4 BOLT, HEX SOCKET ボルト 六角穴 M12X025(3カ シロ) FE
10 W1016A 4 WASHER, CONICAL ワッシャ 皿 M-12-H FE
11 N4048C 4 SCREW, HEX SOCKET SET ネジ 六角穴止め M06X010 ヒラサキ ステンレス FE
12 PM50282 2 ROLLER ローラ FE
13 PM50271 2 PIN, ROLLER ピン ローラ FE
14 PB31124 2 BKT BKT FE
15 H5427B 4 BOLT, HEX SOCKET ボルト 六角穴 M05X012(3カ シロ) FE
16 W1106E 4 WASHER, LOCK ワッシャ スプリング 5M/M(3カ シロ) FE
17 H2189S 2 PIN ピン HCDGH10-30 OT
18 PM60954 2 LEVER レバー FE
19 S3260D 2 SPRING スプリング SWR10.5-25 OT
20 PB33755 1 BKT BKT FE
21 H54269 2 BOLT, HEX SOCKET ボルト 六角穴 M05X010(3カ シロ) FE
22 W1106E 2 WASHER, LOCK ワッシャ スプリング 5M/M(3カ シロ) FE
23 PM61006 2 HOLDER, STOPPER ホルダ ストッパ FE
24 H54274 4 BOLT, HEX SOCKET ボルト 六角穴 M06X025(3カ シロ) FE
25 W1106F 4 WASHER, LOCK ワッシャ スプリング 6M/M(3カ シロ) FE
26 W1108F 4 WASHER, FLAT ワッシャ 平 4W-6(3カ シロ) FE
27 PB39373 2 PLATE, GUIDE プレート ガイド FE
28 K5258L 4 SCREW, HEX SOCKET BUTTON 小ネジ 六角穴ボタン M04X008(3カ シロ) FE
29 W1106D 4 WASHER, LOCK ワッシャ スプリング 4M/M(3カ シロ) FE
30 PM60992 2 STOPPER ストッパ FE
31 S3019L 2 SPRING スプリング WL10-45 OT
32 H2093M 2 PIN, PARALLEL ピン 平行 ゚4X25 Aシュ OT
33 PM60974 1 PLATE プレート FE
34 PM60984 1 PLATE プレート FE
35 N1079C 2 NUT, HEX ナット 六角 M 5 P=0.8 1シュ(3カ シロ) FE
36 W1106E 2 WASHER, LOCK ワッシャ スプリング 5M/M(3カ シロ) FE
37 PB33746 2 PLATE, STOPPER プレート ストッパ FE
38 H5428N 4 BOLT, HEX SOCKET ボルト 六角穴 M08X025(3カ シロ) FE
8. ACCESSORIES / アクセサリ
227
PTS-NXT-10JE Vol.3