PTS-NXT-10JE.pdf - 第630页
Ref.1/ A B B A A A,B A,B i h Ref.BED f Ref.BED Ref.BED h h i i f f k k J J Ref.TRAY Ref.TRAY 2 3 4 5 5 12 15 16 20 21 22 25 25 25 AJ AK AK AL AL AI AI AH AG AF AF AE AD AC AC AB AB AA AC 1 6 7 8 9 10 13 14 17 18 19 23 26…

7.1.5. M6S-DEVICE BASE 1/2
7.1.5. M6S-デバイスベース 1/2 UD00832
No. Drg.No. & Code No. QTY Description Rating Materials Remarks
番号 図番 & コード番号 個数 品名 規格 材質 備考
96 PM87891 1 PIN, PIVOT ピン 支点 FE
97 S1003H 2 CIR-CLIP サークリップ ST-EW-6(3カ シロ) FE
98 PM87912 2 COLLAR カラー FE
99 PM87875 1 LEVER, CLAMP レバー クランプ FE
100 PM87863 1 JOINT, KNUCKLE ジョイント ナックル FE
101 PM85961 1 PIN ピン FE
102 S1003H 2 CIR-CLIP サークリップ ST-EW-6(3カ シロ) FE
103 PM87881 1 PIN, PIVOT ピン 支点 FE
104 S1003F 2 CIR-CLIP サークリップ ST-EW-4(3カ シロ) FE
105 PM85932 2 LINK リンク FE
106 PM87942 1 COLLAR カラー FE
107 H5302A 1 BOLT, HEX SOCKET ボルト 六角穴 M05X020 FE
108 W1023A 1 WASHER, LOCK ワッシャ ス
プ
リン
グ
5M/M FE
7. PARTS SUPPLY / 部品供給
39
PTS-NXT-10JE Vol.3

Ref.1/
A
BB
AA
A,BA,B
i
h
Ref.BED
f
Ref.BED
Ref.BED
hh
ii
ff
kkJJ
Ref.TRAYRef.TRAY
2
3
4
5
5
12
15
16
20
21
22
25
25
25
AJ
AK
AK
AL
AL
AI
AI
AH
AG
AF
AF
AE
AD
AC AC
AB
AB
AA
AC
1
6
7
8
9
10
13
14
17
18
19
23
26
26
24
28
27
UD00832
7. PARTS SUPPLY / 部品供給
40
PTS-NXT-10JE Vol.3

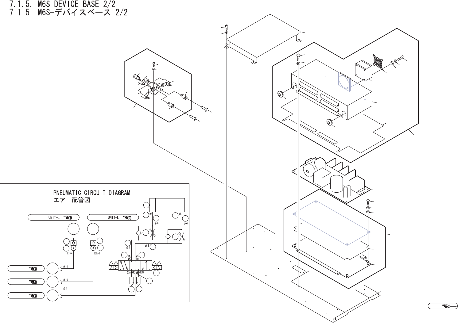
7.1.5. M6S-DEVICE BASE 2/2
7.1.5. M6S-デバイスベース 2/2 UD00832
No. Drg.No. & Code No. QTY Description Rating Materials Remarks
番号 図番 & コード番号 個数 品名 規格 材質 備考
1 AA54407 1 COVER カバー OT
2 PB09046 1 COVER カバー FE
3 H5274A 4 BOLT, HEX SOCKET ボルト 六角穴 M03X006 FE
4 W1021A 4 WASHER, LOCK ワッシャ スプリング 3M/M FE
5 H30860 2 BUSHING, RUBBER ブシュ ゴム C-30BW-10-1 OT
6 H30125 1 FAN ファン 109P0424F6D1 OT
7 K1141R 1 GUARD, FIN ガード フィン 109-059 OT
8 H5281A 4 BOLT, HEX SOCKET ボルト 六角穴 M03X025 FE
9 W1021A 4 WASHER, LOCK ワッシャ スプリング 3M/M FE
10 W1040A 4 WASHER, FLAT ワッシャ 平 3M/MX0.5X7(1W-3) FE
12 PS00134 1 SHEET シート OT
13 T41522 1 POWER SUPPLY, DC 電源 DC ZWS240PAF-24/J OT
14 AA54704 1 BOX, POWER SUPPLY BOX 電源 OT
15 PM02655 1 BOX, POWER SUPPLY BOX 電源 FE
16 PS00042 1 SHEET シート OT
17 K5224A 4 SCREW, C/R PAN 小ネジ 十穴鍋 M03X006 ニッケルメッキ FE
18 W1021A 4 WASHER, LOCK ワッシャ スプリング 3M/M FE
19 W1040A 4 WASHER, FLAT ワッシャ 平 3M/MX0.5X7(1W-3) FE
20 PB02094 1 RETAINER, WIRING 押え 配線 FE
21 H5274A 4 BOLT, HEX SOCKET ボルト 六角穴 M03X006 FE
22 W1021A 4 WASHER, LOCK ワッシャ スプリング 3M/M FE
23 AA54301 1 VALVE, SOL バルブ SOL OT
24 H1122K 1 VALVE, SOL バルブ SOL SY3320-5MZ-M5-F2 OT
25 Y3061E 3 UNION, HALF ユニオン ハーフ KJS04-M5 (シロ) OT
26 S1058A 2 SILENCER サイレンサ AN120-M5 OT
27 K5178M 2 SCREW, C/R PAN 小ネジ 十穴鍋 M03X006 ニッケルメッキ FE
28 W1021A 2 WASHER, LOCK ワッシャ スプリング 3M/M FE
AA H1122K 1 VALVE, SOL バルブ SOL SY3320-5MZ-M5-F2 OT
AB S1058A 2 SILENCER サイレンサ AN120-M5 OT
AC Y3061E 3 UNION, HALF ユニオン ハーフ KJS04-M5 (シロ) OT
AD PZ13981 1 TUBE チューブ OT
AE PZ13991 1 TUBE チューブ OT
AF K5340R 2 CONTROLLER, SPEED コントローラ スピード AS2001F-04(シロ) OT
AG PZ09201 1 TUBE チューブ OT
AH PZ07771 1 TUBE チューブ OT
AI Y3049G 2 UNION, ELBOW ユニオン エルボ KJL04-M5(シロ) OT
AJ S2101G 1 CYLINDER, AIR シリンダ エアー CDQSD25-40DCM-M9BL OT
AK Y3080A 2 UNION, ELBOW ユニオン エルボ KQ2L10-02S OT
7. PARTS SUPPLY / 部品供給
41
PTS-NXT-10JE Vol.3