PTS-NXT-10JE.pdf - 第521页
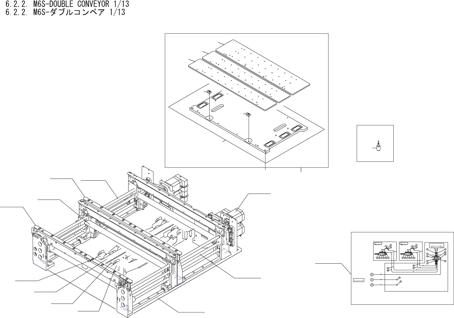
6.2.2. M6S-DOUBLE CONVEYOR 1/13 6.2.2. M6S- ダブルコンベア 1/13 UQ01361 No. Drg.No. & Code No. QTY Description Rating Materials Remarks 番号 図番 & コード番号 個 数 品名 規格 材質 備考 1 AA24R08 2 PLATE, BACKUP プレート バックアップ OT 2 AA23R10 2…

A
A
BB
2/13
3/13
4/13
5/13
6/13
7/13
8/13
9/13
10/13
11/13
12/13
13/13
BB
FROM MODULE BED
NEGATIVE
PRESSURE
NEGATIVE
PRESSURE
POSITIVE
PRESSURE
B ( )
A
( )
A:CLAMP (LIFTER UP)
B:UNCLAMP (LIFTER DOWN)
SECOND LANE
FIRST LANE
FOR FIRST LANE FOR SECOND LANE
LOWER LOW SPEED RELEASE
LOWER LOW SPEED RELEASE
METER IN
LOWER LOW SPEED RELEASE
METER IN
METER OUT
METER OUT
LOWER LOW SPEED RELEASE
METER OUT
RAISE HIGH SPEED RELEASE
METER OUT
RAISE HIGH SPEED RELEASE
BACK-UP PIN
1
2
3
3
4
4
5
45
UQ01361
6. CONVEYOR / コンベア
180
PTS-NXT-10JE Vol.2

6.2.2. M6S-DOUBLE CONVEYOR 1/13
6.2.2. M6S-ダブルコンベア 1/13 UQ01361
No. Drg.No. & Code No. QTY Description Rating Materials Remarks
番号 図番 & コード番号 個数 品名 規格 材質 備考
1 AA24R08 2 PLATE, BACKUP プレート バックアップ OT
2 AA23R10 2 FRAME フレーム OT
3 AA35A02 4 SCREW ネジ OT
4 PM66153 4 PLATE, BACKUP プレート バックアップ FE
5 PM66165 2 PLATE, BACKUP プレート バックアップ FE
45 AA6WL03 8 PIN, BACKUP
ピ
ン バックアッ
プ
OT
6. CONVEYOR / コンベア
181
PTS-NXT-10JE Vol.2

A
1
2
3
4,
4.1
5,
5.1
6
7
8
9
9.1
10
11.1
11
11.1
11
9.1
9
13
18
18.3
83
84
82
30
74
75
76
73
74
75
76
73
73
31
29
32
14
15
30
31
29
36
36.3
27
28
28
27
39
40
41
78
79
42
44
44
45
77
36
74
75
76
73
74
75
76
10
49
50
48,
48.1
29
30
31
14
15
67
8
13
29
30
31
18
45
77
78
79
42
44
44
39
41
40
1
42
113
113
42
116
117
115
133, 133.1
42
42
126
125
123
124
121
123
124
122
126
125
127
128
1
131
132
129
130
134
134
38
37
19
20
118.1
118.3
118.2
118.4
118.5
36.1
36.2
18.1
18.2
37.1
19.1
132.1
131
132
132.1
73.1
73.2
73.2
73.1
28.1
28.1
1
12,
12.1
12,
12.1
16,
16.1
17
17
16,
16.1
16,
16.1
25
16,
16.1
17
17
16,
16.1
25
22
23
24
21
24
21
22
23
24
24
21
22
23
24
24
21
22
23
24
24
46
47
68
69
81
81
118
119
120
135
136
135
136
21.1
21.1
21.1
21.1
UQ01361
6. CONVEYOR / コンベア
182
PTS-NXT-10JE Vol.2